|
|
|
| Larry Stein Oklahoma County Assessor (405) 713-1200 - Public Access System |
|
|
|
|
|
|
| Real Property Display - Screen Produced 3/13/2026 2:14:27 AM | ||||
|---|---|---|---|---|
| Account: R120251000 | Type: Residential | Location: |
14457 AUTUMN DR |
|
| Building Name/Occupant: |
|
UNINCORPORATED |
||
| Owner Name 1: | HAGAN RICHARD L |
Parcel PIN#: |
1244-12-025-1000 |
|
| Owner Name 2: | ZELL HAGAN PATRICIA B | 1/4 section #: |
1244 |
|
| Owner Name 3: | Parent Acct: |
|
||
| Billing Address: | 14457 AUTUMN DR | Tax District: |
|
|
| City, State, Zip | CHOCTAW, OK 73020 | School System: |
Choctaw #4 |
|
|
Country: (If noted) |
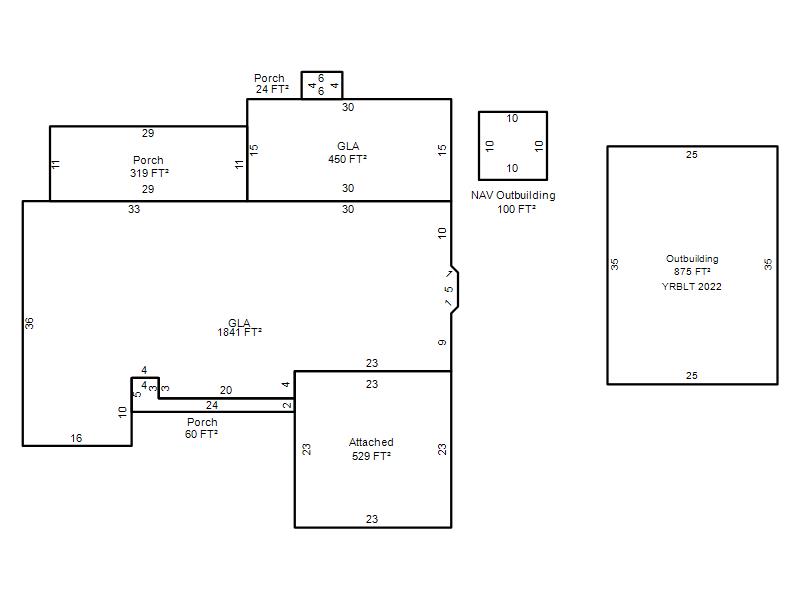
Land Size: |
1.7200 Acres |
||
|
Land Value: 70,004 |
|
|||
|
Sect 11-T11N-R1W Qtr NW |
WALNUT RIDGE
Block
001
Lot
001
|
|||
| Full Legal Description: WALNUT RIDGE BLK 001 LOT 001 |
| Photo & Sketch (if available) | Comp Sales (ordered by relevancy) |
|
||||||||||||||||||
|
||||||||||||||||||||
| Value History (*The County Treasurer 405-713-1300 posts & collects actual tax amounts. Contact information HERE) | |||||||||||||
|---|---|---|---|---|---|---|---|---|---|---|---|---|---|
| Year | Market Value | Taxable Mkt Value | Gross Assessed | Exemption | Net Assessed | Millage | Est. Tax | Tax Savings | |||||
|
2025 |
350,000 |
331,500 |
36,465 |
1,000 |
35,465 |
117.21 |
$4,157 |
$356 |
|||||
|
2024 |
331,500 |
331,500 |
36,465 |
1,000 |
35,465 |
116.35 |
$4,126 |
$116 |
|||||
|
2023 |
351,000 |
351,000 |
38,610 |
1,000 |
37,610 |
117.10 |
$4,404 |
$117 |
|||||
|
2022 |
243,000 |
193,844 |
21,322 |
1,000 |
20,322 |
115.17 |
$2,341 |
$738 |
|||||
|
2021 |
216,000 |
188,199 |
20,700 |
1,000 |
19,700 |
115.06 |
$2,267 |
$467 |
|||||
| Property Account Status/Adjustments/Exemptions | ||
|---|---|---|
| Account # | Exemption Description | Amount |
|
R120251000 |
3% Cap Homestead |
0 |
|
R120251000 |
Freeze Senior Valuation |
0 |
|
R120251000 |
Homestead |
1,000 |
| Property Deed Transaction History (Recorded in the County Clerk's Office) | |||||||
|---|---|---|---|---|---|---|---|
| Date | Type | Book | Page | Price | Grantor | Grantee | |
|
10/31/2022 |
|
Deeds |
$350,000 |
COULTER ANNA LOU 2017 REV TRUST |
HAGAN RICHARD L |
||
|
1/23/2017 |
|
Deeds |
$0 |
COULTER CHARLES R & ANNA L |
COULTER ANNA LOU 2017 REV TRUST |
||
|
7/1/1981 |
|
Historical |
$0 |
|
COULTER CHARLES R & ANNA L |
||
| Last Mailed Notice of Value (N.O.V.) Information/History | ||||||||
|---|---|---|---|---|---|---|---|---|
| Year | Date | Market Value | Taxable Market Value | Gross Assessed | Exemption | Net Assessed | ||
|
2025 |
01/31/2025 |
350,000 |
331,500 |
36,465 |
1,000 |
35,465 |
||
|
2023 |
01/23/2023 |
351,000 |
351,000 |
38,610 |
0 |
38,610 |
||
|
2022 |
02/22/2022 |
243,000 |
193,844 |
21,321 |
1,000 |
20,321 |
||
|
2021 |
02/24/2021 |
216,000 |
188,199 |
20,701 |
1,000 |
19,701 |
||
|
2020 |
02/21/2020 |
197,500 |
182,718 |
20,098 |
1,000 |
19,098 |
||
| Property Building Permit History | |||||||||||
|---|---|---|---|---|---|---|---|---|---|---|---|
| Issued | Permit # | Provided by | Bldg # | Description | Est Construction Cost | Status | |||||
| No Building Permit records returned. | |||||||||||
| Click button on building number to access detailed information: | ||||||
|---|---|---|---|---|---|---|
| Bldg # | Vacant/Improved Land | Bldg Description | Year Built | SqFt | # Stories | |
|
1 |
Improved |
Ranch 1 Story |
1981 |
2,291 |
1 Stories |
|