|
|
|
| Larry Stein Oklahoma County Assessor (405) 713-1200 - Public Access System |
|
|
|
|
|
|
| Real Property Display - Screen Produced 3/19/2026 12:51:45 AM | ||||
|---|---|---|---|---|
| Account: R192011210 | Type: Residential | Location: |
253 MEADOW LN |
|
| Building Name/Occupant: |
|
HARRAH |
||
| Owner Name 1: | DAVIS BRENNAH & LUCAS |
Parcel PIN#: |
2131-19-201-1210 |
|
| Owner Name 2: | 1/4 section #: |
2131 |
||
| Owner Name 3: | Parent Acct: |
|
||
| Billing Address: | 253 MEADOW LN | Tax District: |
|
|
| City, State, Zip | CHOCTAW, OK 73020-7320 | School System: |
Choctaw #4 |
|
|
Country: (If noted) |
Land Size: |
2.5000 Acres |
||
|
Land Value: 81,000 |
|
|||
|
Sect 33-T12N-R1E Qtr SW |
BILLINGS RIDGEWOOD ESTATES
Block
002
Lot
003
|
|||
| Full Legal Description: BILLINGS RIDGEWOOD ESTATES 002 003 |
| Photo & Sketch (if available) | Comp Sales (ordered by relevancy) |
|
||||||||||||||||||
|
||||||||||||||||||||
| Value History (*The County Treasurer 405-713-1300 posts & collects actual tax amounts. Contact information HERE) | |||||||||||||
|---|---|---|---|---|---|---|---|---|---|---|---|---|---|
| Year | Market Value | Taxable Mkt Value | Gross Assessed | Exemption | Net Assessed | Millage | Est. Tax | Tax Savings | |||||
|
2025 |
201,375 |
201,375 |
22,151 |
0 |
22,151 |
117.21 |
$2,596 |
$0 |
|||||
|
2024 |
201,375 |
121,224 |
13,334 |
1,000 |
12,334 |
116.35 |
$1,435 |
$1,142 |
|||||
|
2023 |
244,500 |
121,224 |
13,334 |
1,000 |
12,334 |
117.10 |
$1,444 |
$1,705 |
|||||
|
2022 |
220,500 |
121,224 |
13,334 |
1,000 |
12,334 |
115.17 |
$1,421 |
$1,373 |
|||||
|
2021 |
183,000 |
121,224 |
13,334 |
1,000 |
12,334 |
115.06 |
$1,419 |
$897 |
|||||
| Property Account Status/Adjustments/Exemptions | ||
|---|---|---|
| Account # | Exemption Description | Amount |
|
R192011210 |
3% Cap Homestead |
0 |
|
R192011210 |
Homestead |
1,000 |
| Property Deed Transaction History (Recorded in the County Clerk's Office) | |||||||
|---|---|---|---|---|---|---|---|
| Date | Type | Book | Page | Price | Grantor | Grantee | |
|
2/23/2024 |
|
Deeds |
$260,000 |
MEYER DOROTHY A REV TRUST |
DAVIS BRENNAH & LUCAS |
||
|
5/15/2019 |
|
Deeds |
$0 |
MEYER DOROTHY A |
MEYER DOROTHY A REV TRUST |
||
|
11/7/2008 |
|
Deeds |
$0 |
MEYER ELLIOTT N & DOROTHY A |
MEYER DOROTHY A |
||
|
11/7/2008 |
|
Deeds |
$0 |
MEYER ELLIOT N |
MEYER DOROTHY A |
||
|
7/1/1982 |
|
Historical |
$0 |
|
MEYER ELLIOTT N & DOROTHY A |
||
| Last Mailed Notice of Value (N.O.V.) Information/History | ||||||||
|---|---|---|---|---|---|---|---|---|
| Year | Date | Market Value | Taxable Market Value | Gross Assessed | Exemption | Net Assessed | ||
|
2025 |
01/31/2025 |
201,375 |
201,375 |
22,151 |
0 |
22,151 |
||
|
2023 |
01/23/2023 |
244,500 |
121,224 |
13,334 |
1,000 |
12,334 |
||
|
2022 |
02/22/2022 |
220,500 |
121,224 |
13,334 |
1,000 |
12,334 |
||
|
2021 |
02/24/2021 |
183,000 |
121,224 |
13,334 |
1,000 |
12,334 |
||
|
2019 |
02/26/2019 |
171,500 |
121,224 |
13,334 |
1,000 |
12,334 |
||
| Property Building Permit History | ||||||
|---|---|---|---|---|---|---|
| Issued | Permit # | Provided by | Bldg # | Description | Est Construction Cost | Status |
|
12/6/2024 |
|
|
|
Remodeled |
|
Inactive |
| Click button on building number to access detailed information: | ||||||
|---|---|---|---|---|---|---|
| Bldg # | Vacant/Improved Land | Bldg Description | Year Built | SqFt | # Stories | |
|
1 |
Improved |
Ranch 1 Story |
1978 |
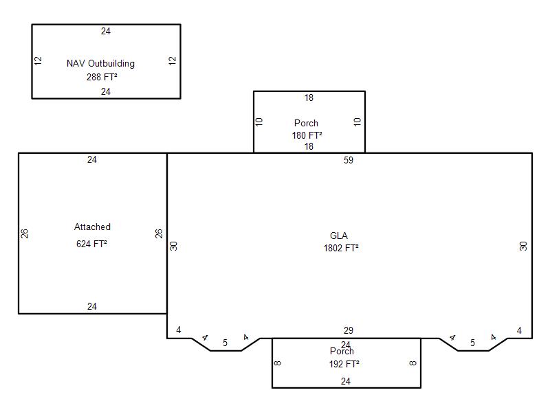
1,802 |
1 Stories |
|