|
|
|
| Larry Stein Oklahoma County Assessor (405) 713-1200 - Public Access System |
|
|
|
|
|
|
| Real Property Display - Screen Produced 4/5/2026 1:44:04 AM | ||||
|---|---|---|---|---|
| Account: R122101470 | Type: Residential | Location: |
942 SANDPIPER RD |
|
| Building Name/Occupant: |
|
HARRAH |
||
| Owner Name 1: | SAVAGE DILLAN M |
Parcel PIN#: |
2137-12-210-1470 |
|
| Owner Name 2: | 1/4 section #: |
2137 |
||
| Owner Name 3: | Parent Acct: |
|
||
| Billing Address: | 942 SANDPIPER RD | Tax District: |
|
|
| City, State, Zip | HARRAH, OK 73045 | School System: |
Harrah #7 |
|
|
Country: (If noted) |
Land Size: |
0.2480 Acres |
||
|
Land Value: 36,734 |
|
|||
|
Sect 35-T12N-R1E Qtr NE |
BRUSH CREEK SEC 2
Block
006
Lot
019
|
|||
| Full Legal Description: BRUSH CREEK SEC 2 006 019 |
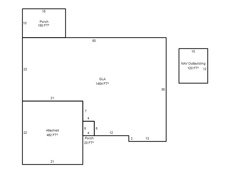
| Photo & Sketch (if available) | Comp Sales (ordered by relevancy) |
|
||||||||||||||||||
|
||||||||||||||||||||
| Value History (*The County Treasurer 405-713-1300 posts & collects actual tax amounts. Contact information HERE) | |||||||||||||
|---|---|---|---|---|---|---|---|---|---|---|---|---|---|
| Year | Market Value | Taxable Mkt Value | Gross Assessed | Exemption | Net Assessed | Millage | Est. Tax | Tax Savings | |||||
|
2026 |
228,000 |
226,502 |
24,914 |
1,000 |
23,914 |
107.54 |
$2,572 |
$125 |
|||||
|
2025 |
225,000 |
219,905 |
24,189 |
1,000 |
23,189 |
107.54 |
$2,494 |
$168 |
|||||
|
2024 |
213,500 |
213,500 |
23,485 |
1,000 |
22,485 |
110.62 |
$2,487 |
$111 |
|||||
|
2023 |
256,000 |
256,000 |
28,160 |
1,000 |
27,160 |
97.88 |
$2,658 |
$98 |
|||||
|
2022 |
176,000 |
150,117 |
16,511 |
1,000 |
15,511 |
99.50 |
$1,544 |
$383 |
|||||
| Property Account Status/Adjustments/Exemptions | ||
|---|---|---|
| Account # | Exemption Description | Amount |
|
R122101470 |
3% Cap Homestead |
0 |
|
R122101470 |
Homestead |
1,000 |
| Property Deed Transaction History (Recorded in the County Clerk's Office) | ||||||||||
|---|---|---|---|---|---|---|---|---|---|---|
| Date | Type | Book | Page | Price | Grantor | Grantee | ||||
|
6/10/2022 |
|
Deeds |
$255,000 |
LEWIS CURTIS WILLIAM |
SAVAGE DILLAN M |
|||||
|
3/3/2008 |
|
Deeds |
$0 |
LEWIS CURTIS WILLIAM & SHEILA MAE |
LEWIS CURTIS WILLIAM |
|||||
|
7/18/2003 |
|
Deeds |
$0 |
LEWIS CURTIS WILLIAM |
LEWIS CURTIS WILLIAM & SHEILA MAE |
|||||
|
4/10/1996 |
|
Historical |
$79,000 |
OLDHAM GARY L & ANA LUISA |
LEWIS CURTIS WILLIAM |
|||||
|
11/5/1992 |
|
Historical |
$75,000 |
THOMPSON JANET ELAINE |
OLDHAM GARY L & ANA LUISA |
|||||
| Last Mailed Notice of Value (N.O.V.) Information/History | ||||||||
|---|---|---|---|---|---|---|---|---|
| Year | Date | Market Value | Taxable Market Value | Gross Assessed | Exemption | Net Assessed | ||
|
2026 |
02/06/2026 |
228,000 |
226,502 |
24,914 |
1,000 |
23,914 |
||
|
2025 |
01/31/2025 |
225,000 |
219,905 |
24,189 |
1,000 |
23,189 |
||
|
2023 |
01/23/2023 |
256,000 |
256,000 |
28,160 |
1,000 |
27,160 |
||
|
2022 |
02/22/2022 |
176,000 |
150,117 |
16,511 |
1,000 |
15,511 |
||
|
2021 |
02/24/2021 |
157,000 |
145,745 |
16,031 |
1,000 |
15,031 |
||
| Property Building Permit History | |||||||||||
|---|---|---|---|---|---|---|---|---|---|---|---|
| Issued | Permit # | Provided by | Bldg # | Description | Est Construction Cost | Status | |||||
| No Building Permit records returned. | |||||||||||
| Click button on building number to access detailed information: | ||||||
|---|---|---|---|---|---|---|
| Bldg # | Vacant/Improved Land | Bldg Description | Year Built | SqFt | # Stories | |
|
1 |
Improved |
Ranch 1 Story |
1985 |
1,454 |
1 Stories |
|