|
|
|
| Larry Stein Oklahoma County Assessor (405) 713-1200 - Public Access System |
|
|
|
|
|
|
| Real Property Display - Screen Produced 3/16/2026 3:45:18 AM | ||||
|---|---|---|---|---|
| Account: R146555980 | Type: Residential | Location: |
3220 S CHOCTAW RD |
|
| Building Name/Occupant: |
|
OKLAHOMA CITY |
||
| Owner Name 1: | PEABODY EUGENE D |
Parcel PIN#: |
1252-14-655-5980 |
|
| Owner Name 2: | 1/4 section #: |
1252 |
||
| Owner Name 3: | Parent Acct: |
|
||
| Billing Address: | 3220 S CHOCTAW RD | Tax District: |
|
|
| City, State, Zip | CHOCTAW, OK 73020 | School System: |
Choctaw #4 |
|
|
Country: (If noted) |
Land Size: |
1.4839 Acres |
||
|
Land Value: 46,863 |
|
|||
|
Sect 13-T11N-R1W Qtr NW |
SCHILLINGS OKLA
Block
006
Lot
000
|
|||
| Full Legal Description: SCHILLINGS OKLA 006 000 LOTS 6 THRU 23 |
| Photo & Sketch (if available) | Comp Sales (ordered by relevancy) |
|
||||||||||||||||||
|
||||||||||||||||||||
| Value History (*The County Treasurer 405-713-1300 posts & collects actual tax amounts. Contact information HERE) | |||||||||||||
|---|---|---|---|---|---|---|---|---|---|---|---|---|---|
| Year | Market Value | Taxable Mkt Value | Gross Assessed | Exemption | Net Assessed | Millage | Est. Tax | Tax Savings | |||||
|
2025 |
221,000 |
219,905 |
24,189 |
24,189 |
0 |
132.37 |
$0 |
$3,218 |
|||||
|
2024 |
213,500 |
213,500 |
23,485 |
23,485 |
0 |
131.28 |
$0 |
$3,083 |
|||||
|
2023 |
236,000 |
236,000 |
25,960 |
25,960 |
0 |
131.88 |
$0 |
$3,424 |
|||||
|
2022 |
179,000 |
126,454 |
13,909 |
1,000 |
12,909 |
130.63 |
$1,686 |
$886 |
|||||
|
2021 |
159,500 |
126,454 |
13,909 |
1,000 |
12,909 |
129.79 |
$1,676 |
$602 |
|||||
| Property Account Status/Adjustments/Exemptions | ||
|---|---|---|
| Account # | Exemption Description | Amount |
|
R146555980 |
3% Cap Homestead |
0 |
|
R146555980 |
100% DAV Exemption |
100 |
|
R146555980 |
DAV Homestead |
0 |
| Property Deed Transaction History (Recorded in the County Clerk's Office) | |||||||
|---|---|---|---|---|---|---|---|
| Date | Type | Book | Page | Price | Grantor | Grantee | |
|
6/28/2022 |
|
Deeds |
$235,000 |
DREW ANGELA |
PEABODY EUGENE D |
||
|
2/1/2022 |
|
Hmstd Off & |
$0 |
WOODRUFF DELPHIA |
DREW ANGELA |
||
|
1/10/2012 |
|
Deeds |
$0 |
WOODRUFF WAYMAN P & DELPHIA K |
WOODRUFF DELPHIA |
||
|
7/1/1979 |
|
Historical |
$0 |
|
WOODRUFF WAYMAN P & DELPHIA K |
||
| Last Mailed Notice of Value (N.O.V.) Information/History | ||||||||
|---|---|---|---|---|---|---|---|---|
| Year | Date | Market Value | Taxable Market Value | Gross Assessed | Exemption | Net Assessed | ||
|
2026 |
02/06/2026 |
227,000 |
226,502 |
24,914 |
24,914 |
0 |
||
|
2025 |
01/31/2025 |
221,000 |
219,905 |
24,189 |
24,189 |
0 |
||
|
2023 |
01/23/2023 |
236,000 |
236,000 |
25,960 |
0 |
25,960 |
||
|
2022 |
02/22/2022 |
179,000 |
126,454 |
13,909 |
1,000 |
12,909 |
||
|
2021 |
02/24/2021 |
159,500 |
126,454 |
13,909 |
1,000 |
12,909 |
||
| Property Building Permit History | |||||||||||
|---|---|---|---|---|---|---|---|---|---|---|---|
| Issued | Permit # | Provided by | Bldg # | Description | Est Construction Cost | Status | |||||
| No Building Permit records returned. | |||||||||||
| Click button on building number to access detailed information: | ||||||
|---|---|---|---|---|---|---|
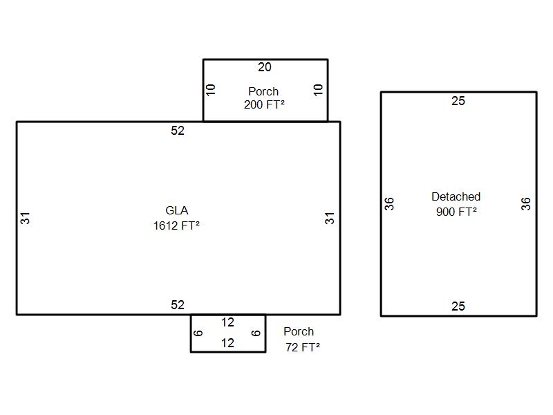
| Bldg # | Vacant/Improved Land | Bldg Description | Year Built | SqFt | # Stories | |
|
1 |
Improved |
Ranch 1 Story |
1970 |
1,612 |
1 Stories |
|