|
|
|
| Larry Stein Oklahoma County Assessor (405) 713-1200 - Public Access System |
|
|
|
|
|
|
| Real Property Display - Screen Produced 4/2/2026 11:42:29 AM | ||||
|---|---|---|---|---|
| Account: R197741000 | Type: Residential | Location: |
3358 COX ST |
|
| Building Name/Occupant: |
|
CHOCTAW |
||
| Owner Name 1: | WILSON MICHAEL J & JAYCEE M |
Parcel PIN#: |
2289-19-774-1000 |
|
| Owner Name 2: | 1/4 section #: |
2289 |
||
| Owner Name 3: | Parent Acct: |
|
||
| Billing Address: | 3358 COX ST | Tax District: |
|
|
| City, State, Zip | CHOCTAW , OK 73020 | School System: |
Choctaw #4 |
|
|
Country: (If noted) |
Land Size: |
0.2479 Acres |
||
|
Land Value: 24,300 |
|
|||
|
Sect 23-T12N-R1W Qtr NE |
WILLIAMSON HTS
Block
000
Lot
001
|
|||
| Full Legal Description: WILLIAMSON HTS 000 001 |
| Photo & Sketch (if available) | Comp Sales (ordered by relevancy) |
|
||||||||||||||||||
|
||||||||||||||||||||
| Value History (*The County Treasurer 405-713-1300 posts & collects actual tax amounts. Contact information HERE) | |||||||||||||
|---|---|---|---|---|---|---|---|---|---|---|---|---|---|
| Year | Market Value | Taxable Mkt Value | Gross Assessed | Exemption | Net Assessed | Millage | Est. Tax | Tax Savings | |||||
|
2026 |
165,500 |
165,500 |
18,205 |
0 |
18,205 |
117.21 |
$2,134 |
$0 |
|||||
|
2025 |
170,500 |
170,500 |
18,755 |
0 |
18,755 |
117.21 |
$2,198 |
$0 |
|||||
|
2024 |
146,500 |
126,787 |
13,946 |
0 |
13,946 |
116.35 |
$1,623 |
$252 |
|||||
|
2023 |
142,000 |
120,750 |
13,282 |
0 |
13,282 |
118.06 |
$1,568 |
$276 |
|||||
|
2022 |
115,000 |
115,000 |
12,650 |
0 |
12,650 |
116.14 |
$1,469 |
$0 |
|||||
| Property Account Status/Adjustments/Exemptions | ||
|---|---|---|
| Account # | Exemption Description | Amount |
|
R197741000 |
5% Capped Account |
0 |
| Property Deed Transaction History (Recorded in the County Clerk's Office) | ||||||||||
|---|---|---|---|---|---|---|---|---|---|---|
| Date | Type | Book | Page | Price | Grantor | Grantee | ||||
|
2/26/2024 |
|
Deeds |
$183,000 |
HIGGINBOTTOM WILLIAM D |
WILSON MICHAEL J & JAYCEE M |
|||||
|
8/21/2019 |
|
Deeds |
$120,000 |
BALDWIN JONATHAN & JENNIFER |
HIGGINBOTTOM WILLIAM D |
|||||
|
2/13/2014 |
|
Deeds |
$105,000 |
TAFT TIMOTHY E & MELISSA S |
BALDWIN JONATHAN & JENNIFER |
|||||
|
2/28/2006 |
|
Deeds |
$76,000 |
JOHNSON BOBBY R JOHNSON ANGELA B |
TAFT TIMOTHY E & MELISSA S |
|||||
|
9/7/1995 |
|
Historical |
$42,000 |
SCHLICHER FLOYD R |
JOHNSON BOBBY R |
|||||
| Last Mailed Notice of Value (N.O.V.) Information/History | ||||||||
|---|---|---|---|---|---|---|---|---|
| Year | Date | Market Value | Taxable Market Value | Gross Assessed | Exemption | Net Assessed | ||
|
2025 |
01/31/2025 |
170,500 |
170,500 |
18,755 |
0 |
18,755 |
||
|
2024 |
01/22/2024 |
146,500 |
126,787 |
13,946 |
0 |
13,946 |
||
|
2024 |
04/05/2024 |
146,500 |
126,787 |
13,946 |
0 |
13,946 |
||
|
2023 |
01/23/2023 |
142,000 |
120,750 |
13,282 |
0 |
13,282 |
||
|
2020 |
02/21/2020 |
115,000 |
115,000 |
12,650 |
0 |
12,650 |
||
| Property Building Permit History | |||||||||||
|---|---|---|---|---|---|---|---|---|---|---|---|
| Issued | Permit # | Provided by | Bldg # | Description | Est Construction Cost | Status | |||||
| No Building Permit records returned. | |||||||||||
| Click button on building number to access detailed information: | ||||||
|---|---|---|---|---|---|---|
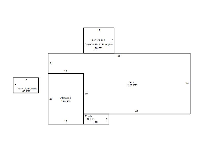
| Bldg # | Vacant/Improved Land | Bldg Description | Year Built | SqFt | # Stories | |
|
1 |
Improved |
Ranch 1 Story |
1964 |
1,120 |
1 Stories |
|