|
|
|
| Larry Stein Oklahoma County Assessor (405) 713-1200 - Public Access System |
|
|
|
|
|
|
| Real Property Display - Screen Produced 4/4/2026 10:55:35 PM | ||||
|---|---|---|---|---|
| Account: R120421970 | Type: Residential | Location: |
10309 CATON PL |
|
| Building Name/Occupant: |
|
MIDWEST CITY |
||
| Owner Name 1: | SELIKMA LLC |
Parcel PIN#: |
2319-12-042-1970 |
|
| Owner Name 2: | 1/4 section #: |
2319 |
||
| Owner Name 3: | Parent Acct: |
|
||
| Billing Address: | 1267 WILLIS ST | Tax District: |
|
|
| City, State, Zip | REDDING, CA 96001 | School System: |
Oklahoma City #89 |
|
|
Country: (If noted) |
Land Size: |
0.1491 Acres |
||
|
Land Value: 15,590 |
|
|||
|
Sect 30-T12N-R1W Qtr SW |
POST OAK TO MIDWEST CITY
Block
004
Lot
003
|
|||
| Full Legal Description: POST OAK TO MIDWEST CITY 004 003 |
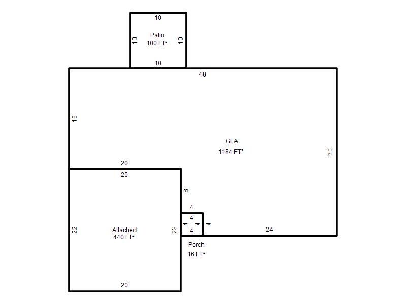
| Photo & Sketch (if available) | Comp Sales (ordered by relevancy) |
|
||||||||||||||||||
|
||||||||||||||||||||
| Value History (*The County Treasurer 405-713-1300 posts & collects actual tax amounts. Contact information HERE) | |||||||||||||
|---|---|---|---|---|---|---|---|---|---|---|---|---|---|
| Year | Market Value | Taxable Mkt Value | Gross Assessed | Exemption | Net Assessed | Millage | Est. Tax | Tax Savings | |||||
|
2026 |
148,000 |
133,704 |
14,707 |
0 |
14,707 |
114.34 |
$1,682 |
$180 |
|||||
|
2025 |
145,500 |
127,338 |
14,007 |
0 |
14,007 |
114.34 |
$1,602 |
$228 |
|||||
|
2024 |
136,500 |
121,275 |
13,340 |
0 |
13,340 |
116.11 |
$1,549 |
$194 |
|||||
|
2023 |
115,500 |
115,500 |
12,705 |
0 |
12,705 |
115.66 |
$1,469 |
$0 |
|||||
|
2022 |
115,500 |
115,500 |
12,705 |
0 |
12,705 |
110.02 |
$1,398 |
$0 |
|||||
| Property Account Status/Adjustments/Exemptions | ||
|---|---|---|
| Account # | Exemption Description | Amount |
|
R120421970 |
5% Capped Account |
0 |
| Property Deed Transaction History (Recorded in the County Clerk's Office) | ||||||||||
|---|---|---|---|---|---|---|---|---|---|---|
| Date | Type | Book | Page | Price | Grantor | Grantee | ||||
|
10/19/2021 |
|
Deeds |
$118,000 |
ZFC PROPERTIES LLC |
SELIKMA LLC |
|||||
|
9/8/2017 |
|
Deeds |
$57,000 |
PURL LADONNA |
ZFC PROPERTIES LLC |
|||||
|
9/25/2003 |
|
Deeds |
$53,000 |
BURFICT JENNIFER L |
PURL LADONNA |
|||||
|
10/26/1995 |
|
Historical |
$39,500 |
HENSON MICHAEL REX |
BURFICT JENNIFER L |
|||||
|
11/30/1988 |
|
Historical |
$29,100 |
SECRETARY OF HOUSING |
HENSON MICHAEL REX |
|||||
| Last Mailed Notice of Value (N.O.V.) Information/History | ||||||||
|---|---|---|---|---|---|---|---|---|
| Year | Date | Market Value | Taxable Market Value | Gross Assessed | Exemption | Net Assessed | ||
|
2026 |
02/06/2026 |
148,000 |
133,704 |
14,707 |
0 |
14,707 |
||
|
2025 |
01/31/2025 |
145,500 |
127,338 |
14,007 |
0 |
14,007 |
||
|
2024 |
01/22/2024 |
136,500 |
121,275 |
13,340 |
0 |
13,340 |
||
|
2022 |
02/22/2022 |
115,500 |
115,500 |
12,705 |
0 |
12,705 |
||
|
2021 |
02/24/2021 |
81,500 |
77,700 |
8,547 |
0 |
8,547 |
||
| Property Building Permit History | |||||||||||
|---|---|---|---|---|---|---|---|---|---|---|---|
| Issued | Permit # | Provided by | Bldg # | Description | Est Construction Cost | Status | |||||
| No Building Permit records returned. | |||||||||||
| Click button on building number to access detailed information: | ||||||
|---|---|---|---|---|---|---|
| Bldg # | Vacant/Improved Land | Bldg Description | Year Built | SqFt | # Stories | |
|
1 |
Improved |
Ranch 1 Story |
1984 |
1,184 |
1 Stories |
|