|
|
|
| Larry Stein Oklahoma County Assessor (405) 713-1200 - Public Access System |
|
|
|
|
|
|
| Real Property Display - Screen Produced 3/12/2026 11:38:26 AM | ||||
|---|---|---|---|---|
| Account: R144061550 | Type: Residential | Location: |
13200 SE 31ST ST |
|
| Building Name/Occupant: |
|
OKLAHOMA CITY |
||
| Owner Name 1: | LEMRANI SIMO |
Parcel PIN#: |
1260-14-406-1550 |
|
| Owner Name 2: | SUNDLY CHRISTINA | 1/4 section #: |
1260 |
|
| Owner Name 3: | Parent Acct: |
|
||
| Billing Address: | 12404 SUSSEX RD | Tax District: |
|
|
| City, State, Zip | OKLAHOMA CITY, OK 73130-4915 | School System: |
Choctaw #4 |
|
|
Country: (If noted) |
Land Size: |
2.8300 Acres |
||
|
Land Value: 47,377 |
|
|||
|
Sect 15-T11N-R1W Qtr NW |
UNPLTD PT SEC 15 11N 1W
Block
000
Lot
000
|
|||
| Full Legal Description: UNPLTD PT SEC 15 11N 1W 000 000 PT OF NW4 SEC 15 11N 1W BEG 685FT S & 872.09FT E OF NW/C OF NW4 TH E194FT S635FT W194FT N635FT TO BEG OR E194FT OF LOT 22 UNREC PLAT OF OAKWOOD VILLAGE |
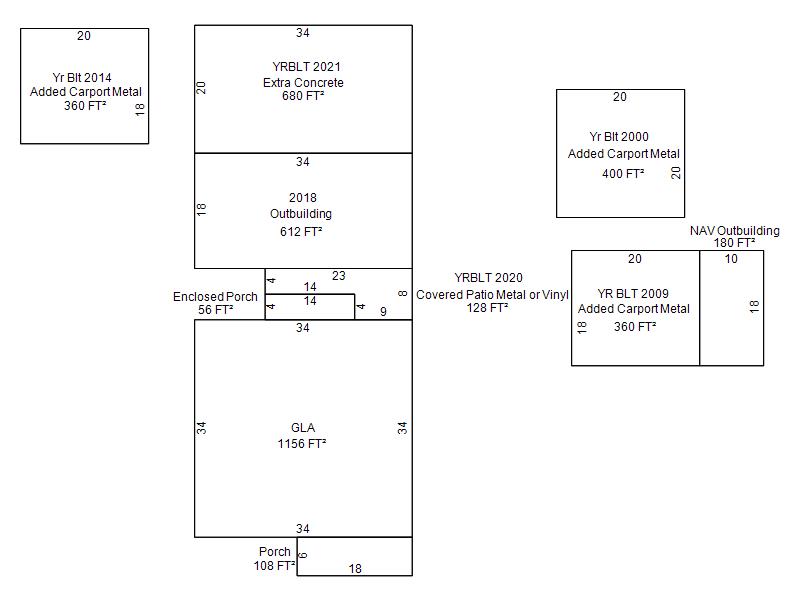
| Photo & Sketch (if available) | Comp Sales (ordered by relevancy) |
|
||||||||||||||||||
|
||||||||||||||||||||
| Value History (*The County Treasurer 405-713-1300 posts & collects actual tax amounts. Contact information HERE) | |||||||||||||
|---|---|---|---|---|---|---|---|---|---|---|---|---|---|
| Year | Market Value | Taxable Mkt Value | Gross Assessed | Exemption | Net Assessed | Millage | Est. Tax | Tax Savings | |||||
|
2025 |
154,500 |
121,198 |
13,330 |
0 |
13,330 |
132.37 |
$1,765 |
$485 |
|||||
|
2024 |
149,500 |
115,427 |
12,696 |
0 |
12,696 |
131.28 |
$1,667 |
$492 |
|||||
|
2023 |
145,500 |
109,931 |
12,092 |
1,000 |
11,092 |
131.88 |
$1,463 |
$648 |
|||||
|
2022 |
132,500 |
106,730 |
11,739 |
1,000 |
10,739 |
130.63 |
$1,403 |
$501 |
|||||
|
2021 |
113,000 |
103,622 |
11,397 |
1,000 |
10,397 |
129.79 |
$1,350 |
$264 |
|||||
| Property Account Status/Adjustments/Exemptions | ||
|---|---|---|
| Account # | Exemption Description | Amount |
|
R144061550 |
5% Capped Account |
0 |
| Property Deed Transaction History (Recorded in the County Clerk's Office) | |||||||
|---|---|---|---|---|---|---|---|
| Date | Type | Book | Page | Price | Grantor | Grantee | |
|
3/25/2009 |
|
Deeds |
$37,500 |
LACER STAN A & PHYLLIS G |
LEMRANI SIMO |
||
|
8/19/2007 |
|
Deeds |
$0 |
LACER TED VON LACER STAN A |
LACER STAN A & PHYLLIS G |
||
|
10/9/1998 |
|
Historical |
$0 |
LACER MURREL P |
LACER TED VON |
||
|
10/1/1998 |
|
Historical |
$0 |
LACER MURREL P & JOAN |
LACER MURREL P |
||
|
11/11/1911 |
|
Historical |
$0 |
|
LACER MURREL P & JOAN |
||
| Last Mailed Notice of Value (N.O.V.) Information/History | ||||||||
|---|---|---|---|---|---|---|---|---|
| Year | Date | Market Value | Taxable Market Value | Gross Assessed | Exemption | Net Assessed | ||
|
2026 |
02/06/2026 |
153,500 |
127,257 |
13,997 |
0 |
13,997 |
||
|
2025 |
01/31/2025 |
154,500 |
121,198 |
13,330 |
0 |
13,330 |
||
|
2024 |
01/22/2024 |
149,500 |
115,427 |
12,696 |
0 |
12,696 |
||
|
2023 |
01/23/2023 |
145,500 |
109,931 |
12,092 |
1,000 |
11,092 |
||
|
2022 |
02/22/2022 |
132,500 |
106,730 |
11,738 |
1,000 |
10,738 |
||
| Property Building Permit History | ||||||
|---|---|---|---|---|---|---|
| Issued | Permit # | Provided by | Bldg # | Description | Est Construction Cost | Status |
|
12/18/2009 |
10390793 |
COUNTY |
1 |
Remodeled |
0 |
Inactive |
|
11/3/2009 |
10390493 |
OKLAHOMA CITY |
1 |
Barn |
2,500 |
Inactive |
| Click button on building number to access detailed information: | ||||||
|---|---|---|---|---|---|---|
| Bldg # | Vacant/Improved Land | Bldg Description | Year Built | SqFt | # Stories | |
|
1 |
Improved |
Ranch 1 Story |
1956 |
1,156 |
1 Stories |
|