|
|
|
| Larry Stein Oklahoma County Assessor (405) 713-1200 - Public Access System |
|
|
|
|
|
|
| Real Property Display - Screen Produced 3/14/2026 3:50:16 AM | ||||
|---|---|---|---|---|
| Account: R144062125 | Type: Residential | Location: |
13424 SE 35TH ST |
|
| Building Name/Occupant: |
|
OKLAHOMA CITY |
||
| Owner Name 1: | FOX RICHARD A |
Parcel PIN#: |
1260-14-406-2125 |
|
| Owner Name 2: | 1/4 section #: |
1260 |
||
| Owner Name 3: | Parent Acct: |
|
||
| Billing Address: | 13424 SE 35TH ST | Tax District: |
|
|
| City, State, Zip | CHOCTAW, OK 73020-6167 | School System: |
Choctaw #4 |
|
|
Country: (If noted) |
Land Size: |
2.5100 Acres |
||
|
Land Value: 46,184 |
|
|||
|
Sect 15-T11N-R1W Qtr NW |
UNPLTD PT SEC 15 11N 1W
Block
000
Lot
000
|
|||
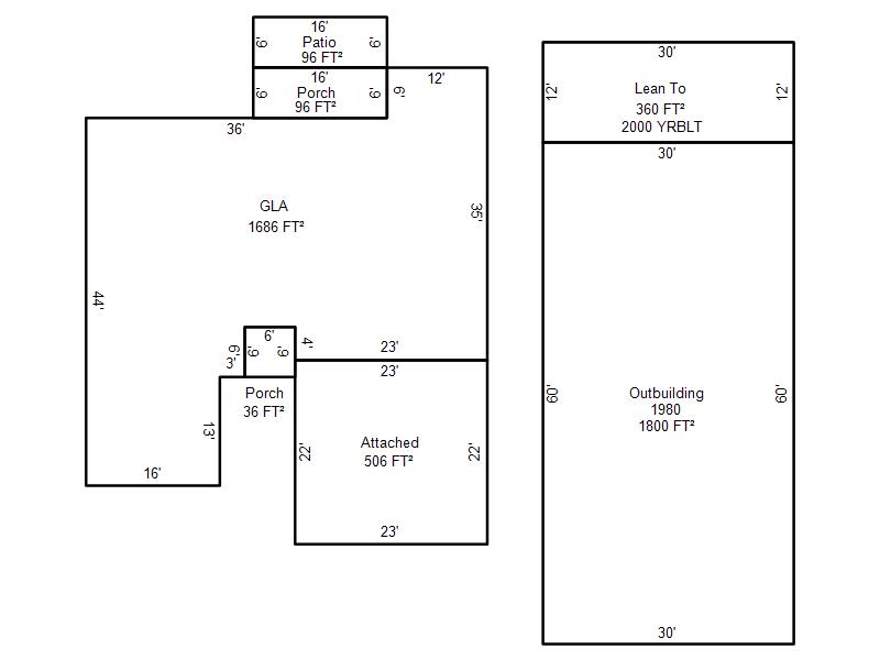
| Full Legal Description: UNPLTD PT SEC 15 11N 1W 000 000 PT N1/2 SEC 15 11N 1W BEG 635FT N & 2443.53FT E OF SW/C NW4TH E172.18FT S635FT W172.18FT N635FT TO BEG AKA W172.18FT OF LT 45 OAKWOOD VILLAGE UNREC |
| Photo & Sketch (if available) | Comp Sales (ordered by relevancy) |
|
||||||||||||||||||
|
||||||||||||||||||||
| Value History (*The County Treasurer 405-713-1300 posts & collects actual tax amounts. Contact information HERE) | |||||||||||||
|---|---|---|---|---|---|---|---|---|---|---|---|---|---|
| Year | Market Value | Taxable Mkt Value | Gross Assessed | Exemption | Net Assessed | Millage | Est. Tax | Tax Savings | |||||
| No PropertyValuation records returned. | |||||||||||||
| Property Account Status/Adjustments/Exemptions | ||
|---|---|---|
| Account # | Exemption Description | Amount |
|
R144062125 |
5% Capped Account |
0 |
| Property Deed Transaction History (Recorded in the County Clerk's Office) | ||||||||||
|---|---|---|---|---|---|---|---|---|---|---|
| Date | Type | Book | Page | Price | Grantor | Grantee | ||||
|
4/8/2016 |
|
Deeds |
$180,000 |
GALVIN M BERNICE TRS GALVIN M BERNICE LIVING TRUST |
FOX RICHARD A |
|||||
|
5/14/2013 |
|
Deeds |
$0 |
GALVIN MYRTLE B |
GALVIN M BERNICE TRS GALVIN M BERNICE LIVING TRUST |
|||||
|
10/1/2007 |
|
Deeds |
$175,000 |
MONROE TERRY & TAMMY |
GALVIN MYRTLE B |
|||||
|
1/30/2004 |
|
Deeds |
$0 |
MONROE TERRY |
MONROE TERRY & TAMMY |
|||||
|
8/26/2002 |
|
Deeds |
$0 |
MONROE TERRY MONROE DARRELL |
MONROE TERRY |
|||||
| Last Mailed Notice of Value (N.O.V.) Information/History | ||||||||
|---|---|---|---|---|---|---|---|---|
| Year | Date | Market Value | Taxable Market Value | Gross Assessed | Exemption | Net Assessed | ||
| No Notice of Value N.O.V. records returned. | ||||||||
| Property Building Permit History | ||||||
|---|---|---|---|---|---|---|
| Issued | Permit # | Provided by | Bldg # | Description | Est Construction Cost | Status |
|
12/17/1999 |
10238818 |
OKLAHOMA CITY |
1 |
Main Dwellin |
85,000 |
Inactive |
|
12/6/1999 |
10238817 |
OKLAHOMA CITY |
1 |
Demolish |
0 |
Inactive |
| Click button on building number to access detailed information: | ||||||
|---|---|---|---|---|---|---|
| Bldg # | Vacant/Improved Land | Bldg Description | Year Built | SqFt | # Stories | |
|
1 |
Improved |
Ranch 1 Story |
2000 |
1,686 |
1 Stories |
|