|
|
|
| Larry Stein Oklahoma County Assessor (405) 713-1200 - Public Access System |
|
|
|
|
|
|
| Real Property Display - Screen Produced 3/21/2026 1:51:02 PM | ||||
|---|---|---|---|---|
| Account: R197099500 | Type: Residential | Location: |
10100 NE 17TH ST |
|
| Building Name/Occupant: |
|
NICOMA PARK |
||
| Owner Name 1: | READICKER LAWRENCE J |
Parcel PIN#: |
2320-19-709-9500 |
|
| Owner Name 2: | STEPHENS TERESA FAY | 1/4 section #: |
2320 |
|
| Owner Name 3: | Parent Acct: |
|
||
| Billing Address: | 10100 NE 17TH ST | Tax District: |
|
|
| City, State, Zip | OKLAHOMA CITY, OK 73141-5604 | School System: |
Oklahoma City #89 |
|
|
Country: (If noted) |
Land Size: |
1.5000 Acres |
||
|
Land Value: 40,005 |
|
|||
|
Sect 30-T12N-R1W Qtr NW |
LEAVITTS EASTWOOD ADDITION
Block
000
Lot
118
|
|||
| Full Legal Description: LEAVITTS EASTWOOD ADDITION 000 118 |
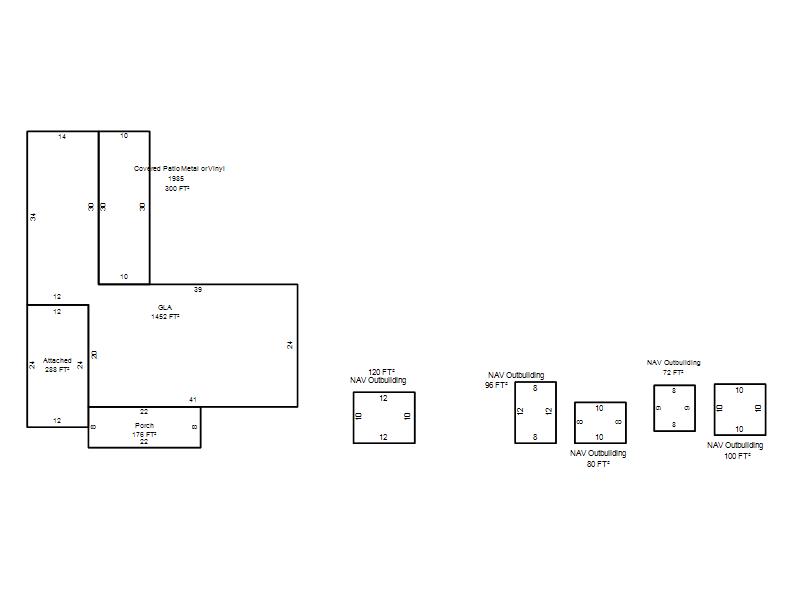
| Photo & Sketch (if available) | Comp Sales (ordered by relevancy) |
|
||||||||||||||||||
|
||||||||||||||||||||
| Value History (*The County Treasurer 405-713-1300 posts & collects actual tax amounts. Contact information HERE) | |||||||||||||
|---|---|---|---|---|---|---|---|---|---|---|---|---|---|
| Year | Market Value | Taxable Mkt Value | Gross Assessed | Exemption | Net Assessed | Millage | Est. Tax | Tax Savings | |||||
|
2025 |
118,000 |
42,938 |
4,722 |
0 |
4,722 |
107.74 |
$509 |
$890 |
|||||
|
2024 |
97,500 |
40,894 |
4,498 |
0 |
4,498 |
108.96 |
$490 |
$678 |
|||||
|
2023 |
97,500 |
38,947 |
4,284 |
0 |
4,284 |
108.04 |
$463 |
$696 |
|||||
|
2022 |
88,500 |
37,093 |
4,079 |
0 |
4,079 |
102.17 |
$417 |
$578 |
|||||
|
2021 |
72,000 |
35,327 |
3,885 |
0 |
3,885 |
102.97 |
$400 |
$415 |
|||||
| Property Account Status/Adjustments/Exemptions | ||||||
|---|---|---|---|---|---|---|
| Account # | Exemption Description | Amount | ||||
| No adjustment/exemption records returned. | ||||||
| Property Deed Transaction History (Recorded in the County Clerk's Office) | |||||||
|---|---|---|---|---|---|---|---|
| Date | Type | Book | Page | Price | Grantor | Grantee | |
|
3/13/2025 |
|
Deeds |
$45,000 |
SEARLE VERA ADMIN |
READICKER LAWRENCE J |
||
|
9/19/2024 |
|
Hmstd Off & |
$0 |
DAWKINS RUBY & WILLIAM R |
SEARLE VERA ADMIN |
||
|
11/11/1911 |
|
Historical |
$0 |
|
DAWKINS RUBY & WILLIAM R |
||
| Last Mailed Notice of Value (N.O.V.) Information/History | ||||||||
|---|---|---|---|---|---|---|---|---|
| Year | Date | Market Value | Taxable Market Value | Gross Assessed | Exemption | Net Assessed | ||
|
2026 |
02/06/2026 |
119,500 |
45,084 |
4,959 |
0 |
4,959 |
||
|
2025 |
01/31/2025 |
118,000 |
42,938 |
4,722 |
0 |
4,722 |
||
|
2024 |
01/22/2024 |
97,500 |
40,894 |
4,498 |
0 |
4,498 |
||
|
2023 |
01/23/2023 |
97,500 |
38,947 |
4,284 |
0 |
4,284 |
||
|
2022 |
02/22/2022 |
88,500 |
37,093 |
4,079 |
0 |
4,079 |
||
| Property Building Permit History | |||||||||||
|---|---|---|---|---|---|---|---|---|---|---|---|
| Issued | Permit # | Provided by | Bldg # | Description | Est Construction Cost | Status | |||||
| No Building Permit records returned. | |||||||||||
| Click button on building number to access detailed information: | ||||||
|---|---|---|---|---|---|---|
| Bldg # | Vacant/Improved Land | Bldg Description | Year Built | SqFt | # Stories | |
|
1 |
Improved |
Ranch 1 Story |
1946 |
1,452 |
1 Stories |
|