|
|
|
| Larry Stein Oklahoma County Assessor (405) 713-1200 - Public Access System |
|
|
|
|
|
|
| Real Property Display - Screen Produced 3/18/2026 12:02:56 PM | ||||
|---|---|---|---|---|
| Account: R156353000 | Type: Residential | Location: |
520 N CEDAR DR |
|
| Building Name/Occupant: |
|
MIDWEST CITY |
||
| Owner Name 1: | LEX LLC |
Parcel PIN#: |
2321-15-635-3000 |
|
| Owner Name 2: | 1/4 section #: |
2321 |
||
| Owner Name 3: | Parent Acct: |
|
||
| Billing Address: | PO BOX 10537 | Tax District: |
|
|
| City, State, Zip | MIDWEST CITY, OK 73140 | School System: |
Choctaw #4 |
|
|
Country: (If noted) |
Land Size: |
0.2800 Acres |
||
|
Land Value: 25,563 |
|
|||
|
Sect 31-T12N-R1W Qtr NE |
UNPLTD PT SEC 31 12N 1W
Block
000
Lot
000
|
|||
| Full Legal Description: UNPLTD PT SEC 31 12N 1W 000 000 PT NE4 SEC 31 12N 1W BEG 710FT E & 230FT N OF SW/C NE4 TH N100FT E155FT SW83.67FT S34.12FT W103.70FT TO BEG CONT .28ACRS MORE OR LESS AKA TR 7 |
| Photo & Sketch (if available) | Comp Sales (ordered by relevancy) |
|
||||||||||||||||||
|
||||||||||||||||||||
| Value History (*The County Treasurer 405-713-1300 posts & collects actual tax amounts. Contact information HERE) | |||||||||||||
|---|---|---|---|---|---|---|---|---|---|---|---|---|---|
| Year | Market Value | Taxable Mkt Value | Gross Assessed | Exemption | Net Assessed | Millage | Est. Tax | Tax Savings | |||||
|
2025 |
195,500 |
164,091 |
18,049 |
0 |
18,049 |
127.03 |
$2,293 |
$439 |
|||||
|
2024 |
184,000 |
156,278 |
17,190 |
0 |
17,190 |
127.00 |
$2,183 |
$387 |
|||||
|
2023 |
172,000 |
148,837 |
16,371 |
0 |
16,371 |
128.50 |
$2,104 |
$327 |
|||||
|
2022 |
151,500 |
141,750 |
15,592 |
0 |
15,592 |
127.22 |
$1,984 |
$136 |
|||||
|
2021 |
135,000 |
135,000 |
14,850 |
0 |
14,850 |
126.69 |
$1,881 |
$0 |
|||||
| Property Account Status/Adjustments/Exemptions | ||||||
|---|---|---|---|---|---|---|
| Account # | Exemption Description | Amount | ||||
| No adjustment/exemption records returned. | ||||||
| Property Deed Transaction History (Recorded in the County Clerk's Office) | ||||||||||
|---|---|---|---|---|---|---|---|---|---|---|
| Date | Type | Book | Page | Price | Grantor | Grantee | ||||
|
7/29/2021 |
|
Hmstd Off & |
$0 |
MOORE JEFFREY L |
LEX LLC |
|||||
|
11/28/2012 |
|
Deeds |
$0 |
MOORE JEFFREY L |
MOORE JEFFREY L |
|||||
|
6/25/2010 |
|
Deeds |
$0 |
TERMINATION OF JOINT TENANCY |
CROFT JAMES W |
|||||
|
6/25/2010 |
|
Deeds |
$0 |
CROFT JIMMY LEE & CARRIE L |
CROFT JIMMY LEE & CARRIE L |
|||||
|
6/25/2010 |
|
Mult Parcel |
$125,000 |
CROFT JIMMY LEE & CARRIE LOUISE |
MOORE JEFFREY L |
|||||
| Last Mailed Notice of Value (N.O.V.) Information/History | ||||||||
|---|---|---|---|---|---|---|---|---|
| Year | Date | Market Value | Taxable Market Value | Gross Assessed | Exemption | Net Assessed | ||
|
2026 |
02/06/2026 |
191,000 |
172,295 |
18,952 |
0 |
18,952 |
||
|
2025 |
01/31/2025 |
195,500 |
164,091 |
18,049 |
0 |
18,049 |
||
|
2024 |
01/22/2024 |
184,000 |
156,278 |
17,190 |
0 |
17,190 |
||
|
2023 |
01/23/2023 |
172,000 |
148,837 |
16,371 |
0 |
16,371 |
||
|
2022 |
02/22/2022 |
151,500 |
141,750 |
15,592 |
0 |
15,592 |
||
| Property Building Permit History | ||||||
|---|---|---|---|---|---|---|
| Issued | Permit # | Provided by | Bldg # | Description | Est Construction Cost | Status |
|
7/26/2010 |
10404231 |
MIDWEST CITY |
1 |
Remodeled |
0 |
Inactive |
| Click button on building number to access detailed information: | ||||||
|---|---|---|---|---|---|---|
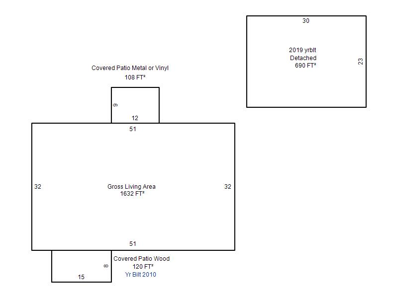
| Bldg # | Vacant/Improved Land | Bldg Description | Year Built | SqFt | # Stories | |
|
1 |
Improved |
Ranch 1 Story |
1957 |
1,632 |
1 Stories |
|