|
|
|
| Larry Stein Oklahoma County Assessor (405) 713-1200 - Public Access System |
|
|
|
|
|
|
| Real Property Display - Screen Produced 3/18/2026 4:46:33 PM | ||||
|---|---|---|---|---|
| Account: R151151165 | Type: Residential | Location: |
204 N POST RD |
|
| Building Name/Occupant: |
|
MIDWEST CITY |
||
| Owner Name 1: | C & S CUSTOM HOMES LLC |
Parcel PIN#: |
2323-15-115-1165 |
|
| Owner Name 2: | 1/4 section #: |
2323 |
||
| Owner Name 3: | Parent Acct: |
|
||
| Billing Address: | 455 N CEDAR DR | Tax District: |
|
|
| City, State, Zip | MIDWEST CITY, OK 73130-4009 | School System: |
Mid-Del #52 |
|
|
Country: (If noted) |
Land Size: |
0.3844 Acres |
||
|
Land Value: 16,745 |
|
|||
|
Sect 31-T12N-R1W Qtr SW |
POINTONS OAKDALE PRK
Block
002
Lot
002
|
|||
| Full Legal Description: POINTONS OAKDALE PRK 002 002 |
| Photo & Sketch (if available) | Comp Sales (ordered by relevancy) |
|
||||||||||||||||||
|
||||||||||||||||||||
| Value History (*The County Treasurer 405-713-1300 posts & collects actual tax amounts. Contact information HERE) | |||||||||||||
|---|---|---|---|---|---|---|---|---|---|---|---|---|---|
| Year | Market Value | Taxable Mkt Value | Gross Assessed | Exemption | Net Assessed | Millage | Est. Tax | Tax Savings | |||||
|
2025 |
135,500 |
113,587 |
12,493 |
0 |
12,493 |
119.58 |
$1,494 |
$288 |
|||||
|
2024 |
129,000 |
108,179 |
11,899 |
0 |
11,899 |
122.51 |
$1,458 |
$281 |
|||||
|
2023 |
122,500 |
103,028 |
11,332 |
0 |
11,332 |
117.71 |
$1,334 |
$252 |
|||||
|
2022 |
111,000 |
98,122 |
10,792 |
0 |
10,792 |
116.64 |
$1,259 |
$165 |
|||||
|
2021 |
97,500 |
93,450 |
10,279 |
0 |
10,279 |
119.45 |
$1,228 |
$53 |
|||||
| Property Account Status/Adjustments/Exemptions | ||
|---|---|---|
| Account # | Exemption Description | Amount |
|
R151151165 |
5% Capped Account |
0 |
| Property Deed Transaction History (Recorded in the County Clerk's Office) | ||||||||||
|---|---|---|---|---|---|---|---|---|---|---|
| Date | Type | Book | Page | Price | Grantor | Grantee | ||||
|
2/1/2024 |
|
Hmstd Off & |
$0 |
NIDER CHARELS & SUSAN CO TRS |
C & S CUSTOM HOMES LLC |
|||||
|
10/11/2013 |
|
Deeds |
$0 |
NIDER CHARLES & SUSAN |
NIDER CHARELS & SUSAN CO TRS |
|||||
|
8/29/2005 |
|
Deeds |
$56,500 |
ALTRUISTIC PROPERTIES LLC |
NIDER CHARLES L & SUSAN W |
|||||
|
8/29/2005 |
|
Deeds |
$54,000 |
DAVIS DANNY L SR & ZONA L |
ALTRUISTIC PROPERTIES LLC |
|||||
|
12/14/1994 |
|
Historical |
$43,500 |
PRUEGERT MAX S JR & GERRI ANN |
ALTRUISTIC PROPERTIES LLC |
|||||
| Last Mailed Notice of Value (N.O.V.) Information/History | ||||||||
|---|---|---|---|---|---|---|---|---|
| Year | Date | Market Value | Taxable Market Value | Gross Assessed | Exemption | Net Assessed | ||
|
2026 |
02/06/2026 |
136,500 |
119,266 |
13,118 |
0 |
13,118 |
||
|
2025 |
01/31/2025 |
135,500 |
113,587 |
12,493 |
0 |
12,493 |
||
|
2024 |
01/22/2024 |
129,000 |
108,179 |
11,899 |
0 |
11,899 |
||
|
2023 |
01/23/2023 |
122,500 |
103,028 |
11,332 |
0 |
11,332 |
||
|
2022 |
02/22/2022 |
111,000 |
98,122 |
10,792 |
0 |
10,792 |
||
| Property Building Permit History | |||||||||||
|---|---|---|---|---|---|---|---|---|---|---|---|
| Issued | Permit # | Provided by | Bldg # | Description | Est Construction Cost | Status | |||||
| No Building Permit records returned. | |||||||||||
| Click button on building number to access detailed information: | ||||||
|---|---|---|---|---|---|---|
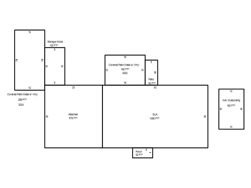
| Bldg # | Vacant/Improved Land | Bldg Description | Year Built | SqFt | # Stories | |
|
1 |
Improved |
Ranch 1 Story |
1961 |
1,050 |
1 Stories |
|