|
|
|
| Larry Stein Oklahoma County Assessor (405) 713-1200 - Public Access System |
|
|
|
|
|
|
| Real Property Display - Screen Produced 3/18/2026 4:46:33 PM | ||||
|---|---|---|---|---|
| Account: R151151255 | Type: Residential | Location: |
10108 OAK PARK DR |
|
| Building Name/Occupant: |
|
MIDWEST CITY |
||
| Owner Name 1: | MILES ALANNA DAWN |
Parcel PIN#: |
2323-15-115-1255 |
|
| Owner Name 2: | 1/4 section #: |
2323 |
||
| Owner Name 3: | Parent Acct: |
|
||
| Billing Address: | 10108 OAK PARK DR | Tax District: |
|
|
| City, State, Zip | MIDWEST CITY, OK 73130-3604 | School System: |
Mid-Del #52 |
|
|
Country: (If noted) |
Land Size: |
0.7649 Acres |
||
|
Land Value: 33,320 |
|
|||
|
Sect 31-T12N-R1W Qtr SW |
POINTONS OAKDALE PRK
Block
002
Lot
011
|
|||
| Full Legal Description: POINTONS OAKDALE PRK 002 011 |
| Photo & Sketch (if available) | Comp Sales (ordered by relevancy) |
|
||||||||||||||||||
|
||||||||||||||||||||
| Value History (*The County Treasurer 405-713-1300 posts & collects actual tax amounts. Contact information HERE) | |||||||||||||
|---|---|---|---|---|---|---|---|---|---|---|---|---|---|
| Year | Market Value | Taxable Mkt Value | Gross Assessed | Exemption | Net Assessed | Millage | Est. Tax | Tax Savings | |||||
|
2025 |
179,500 |
147,408 |
16,214 |
0 |
16,214 |
119.58 |
$1,939 |
$422 |
|||||
|
2024 |
171,500 |
140,389 |
15,442 |
0 |
15,442 |
122.51 |
$1,892 |
$419 |
|||||
|
2023 |
161,500 |
133,704 |
14,707 |
0 |
14,707 |
117.71 |
$1,731 |
$360 |
|||||
|
2022 |
147,500 |
127,338 |
14,007 |
0 |
14,007 |
116.64 |
$1,634 |
$259 |
|||||
|
2021 |
127,000 |
121,275 |
13,340 |
0 |
13,340 |
119.45 |
$1,593 |
$75 |
|||||
| Property Account Status/Adjustments/Exemptions | ||
|---|---|---|
| Account # | Exemption Description | Amount |
|
R151151255 |
5% Capped Account |
0 |
| Property Deed Transaction History (Recorded in the County Clerk's Office) | ||||||||||
|---|---|---|---|---|---|---|---|---|---|---|
| Date | Type | Book | Page | Price | Grantor | Grantee | ||||
|
12/19/2016 |
|
Deeds |
$117,000 |
NEEL SHELLEY |
MILES ALANNA DAWN |
|||||
|
10/25/2013 |
|
Deeds |
$112,000 |
BREEDEN DANNY B TRS BREEDEN DANNY B REV TRUST |
NEEL SHELLEY |
|||||
|
6/2/2009 |
|
Hmstd Off & |
$0 |
BREEDEN DANNY |
BREEDEN DANNY B TRS BREEDEN DANNY B REV TRUST |
|||||
|
4/8/2009 |
|
Deeds |
$0 |
BREEDEN DANNY B & MELANIE L |
BREEDEN DANNY |
|||||
|
11/26/2008 |
|
Deeds |
$100,000 |
CORNELL SHARON L |
BREEDEN DANNY B & MELANIE L |
|||||
| Last Mailed Notice of Value (N.O.V.) Information/History | ||||||||
|---|---|---|---|---|---|---|---|---|
| Year | Date | Market Value | Taxable Market Value | Gross Assessed | Exemption | Net Assessed | ||
|
2026 |
02/06/2026 |
176,000 |
154,778 |
17,024 |
0 |
17,024 |
||
|
2025 |
01/31/2025 |
179,500 |
147,408 |
16,214 |
0 |
16,214 |
||
|
2024 |
01/22/2024 |
171,500 |
140,389 |
15,442 |
0 |
15,442 |
||
|
2023 |
01/23/2023 |
161,500 |
133,704 |
14,707 |
0 |
14,707 |
||
|
2022 |
02/22/2022 |
147,500 |
127,338 |
14,007 |
0 |
14,007 |
||
| Property Building Permit History | |||||||||||
|---|---|---|---|---|---|---|---|---|---|---|---|
| Issued | Permit # | Provided by | Bldg # | Description | Est Construction Cost | Status | |||||
| No Building Permit records returned. | |||||||||||
| Click button on building number to access detailed information: | ||||||
|---|---|---|---|---|---|---|
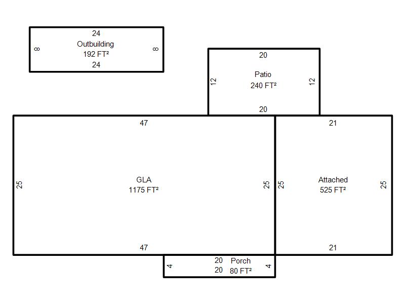
| Bldg # | Vacant/Improved Land | Bldg Description | Year Built | SqFt | # Stories | |
|
1 |
Improved |
Ranch 1 Story |
1959 |
1,175 |
1 Stories |
|