|
|
|
| Larry Stein Oklahoma County Assessor (405) 713-1200 - Public Access System |
|
|
|
|
|
|
| Real Property Display - Screen Produced 3/20/2026 6:13:21 AM | ||||
|---|---|---|---|---|
| Account: R154951475 | Type: Residential | Location: |
915 N PINE ST |
|
| Building Name/Occupant: |
|
MIDWEST CITY |
||
| Owner Name 1: | CARKHUFF DIANE E |
Parcel PIN#: |
2324-15-495-1475 |
|
| Owner Name 2: | 1/4 section #: |
2324 |
||
| Owner Name 3: | Parent Acct: |
|
||
| Billing Address: | 915 N PINE AVE | Tax District: |
|
|
| City, State, Zip | MIDWEST CITY, OK 73130-2919 | School System: |
Choctaw #4 |
|
|
Country: (If noted) |
Land Size: |
0.8000 Acres |
||
|
Land Value: 32,037 |
|
|||
|
Sect 31-T12N-R1W Qtr NW |
HARPER ADDITION
Block
002
Lot
004
|
|||
| Full Legal Description: HARPER ADDITION 002 004 N120FT OF S180FT |
| Photo & Sketch (if available) | Comp Sales (ordered by relevancy) |
|
||||||||||||||||||
|
||||||||||||||||||||
| Value History (*The County Treasurer 405-713-1300 posts & collects actual tax amounts. Contact information HERE) | |||||||||||||
|---|---|---|---|---|---|---|---|---|---|---|---|---|---|
| Year | Market Value | Taxable Mkt Value | Gross Assessed | Exemption | Net Assessed | Millage | Est. Tax | Tax Savings | |||||
|
2025 |
110,500 |
59,552 |
6,550 |
1,000 |
5,550 |
127.03 |
$705 |
$839 |
|||||
|
2024 |
100,500 |
59,552 |
6,550 |
1,000 |
5,550 |
127.00 |
$705 |
$699 |
|||||
|
2023 |
89,500 |
59,552 |
6,550 |
1,000 |
5,550 |
128.50 |
$713 |
$552 |
|||||
|
2022 |
81,000 |
59,552 |
6,550 |
1,000 |
5,550 |
127.22 |
$706 |
$427 |
|||||
|
2021 |
69,000 |
59,552 |
6,550 |
1,000 |
5,550 |
126.69 |
$703 |
$258 |
|||||
| Property Account Status/Adjustments/Exemptions | ||
|---|---|---|
| Account # | Exemption Description | Amount |
|
R154951475 |
Freeze Senior Valuation |
0 |
|
R154951475 |
3% Cap Homestead |
0 |
|
R154951475 |
Homestead |
1,000 |
| Property Deed Transaction History (Recorded in the County Clerk's Office) | ||||||||||
|---|---|---|---|---|---|---|---|---|---|---|
| Date | Type | Book | Page | Price | Grantor | Grantee | ||||
|
1/18/2002 |
|
Deeds |
$38,000 |
ROBBINS TREVOR M PEAL DONNA K |
CARKHUFF DIANE E |
|||||
|
6/16/1998 |
|
Historical |
$30,667 |
WOODS E O |
ROBBINS TREVOR M |
|||||
|
3/1/1996 |
|
Historical |
$0 |
WOODS E O |
WOODS E O |
|||||
|
12/4/1995 |
|
Historical |
$27,000 |
GARDNER LESLIE G & BETTY A |
WOODS E O |
|||||
|
2/17/1993 |
|
Historical |
$24,000 |
SECRETARY OF VETERANS AFFAIRS |
GARDNER LESLIE G & BETTY A |
|||||
| Last Mailed Notice of Value (N.O.V.) Information/History | ||||||||
|---|---|---|---|---|---|---|---|---|
| Year | Date | Market Value | Taxable Market Value | Gross Assessed | Exemption | Net Assessed | ||
|
2025 |
01/31/2025 |
110,500 |
59,552 |
6,550 |
1,000 |
5,550 |
||
|
2024 |
01/22/2024 |
100,500 |
59,552 |
6,550 |
1,000 |
5,550 |
||
|
2023 |
01/23/2023 |
89,500 |
59,552 |
6,550 |
1,000 |
5,550 |
||
|
2022 |
02/22/2022 |
81,000 |
59,552 |
6,550 |
1,000 |
5,550 |
||
|
2021 |
02/24/2021 |
69,000 |
59,552 |
6,550 |
1,000 |
5,550 |
||
| Property Building Permit History | |||||||||||
|---|---|---|---|---|---|---|---|---|---|---|---|
| Issued | Permit # | Provided by | Bldg # | Description | Est Construction Cost | Status | |||||
| No Building Permit records returned. | |||||||||||
| Click button on building number to access detailed information: | ||||||
|---|---|---|---|---|---|---|
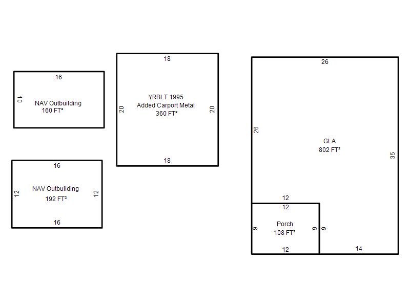
| Bldg # | Vacant/Improved Land | Bldg Description | Year Built | SqFt | # Stories | |
|
1 |
Improved |
Ranch 1 Story |
1930 |
802 |
1 Stories |
|