|
|
|
| Larry Stein Oklahoma County Assessor (405) 713-1200 - Public Access System |
|
|
|
|
|
|
| Real Property Display - Screen Produced 3/18/2026 3:02:23 PM | ||||
|---|---|---|---|---|
| Account: R156350280 | Type: Residential | Location: |
10717 NE 7TH ST |
|
| Building Name/Occupant: |
|
MIDWEST CITY |
||
| Owner Name 1: | GASIOROWSKI GABRIEL |
Parcel PIN#: |
2321-15-635-0280 |
|
| Owner Name 2: | GASIOROWSKI SARAH | 1/4 section #: |
2321 |
|
| Owner Name 3: | Parent Acct: |
|
||
| Billing Address: | 10717 NE 7TH ST | Tax District: |
|
|
| City, State, Zip | OKLAHOMA CITY, OK 73130 | School System: |
Choctaw #4 |
|
|
Country: (If noted) |
UNITED STATES |
Land Size: |
0.5600 Acres |
|
|
Land Value: 29,216 |
|
|||
|
Sect 31-T12N-R1W Qtr NE |
UNPLTD PT SEC 31 12N 1W
Block
000
Lot
000
|
|||
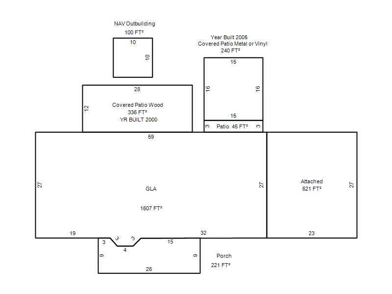
| Full Legal Description: UNPLTD PT NE4 SEC 31 12N 1W BEG 1320FT N & 865FT E SW/C NE4 TH N195FT E125FT S195FT W125FT TO BEG |
| Photo & Sketch (if available) | Comp Sales (ordered by relevancy) |
|
||||||||||||||||||
|
||||||||||||||||||||
| Value History (*The County Treasurer 405-713-1300 posts & collects actual tax amounts. Contact information HERE) | |||||||||||||
|---|---|---|---|---|---|---|---|---|---|---|---|---|---|
| Year | Market Value | Taxable Mkt Value | Gross Assessed | Exemption | Net Assessed | Millage | Est. Tax | Tax Savings | |||||
|
2025 |
249,000 |
249,000 |
27,390 |
1,000 |
26,390 |
127.03 |
$3,352 |
$127 |
|||||
|
2024 |
241,500 |
100,112 |
11,012 |
2,000 |
9,012 |
127.00 |
$1,145 |
$2,229 |
|||||
|
2023 |
230,500 |
100,112 |
11,012 |
2,000 |
9,012 |
128.50 |
$1,158 |
$2,100 |
|||||
|
2022 |
208,000 |
100,112 |
11,012 |
2,000 |
9,012 |
127.22 |
$1,147 |
$1,764 |
|||||
|
2021 |
179,500 |
100,112 |
11,012 |
2,000 |
9,012 |
126.69 |
$1,142 |
$1,360 |
|||||
| Property Account Status/Adjustments/Exemptions | ||
|---|---|---|
| Account # | Exemption Description | Amount |
|
R156350280 |
3% Cap Homestead |
0 |
|
R156350280 |
Homestead |
1,000 |
| Property Deed Transaction History (Recorded in the County Clerk's Office) | ||||||||||
|---|---|---|---|---|---|---|---|---|---|---|
| Date | Type | Book | Page | Price | Grantor | Grantee | ||||
|
9/10/2024 |
|
Deeds |
$228,500 |
HALL TODD M |
GASIOROWSKI GABRIEL |
|||||
|
9/5/2024 |
|
Deeds |
$0 |
HALL WANDA |
HALL TODD M |
|||||
|
7/28/2014 |
|
Deeds |
$0 |
HALL TODD M HALL LEROY & WANDA |
HALL TODD M |
|||||
|
10/26/2001 |
|
Deeds |
$95,000 |
GOODWIN GARY L & TEFFANY R |
HALL TODD M HALL LEROY & WANDA |
|||||
|
12/7/1993 |
|
Historical |
$0 |
HURT JEFFREY S & STEPHANIE L |
GOODWIN GARY L & TEFFANY R |
|||||
| Last Mailed Notice of Value (N.O.V.) Information/History | ||||||||
|---|---|---|---|---|---|---|---|---|
| Year | Date | Market Value | Taxable Market Value | Gross Assessed | Exemption | Net Assessed | ||
|
2026 |
02/06/2026 |
249,500 |
249,500 |
27,445 |
1,000 |
26,445 |
||
|
2025 |
01/31/2025 |
249,000 |
249,000 |
27,390 |
0 |
27,390 |
||
|
2024 |
01/22/2024 |
241,500 |
100,112 |
11,012 |
2,000 |
9,012 |
||
|
2023 |
01/23/2023 |
230,500 |
100,112 |
11,012 |
2,000 |
9,012 |
||
|
2022 |
02/22/2022 |
208,000 |
100,112 |
11,012 |
2,000 |
9,012 |
||
| Property Building Permit History | ||||||
|---|---|---|---|---|---|---|
| Issued | Permit # | Provided by | Bldg # | Description | Est Construction Cost | Status |
|
5/26/1994 |
10251992 |
MIDWEST CITY |
1 |
Garage |
5,000 |
Inactive |
| Click button on building number to access detailed information: | ||||||
|---|---|---|---|---|---|---|
| Bldg # | Vacant/Improved Land | Bldg Description | Year Built | SqFt | # Stories | |
|
1 |
Improved |
Ranch 1 Story |
1989 |
1,607 |
1 Stories |
|