|
|
|
| Larry Stein Oklahoma County Assessor (405) 713-1200 - Public Access System |
|
|
|
|
|
|
| Real Property Display - Screen Produced 3/21/2026 5:35:49 AM | ||||
|---|---|---|---|---|
| Account: R144086191 | Type: Residential | Location: |
12141 SE 42ND ST |
|
| Building Name/Occupant: |
|
OKLAHOMA CITY |
||
| Owner Name 1: | ANGLIN RALPH A & CATHY L |
Parcel PIN#: |
1263-14-408-6191 |
|
| Owner Name 2: | 1/4 section #: |
1263 |
||
| Owner Name 3: | Parent Acct: |
|
||
| Billing Address: | 12129 SE 42ND ST | Tax District: |
|
|
| City, State, Zip | CHOCTAW, OK 73020-6111 | School System: |
Mid-Del #52 |
|
|
Country: (If noted) |
Land Size: |
0.5600 Acres |
||
|
Land Value: 46,794 |
|
|||
|
Sect 16-T11N-R1W Qtr SW |
UNPLTD PT SEC 16 11N 1W
Block
000
Lot
000
|
|||
| Full Legal Description: UNPLTD PT SEC 16 11N 1W 000 000 PT OF SW4 SEC 16 11N 1W BEG 225.39FT W SE/C N 1/2 NE4 SW4 SW4 TH W105.85FT N232.49FT E105.85FT S232.49FT TO BEG OR PT OF TR 19 CONT .56ACRS MORE OR LESS SUBJ TO EASEMENTS OF RECORD |
| Photo & Sketch (if available) | Comp Sales (ordered by relevancy) |
|
||||||||||||||||||
|
||||||||||||||||||||
| Value History (*The County Treasurer 405-713-1300 posts & collects actual tax amounts. Contact information HERE) | |||||||||||||
|---|---|---|---|---|---|---|---|---|---|---|---|---|---|
| Year | Market Value | Taxable Mkt Value | Gross Assessed | Exemption | Net Assessed | Millage | Est. Tax | Tax Savings | |||||
|
2025 |
120,500 |
108,481 |
11,932 |
0 |
11,932 |
126.46 |
$1,509 |
$167 |
|||||
|
2024 |
112,000 |
103,316 |
11,364 |
0 |
11,364 |
128.51 |
$1,460 |
$123 |
|||||
|
2023 |
111,000 |
98,397 |
10,823 |
0 |
10,823 |
122.94 |
$1,331 |
$170 |
|||||
|
2022 |
98,500 |
93,712 |
10,307 |
0 |
10,307 |
122.11 |
$1,259 |
$64 |
|||||
|
2021 |
90,500 |
89,250 |
9,817 |
0 |
9,817 |
124.74 |
$1,225 |
$17 |
|||||
| Property Account Status/Adjustments/Exemptions | ||
|---|---|---|
| Account # | Exemption Description | Amount |
|
R144086191 |
5% Capped Account |
0 |
| Property Deed Transaction History (Recorded in the County Clerk's Office) | |||||||
|---|---|---|---|---|---|---|---|
| Date | Type | Book | Page | Price | Grantor | Grantee | |
|
5/12/2016 |
|
Deeds |
$12,000 |
WALLIS JASON M & TINA M |
ANGLIN RALPH A & CATHY L |
||
|
2/28/2014 |
|
Deeds |
$25,000 |
WALLIS DAVID L WALLIS JODY L |
WALLIS JASON M & TINA M |
||
|
11/8/1993 |
|
Historical |
$0 |
WALLIS DAVID L |
WALLIS DAVID L |
||
|
11/21/1991 |
|
Historical |
$0 |
WALLIS EDWARD L & SHELIA |
WALLIS DAVID L |
||
|
5/1/1985 |
|
Historical |
$0 |
|
WALLIS EDWARD L & SHELIA |
||
| Last Mailed Notice of Value (N.O.V.) Information/History | ||||||||
|---|---|---|---|---|---|---|---|---|
| Year | Date | Market Value | Taxable Market Value | Gross Assessed | Exemption | Net Assessed | ||
|
2026 |
02/06/2026 |
120,000 |
113,905 |
12,528 |
0 |
12,528 |
||
|
2025 |
01/31/2025 |
120,500 |
108,481 |
11,932 |
0 |
11,932 |
||
|
2024 |
01/22/2024 |
112,000 |
103,316 |
11,364 |
0 |
11,364 |
||
|
2023 |
01/23/2023 |
111,000 |
98,397 |
10,823 |
0 |
10,823 |
||
|
2022 |
02/22/2022 |
98,500 |
93,712 |
10,307 |
0 |
10,307 |
||
| Property Building Permit History | |||||||||||
|---|---|---|---|---|---|---|---|---|---|---|---|
| Issued | Permit # | Provided by | Bldg # | Description | Est Construction Cost | Status | |||||
| No Building Permit records returned. | |||||||||||
| Click button on building number to access detailed information: | ||||||
|---|---|---|---|---|---|---|
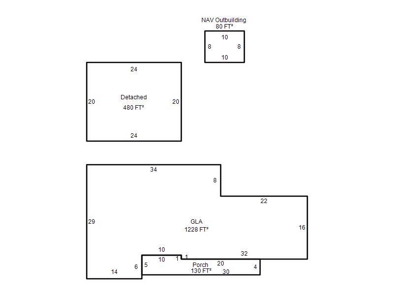
| Bldg # | Vacant/Improved Land | Bldg Description | Year Built | SqFt | # Stories | |
|
1 |
Improved |
Ranch 1 Story |
1955 |
1,228 |
1 Stories |
|