|
|
|
| Larry Stein Oklahoma County Assessor (405) 713-1200 - Public Access System |
|
|
|
|
|
|
| Real Property Display - Screen Produced 3/18/2026 6:19:34 PM | ||||
|---|---|---|---|---|
| Account: R194890423 | Type: Residential | Location: |
845 N HIWASSEE RD |
|
| Building Name/Occupant: |
|
CHOCTAW |
||
| Owner Name 1: | BOURISAW GARY & KATIE TRS |
Parcel PIN#: |
2329-19-489-0423 |
|
| Owner Name 2: | BOURISAW GARY & KATIE TRUST | 1/4 section #: |
2329 |
|
| Owner Name 3: | Parent Acct: |
2329-19-489-0412 |
||
| Billing Address: | 845 N HIWASSEE RD | Tax District: |
|
|
| City, State, Zip | CHOCTAW, OK 73020 | School System: |
Choctaw #4 |
|
|
Country: (If noted) |
Land Size: |
2.5000 Acres |
||
|
Land Value: 24,665 |
|
|||
|
Sect 33-T12N-R1W Qtr NE |
UNPLTD PT SEC 33 12N 1W
Block
000
Lot
000
|
|||
| Full Legal Description: UNPLTD PT NE4 SEC 33 12N 1W BEG 720FT S OF NE/C NE4 TH S149.90FT W729FT N149.90FT E729FT TO BEG AKA TR 4-A CONT 2.5 ACRS MORE OR LESS SUBJ TO ESMTS OF RECORD |
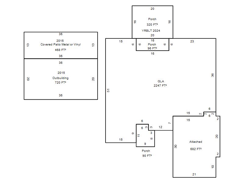
| Photo & Sketch (if available) | Comp Sales (ordered by relevancy) |
|
||||||||||||||||||
|
||||||||||||||||||||
| Value History (*The County Treasurer 405-713-1300 posts & collects actual tax amounts. Contact information HERE) | |||||||||||||
|---|---|---|---|---|---|---|---|---|---|---|---|---|---|
| Year | Market Value | Taxable Mkt Value | Gross Assessed | Exemption | Net Assessed | Millage | Est. Tax | Tax Savings | |||||
|
2025 |
440,000 |
317,639 |
34,939 |
1,000 |
33,939 |
117.21 |
$3,978 |
$1,695 |
|||||
|
2024 |
431,000 |
308,388 |
33,922 |
1,000 |
32,922 |
116.35 |
$3,831 |
$1,686 |
|||||
|
2023 |
382,500 |
299,406 |
32,934 |
1,000 |
31,934 |
118.06 |
$3,770 |
$1,197 |
|||||
|
2022 |
348,500 |
290,686 |
31,975 |
1,000 |
30,975 |
116.14 |
$3,597 |
$855 |
|||||
|
2021 |
302,000 |
282,220 |
31,044 |
1,000 |
30,044 |
116.17 |
$3,490 |
$369 |
|||||
| Property Account Status/Adjustments/Exemptions | ||
|---|---|---|
| Account # | Exemption Description | Amount |
|
R194890423 |
Homestead |
1,000 |
|
R194890423 |
3% Cap Homestead |
0 |
| Property Deed Transaction History (Recorded in the County Clerk's Office) | |||||||
|---|---|---|---|---|---|---|---|
| Date | Type | Book | Page | Price | Grantor | Grantee | |
|
1/27/2022 |
|
Deeds |
$0 |
BOURISAW GARY & KATIE |
BOURISAW GARY & KATIE TRS |
||
|
8/29/2006 |
|
Deeds |
$0 |
MIKE CHILDERS HOMES INC |
MIKE CHILDERS HOMES INC |
||
|
8/29/2006 |
|
Deeds |
$37,000 |
MIKE CHILDERS HOMES INC |
BOURISAW GARY & KATIE |
||
|
4/6/2004 |
|
Deeds |
$0 |
MIKE CHILDERS HOMES INC |
MIKE CHILDERS HOMES INC |
||
| Last Mailed Notice of Value (N.O.V.) Information/History | ||||||||
|---|---|---|---|---|---|---|---|---|
| Year | Date | Market Value | Taxable Market Value | Gross Assessed | Exemption | Net Assessed | ||
|
2025 |
01/31/2025 |
440,000 |
317,639 |
34,939 |
1,000 |
33,939 |
||
|
2024 |
01/22/2024 |
431,000 |
308,388 |
33,922 |
1,000 |
32,922 |
||
|
2023 |
01/23/2023 |
382,500 |
299,406 |
32,934 |
1,000 |
31,934 |
||
|
2022 |
02/22/2022 |
348,500 |
290,686 |
31,975 |
1,000 |
30,975 |
||
|
2022 |
04/05/2022 |
348,500 |
290,686 |
31,975 |
1,000 |
30,975 |
||
| Property Building Permit History | ||||||
|---|---|---|---|---|---|---|
| Issued | Permit # | Provided by | Bldg # | Description | Est Construction Cost | Status |
|
7/16/2009 |
10383999 |
CHOCTAW |
1 |
Main Dwellin |
245,000 |
Inactive |
| Click button on building number to access detailed information: | ||||||
|---|---|---|---|---|---|---|
| Bldg # | Vacant/Improved Land | Bldg Description | Year Built | SqFt | # Stories | |
|
1 |
Improved |
Ranch 1 Story |
2009 |
2,247 |
1 Stories |
|