|
|
|
| Larry Stein Oklahoma County Assessor (405) 713-1200 - Public Access System |
|
|
|
|
|
|
| Real Property Display - Screen Produced 3/18/2026 6:21:56 PM | ||||
|---|---|---|---|---|
| Account: R194893630 | Type: Residential | Location: |
827 JOLLIE DR |
|
| Building Name/Occupant: |
|
CHOCTAW |
||
| Owner Name 1: | DILLEY ADAM M & CYNTHIA M |
Parcel PIN#: |
2332-19-489-3630 |
|
| Owner Name 2: | 1/4 section #: |
2332 |
||
| Owner Name 3: | Parent Acct: |
|
||
| Billing Address: | 737 JOLLIE DR | Tax District: |
|
|
| City, State, Zip | CHOCTAW, OK 73020-7637 | School System: |
Choctaw #4 |
|
|
Country: (If noted) |
Land Size: |
3.6400 Acres |
||
|
Land Value: 42,827 |
|
|||
|
Sect 33-T12N-R1W Qtr NW |
UNPLTD PT SEC 33 12N 1W
Block
000
Lot
000
|
|||
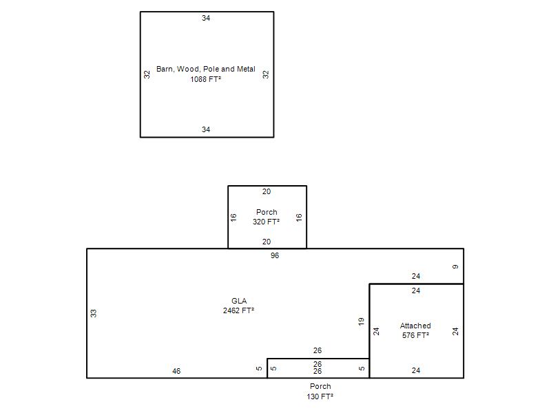
| Full Legal Description: UNPLTD PT SEC 33 12N 1W 000 000 PT NW4 SEC 33 12N 1W BEG 1320FT S & 708.06FT E OF NW/C OF NW4 E600.76FT S264FT W601.53FT N264FT TO BEG CONT 3.64ACRS MORE OR LESS |
| Photo & Sketch (if available) | Comp Sales (ordered by relevancy) |
|
||||||||||||||||||
|
||||||||||||||||||||
| Value History (*The County Treasurer 405-713-1300 posts & collects actual tax amounts. Contact information HERE) | |||||||||||||
|---|---|---|---|---|---|---|---|---|---|---|---|---|---|
| Year | Market Value | Taxable Mkt Value | Gross Assessed | Exemption | Net Assessed | Millage | Est. Tax | Tax Savings | |||||
|
2025 |
366,000 |
256,063 |
28,166 |
1,000 |
27,166 |
117.21 |
$3,184 |
$1,535 |
|||||
|
2024 |
357,500 |
248,605 |
27,346 |
1,000 |
26,346 |
116.35 |
$3,065 |
$1,510 |
|||||
|
2023 |
332,000 |
241,365 |
26,549 |
1,000 |
25,549 |
118.06 |
$3,016 |
$1,295 |
|||||
|
2022 |
295,000 |
234,335 |
25,776 |
1,000 |
24,776 |
116.14 |
$2,878 |
$891 |
|||||
|
2021 |
248,500 |
227,510 |
25,025 |
1,000 |
24,025 |
116.17 |
$2,791 |
$384 |
|||||
| Property Account Status/Adjustments/Exemptions | ||
|---|---|---|
| Account # | Exemption Description | Amount |
|
R194893630 |
3% Cap Homestead |
0 |
|
R194893630 |
Homestead |
1,000 |
| Property Deed Transaction History (Recorded in the County Clerk's Office) | |||||||
|---|---|---|---|---|---|---|---|
| Date | Type | Book | Page | Price | Grantor | Grantee | |
|
3/9/2001 |
|
Deeds |
$117,000 |
LEE DEBORAH |
DILLEY ADAM M & CYNTHIA M |
||
|
2/14/1997 |
|
Historical |
$0 |
FIELD DEBORAH D |
LEE DEBORAH |
||
|
4/1/1991 |
|
Historical |
$0 |
SECURITY FIRST FEDERAL SAVINGS |
FIELD DEBORAH D |
||
|
8/24/1990 |
|
Historical |
$0 |
DUTCHER DENNIS & DEBBIE |
SECURITY FIRST FEDERAL SAVINGS |
||
|
2/1/1984 |
|
Historical |
$0 |
|
DUTCHER DENNIS & DEBBIE |
||
| Last Mailed Notice of Value (N.O.V.) Information/History | ||||||||
|---|---|---|---|---|---|---|---|---|
| Year | Date | Market Value | Taxable Market Value | Gross Assessed | Exemption | Net Assessed | ||
|
2026 |
02/06/2026 |
353,500 |
263,744 |
29,010 |
1,000 |
28,010 |
||
|
2025 |
01/31/2025 |
366,000 |
256,063 |
28,166 |
1,000 |
27,166 |
||
|
2024 |
01/22/2024 |
357,500 |
248,605 |
27,346 |
1,000 |
26,346 |
||
|
2023 |
01/23/2023 |
332,000 |
241,365 |
26,549 |
1,000 |
25,549 |
||
|
2022 |
02/22/2022 |
295,000 |
234,335 |
25,775 |
1,000 |
24,775 |
||
| Property Building Permit History | |||||||||||
|---|---|---|---|---|---|---|---|---|---|---|---|
| Issued | Permit # | Provided by | Bldg # | Description | Est Construction Cost | Status | |||||
| No Building Permit records returned. | |||||||||||
| Click button on building number to access detailed information: | ||||||
|---|---|---|---|---|---|---|
| Bldg # | Vacant/Improved Land | Bldg Description | Year Built | SqFt | # Stories | |
|
1 |
Improved |
Ranch 1 Story |
1979 |
2,462 |
1 Stories |
|