|
|
|
| Larry Stein Oklahoma County Assessor (405) 713-1200 - Public Access System |
|
|
|
|
|
|
| Real Property Display - Screen Produced 3/18/2026 11:02:22 PM | ||||
|---|---|---|---|---|
| Account: R197881180 | Type: Residential | Location: |
13729 NE 9TH ST |
|
| Building Name/Occupant: |
|
CHOCTAW |
||
| Owner Name 1: | CARTER SANDRA S TRS |
Parcel PIN#: |
2333-19-788-1180 |
|
| Owner Name 2: | CARTER SANDRA S REV TRUST | 1/4 section #: |
2333 |
|
| Owner Name 3: | Parent Acct: |
|
||
| Billing Address: | 13729 NE 9TH ST | Tax District: |
|
|
| City, State, Zip | CHOCTAW, OK 73020-7626 | School System: |
Choctaw #4 |
|
|
Country: (If noted) |
Land Size: |
1.1478 Acres |
||
|
Land Value: 68,000 |
|
|||
|
Sect 34-T12N-R1W Qtr NE |
GILLESPIE ESTATES
Block
001
Lot
000
|
|||
| Full Legal Description: GILLESPIE ESTATES 001 000 LOTS 19 & 20 |
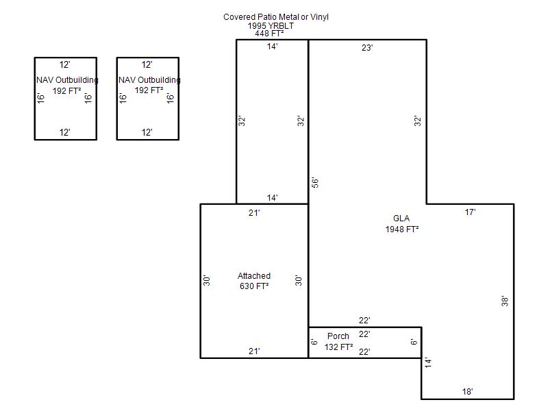
| Photo & Sketch (if available) | Comp Sales (ordered by relevancy) |
|
||||||||||||||||||
|
||||||||||||||||||||
| Value History (*The County Treasurer 405-713-1300 posts & collects actual tax amounts. Contact information HERE) | |||||||||||||
|---|---|---|---|---|---|---|---|---|---|---|---|---|---|
| Year | Market Value | Taxable Mkt Value | Gross Assessed | Exemption | Net Assessed | Millage | Est. Tax | Tax Savings | |||||
|
2025 |
229,500 |
139,107 |
15,301 |
1,000 |
14,301 |
117.21 |
$1,676 |
$1,283 |
|||||
|
2024 |
222,000 |
139,107 |
15,301 |
1,000 |
14,301 |
116.35 |
$1,664 |
$1,177 |
|||||
|
2023 |
207,000 |
139,107 |
15,301 |
1,000 |
14,301 |
118.06 |
$1,688 |
$1,000 |
|||||
|
2022 |
193,500 |
139,107 |
15,301 |
1,000 |
14,301 |
116.14 |
$1,661 |
$811 |
|||||
|
2021 |
167,500 |
139,107 |
15,301 |
1,000 |
14,301 |
116.17 |
$1,661 |
$479 |
|||||
| Property Account Status/Adjustments/Exemptions | ||
|---|---|---|
| Account # | Exemption Description | Amount |
|
R197881180 |
3% Cap Homestead |
0 |
|
R197881180 |
Freeze Senior Valuation |
0 |
|
R197881180 |
Homestead |
1,000 |
| Property Deed Transaction History (Recorded in the County Clerk's Office) | ||||||||||
|---|---|---|---|---|---|---|---|---|---|---|
| Date | Type | Book | Page | Price | Grantor | Grantee | ||||
|
3/22/2013 |
|
Deeds |
$139,500 |
MCNEW JAMES A |
CARTER SANDRA S TRS |
|||||
|
8/20/2010 |
|
Deeds |
$0 |
MCNEW JAMES A & KIMBERLY F |
MCNEW JAMES A |
|||||
|
9/18/1992 |
|
Historical |
$74,800 |
SECRETARY OF VETERANS AFFAIRS |
MCNEW JAMES A & KIMBERLY F |
|||||
|
5/26/1992 |
|
Historical |
$0 |
WEAVER MICHAEL L & SOFIA A |
SECRETARY OF VETERANS AFFAIRS |
|||||
|
2/23/1988 |
|
Historical |
$0 |
ALLEN BOBBY L & NANCY E |
WEAVER MICHAEL L & SOFIA A |
|||||
| Last Mailed Notice of Value (N.O.V.) Information/History | ||||||||
|---|---|---|---|---|---|---|---|---|
| Year | Date | Market Value | Taxable Market Value | Gross Assessed | Exemption | Net Assessed | ||
|
2026 |
02/06/2026 |
231,500 |
139,107 |
15,301 |
1,000 |
14,301 |
||
|
2025 |
01/31/2025 |
229,500 |
139,107 |
15,301 |
1,000 |
14,301 |
||
|
2024 |
01/22/2024 |
222,000 |
139,107 |
15,301 |
1,000 |
14,301 |
||
|
2023 |
01/23/2023 |
207,000 |
139,107 |
15,301 |
1,000 |
14,301 |
||
|
2022 |
02/22/2022 |
193,500 |
139,107 |
15,301 |
1,000 |
14,301 |
||
| Property Building Permit History | |||||||||||
|---|---|---|---|---|---|---|---|---|---|---|---|
| Issued | Permit # | Provided by | Bldg # | Description | Est Construction Cost | Status | |||||
| No Building Permit records returned. | |||||||||||
| Click button on building number to access detailed information: | ||||||
|---|---|---|---|---|---|---|
| Bldg # | Vacant/Improved Land | Bldg Description | Year Built | SqFt | # Stories | |
|
1 |
Improved |
Ranch 1 Story |
1966 |
1,948 |
1 Stories |
|