|
|
|
| Larry Stein Oklahoma County Assessor (405) 713-1200 - Public Access System |
|
|
|
|
|
|
| Real Property Display - Screen Produced 3/18/2026 10:58:52 PM | ||||
|---|---|---|---|---|
| Account: R197881200 | Type: Residential | Location: |
13725 NE 9TH ST |
|
| Building Name/Occupant: |
|
CHOCTAW |
||
| Owner Name 1: | SMITH JAMES TRENT & KARI L |
Parcel PIN#: |
2333-19-788-1200 |
|
| Owner Name 2: | 1/4 section #: |
2333 |
||
| Owner Name 3: | Parent Acct: |
|
||
| Billing Address: | 5700 HOLZMAN AVE | Tax District: |
|
|
| City, State, Zip | CHOCTAW, OK 73020 | School System: |
Choctaw #4 |
|
|
Country: (If noted) |
Land Size: |
0.5739 Acres |
||
|
Land Value: 40,000 |
|
|||
|
Sect 34-T12N-R1W Qtr NE |
GILLESPIE ESTATES
Block
001
Lot
021
|
|||
| Full Legal Description: GILLESPIE ESTATES 001 021 |
| Photo & Sketch (if available) | Comp Sales (ordered by relevancy) |
|
||||||||||||||||||
|
||||||||||||||||||||
| Value History (*The County Treasurer 405-713-1300 posts & collects actual tax amounts. Contact information HERE) | |||||||||||||
|---|---|---|---|---|---|---|---|---|---|---|---|---|---|
| Year | Market Value | Taxable Mkt Value | Gross Assessed | Exemption | Net Assessed | Millage | Est. Tax | Tax Savings | |||||
|
2025 |
176,500 |
86,886 |
9,557 |
0 |
9,557 |
117.21 |
$1,120 |
$1,155 |
|||||
|
2024 |
171,000 |
82,749 |
9,101 |
0 |
9,101 |
116.35 |
$1,059 |
$1,129 |
|||||
|
2023 |
156,500 |
78,809 |
8,668 |
0 |
8,668 |
118.06 |
$1,023 |
$1,009 |
|||||
|
2022 |
75,057 |
75,057 |
8,256 |
0 |
8,256 |
116.14 |
$959 |
$0 |
|||||
|
2021 |
75,057 |
75,057 |
8,256 |
0 |
8,256 |
116.17 |
$959 |
$0 |
|||||
| Property Account Status/Adjustments/Exemptions | ||
|---|---|---|
| Account # | Exemption Description | Amount |
|
R197881200 |
5% Capped Account |
0 |
| Property Deed Transaction History (Recorded in the County Clerk's Office) | ||||||||||
|---|---|---|---|---|---|---|---|---|---|---|
| Date | Type | Book | Page | Price | Grantor | Grantee | ||||
|
3/23/2015 |
|
Deeds |
$72,500 |
CRIBBS JACK KEITH |
SMITH JAMES TRENT & KARI L |
|||||
|
2/1/2010 |
|
Deeds |
$0 |
CRIBBS JACK KEITH & DONNA L |
CRIBBS JACK KEITH |
|||||
|
10/9/2008 |
|
Deeds |
$0 |
CRIBBS JACK KETIH |
CRIBBS JACK KEITH & DONNA L |
|||||
|
10/6/2008 |
|
Hmstd Off & |
$0 |
CRIBBS KENNETH JACK & HATTIE L REV TRS |
CRIBBS JACK KETIH |
|||||
|
9/30/2004 |
|
Hmstd Off & |
$0 |
CRIBBS KENNETH J & HATTIE L |
CRIBBS KENNETH JACK & HATTIE L REV TRS |
|||||
| Last Mailed Notice of Value (N.O.V.) Information/History | ||||||||
|---|---|---|---|---|---|---|---|---|
| Year | Date | Market Value | Taxable Market Value | Gross Assessed | Exemption | Net Assessed | ||
|
2026 |
02/06/2026 |
174,500 |
91,230 |
10,034 |
0 |
10,034 |
||
|
2025 |
01/31/2025 |
176,500 |
86,886 |
9,557 |
0 |
9,557 |
||
|
2024 |
01/22/2024 |
171,000 |
82,749 |
9,101 |
0 |
9,101 |
||
|
2023 |
01/23/2023 |
156,500 |
78,809 |
8,668 |
0 |
8,668 |
||
|
2015 |
03/05/2015 |
100,964 |
82,898 |
9,118 |
1,000 |
8,118 |
||
| Property Building Permit History | |||||||||||
|---|---|---|---|---|---|---|---|---|---|---|---|
| Issued | Permit # | Provided by | Bldg # | Description | Est Construction Cost | Status | |||||
| No Building Permit records returned. | |||||||||||
| Click button on building number to access detailed information: | ||||||
|---|---|---|---|---|---|---|
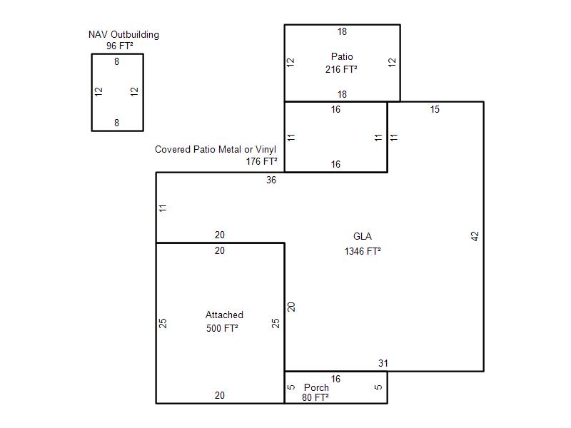
| Bldg # | Vacant/Improved Land | Bldg Description | Year Built | SqFt | # Stories | |
|
1 |
Improved |
Ranch 1 Story |
1965 |
1,346 |
1 Stories |
|