|
|
|
| Larry Stein Oklahoma County Assessor (405) 713-1200 - Public Access System |
|
|
|
|
|
|
| Real Property Display - Screen Produced 3/18/2026 10:58:51 PM | ||||
|---|---|---|---|---|
| Account: R197881230 | Type: Residential | Location: |
13713 NE 9TH ST |
|
| Building Name/Occupant: |
|
CHOCTAW |
||
| Owner Name 1: | TYRA FAMILY INVESTMENTS LLC |
Parcel PIN#: |
2333-19-788-1230 |
|
| Owner Name 2: | 1/4 section #: |
2333 |
||
| Owner Name 3: | Parent Acct: |
|
||
| Billing Address: | 11101 SE 29TH ST | Tax District: |
|
|
| City, State, Zip | MIDWEST CITY, OK 73130 | School System: |
Choctaw #4 |
|
|
Country: (If noted) |
UNITED STATES |
Land Size: |
0.5739 Acres |
|
|
Land Value: 40,000 |
|
|||
|
Sect 34-T12N-R1W Qtr NE |
GILLESPIE ESTATES
Block
001
Lot
024
|
|||
| Full Legal Description: GILLESPIE ESTATES 001 024 |
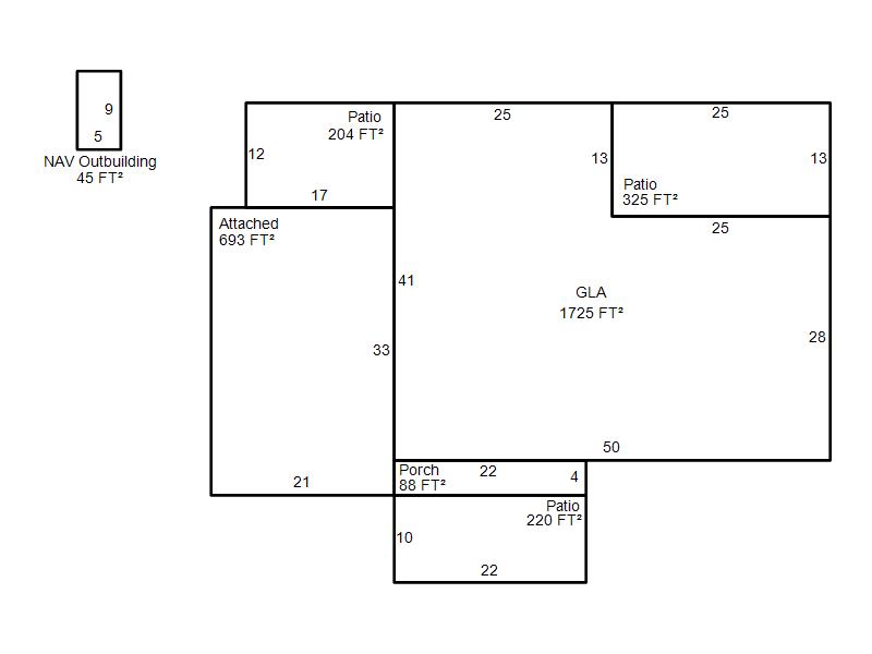
| Photo & Sketch (if available) | Comp Sales (ordered by relevancy) |
|
||||||||||||||||||
|
||||||||||||||||||||
| Value History (*The County Treasurer 405-713-1300 posts & collects actual tax amounts. Contact information HERE) | |||||||||||||
|---|---|---|---|---|---|---|---|---|---|---|---|---|---|
| Year | Market Value | Taxable Mkt Value | Gross Assessed | Exemption | Net Assessed | Millage | Est. Tax | Tax Savings | |||||
|
2025 |
208,000 |
172,933 |
19,021 |
0 |
19,021 |
117.21 |
$2,230 |
$452 |
|||||
|
2024 |
203,500 |
164,699 |
18,116 |
0 |
18,116 |
116.35 |
$2,108 |
$497 |
|||||
|
2023 |
186,500 |
156,857 |
17,253 |
0 |
17,253 |
118.06 |
$2,037 |
$385 |
|||||
|
2022 |
175,000 |
149,388 |
16,432 |
0 |
16,432 |
116.14 |
$1,908 |
$327 |
|||||
|
2021 |
149,500 |
142,275 |
15,650 |
0 |
15,650 |
116.17 |
$1,818 |
$92 |
|||||
| Property Account Status/Adjustments/Exemptions | ||
|---|---|---|
| Account # | Exemption Description | Amount |
|
R197881230 |
5% Capped Account |
0 |
| Property Deed Transaction History (Recorded in the County Clerk's Office) | ||||||||||
|---|---|---|---|---|---|---|---|---|---|---|
| Date | Type | Book | Page | Price | Grantor | Grantee | ||||
|
7/24/2017 |
|
Deeds |
$94,000 |
US BANK NA |
TYRA FAMILY INVESTMENTS LLC |
|||||
|
4/24/2017 |
|
Hmstd Off & |
$0 |
BROCKETT STEPHEN L & LISA R |
US BANK NA |
|||||
|
8/31/2005 |
|
Deeds |
$50,000 |
BROWN DARRYL H & RITA A TRS BROWN FAMILY TRUST |
BROCKETT STEPHEN L & LISA R |
|||||
|
1/21/2002 |
|
Deeds |
$0 |
BROWN DARRYL H & RITA |
BROWN DARRYL H & RITA A TRS BROWN FAMILY TRUST |
|||||
|
9/23/1999 |
|
Other |
$0 |
SECRETARY OF VETERANS AFFAIRS C/O LOAN GUARANTY DIVISION |
BROWN DARRYL H & RITA |
|||||
| Last Mailed Notice of Value (N.O.V.) Information/History | ||||||||
|---|---|---|---|---|---|---|---|---|
| Year | Date | Market Value | Taxable Market Value | Gross Assessed | Exemption | Net Assessed | ||
|
2026 |
02/06/2026 |
205,500 |
181,579 |
19,973 |
0 |
19,973 |
||
|
2025 |
01/31/2025 |
208,000 |
172,933 |
19,021 |
0 |
19,021 |
||
|
2024 |
01/22/2024 |
203,500 |
164,699 |
18,116 |
0 |
18,116 |
||
|
2023 |
01/23/2023 |
186,500 |
156,857 |
17,253 |
0 |
17,253 |
||
|
2022 |
02/22/2022 |
175,000 |
149,388 |
16,432 |
0 |
16,432 |
||
| Property Building Permit History | |||||||||||
|---|---|---|---|---|---|---|---|---|---|---|---|
| Issued | Permit # | Provided by | Bldg # | Description | Est Construction Cost | Status | |||||
| No Building Permit records returned. | |||||||||||
| Click button on building number to access detailed information: | ||||||
|---|---|---|---|---|---|---|
| Bldg # | Vacant/Improved Land | Bldg Description | Year Built | SqFt | # Stories | |
|
1 |
Improved |
Ranch 1 Story |
1967 |
1,725 |
1 Stories |
|