|
|
|
| Larry Stein Oklahoma County Assessor (405) 713-1200 - Public Access System |
|
|
|
|
|
|
| Real Property Display - Screen Produced 3/18/2026 11:02:22 PM | ||||
|---|---|---|---|---|
| Account: R197881250 | Type: Residential | Location: |
13709 NE 9TH ST |
|
| Building Name/Occupant: |
|
CHOCTAW |
||
| Owner Name 1: | EATON REBECCA JANE TRS |
Parcel PIN#: |
2333-19-788-1250 |
|
| Owner Name 2: | EATON REBECCA JANE REV TRUST | 1/4 section #: |
2333 |
|
| Owner Name 3: | Parent Acct: |
|
||
| Billing Address: | 13709 NE 9TH ST | Tax District: |
|
|
| City, State, Zip | CHOCTAW, OK 73020-7626 | School System: |
Choctaw #4 |
|
|
Country: (If noted) |
Land Size: |
0.5739 Acres |
||
|
Land Value: 40,000 |
|
|||
|
Sect 34-T12N-R1W Qtr NE |
GILLESPIE ESTATES
Block
001
Lot
026
|
|||
| Full Legal Description: GILLESPIE ESTATES 001 026 |
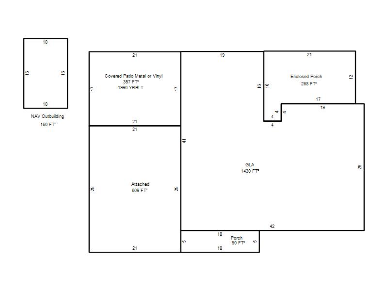
| Photo & Sketch (if available) | Comp Sales (ordered by relevancy) |
|
||||||||||||||||||
|
||||||||||||||||||||
| Value History (*The County Treasurer 405-713-1300 posts & collects actual tax amounts. Contact information HERE) | |||||||||||||
|---|---|---|---|---|---|---|---|---|---|---|---|---|---|
| Year | Market Value | Taxable Mkt Value | Gross Assessed | Exemption | Net Assessed | Millage | Est. Tax | Tax Savings | |||||
|
2025 |
224,000 |
158,704 |
17,457 |
1,000 |
16,457 |
117.21 |
$1,929 |
$959 |
|||||
|
2024 |
216,500 |
158,704 |
17,457 |
1,000 |
16,457 |
116.35 |
$1,915 |
$856 |
|||||
|
2023 |
197,500 |
154,082 |
16,948 |
1,000 |
15,948 |
118.06 |
$1,883 |
$682 |
|||||
|
2022 |
183,000 |
149,595 |
16,455 |
1,000 |
15,455 |
116.14 |
$1,795 |
$543 |
|||||
|
2021 |
157,000 |
145,238 |
15,975 |
1,000 |
14,975 |
116.17 |
$1,740 |
$266 |
|||||
| Property Account Status/Adjustments/Exemptions | ||
|---|---|---|
| Account # | Exemption Description | Amount |
|
R197881250 |
Freeze Senior Valuation |
0 |
|
R197881250 |
3% Cap Homestead |
0 |
|
R197881250 |
Homestead |
1,000 |
| Property Deed Transaction History (Recorded in the County Clerk's Office) | ||||||||||
|---|---|---|---|---|---|---|---|---|---|---|
| Date | Type | Book | Page | Price | Grantor | Grantee | ||||
|
2/21/2024 |
|
Deeds |
$0 |
EATON DOUGLAS RAY |
EATON REBECCA JANE |
|||||
|
2/21/2024 |
|
Deeds |
$0 |
EATON REBECCA JANE |
EATON REBECCA JANE TRS |
|||||
|
6/24/2005 |
|
Deeds |
$112,500 |
POWELL SANDRA L |
EATON DOUGLAS RAY |
|||||
|
5/11/2004 |
|
Deeds |
$94,500 |
VANN PAMELA L |
POWELL SANDRA L |
|||||
|
6/13/2003 |
|
Deeds |
$0 |
VANN DAVID R & PAMELA L |
VANN PAMELA L |
|||||
| Last Mailed Notice of Value (N.O.V.) Information/History | ||||||||
|---|---|---|---|---|---|---|---|---|
| Year | Date | Market Value | Taxable Market Value | Gross Assessed | Exemption | Net Assessed | ||
|
2025 |
01/31/2025 |
224,000 |
158,704 |
17,457 |
1,000 |
16,457 |
||
|
2024 |
01/22/2024 |
216,500 |
158,704 |
17,457 |
1,000 |
16,457 |
||
|
2024 |
04/05/2024 |
216,500 |
158,704 |
17,457 |
1,000 |
16,457 |
||
|
2023 |
01/23/2023 |
197,500 |
154,082 |
16,948 |
1,000 |
15,948 |
||
|
2022 |
02/22/2022 |
183,000 |
149,595 |
16,454 |
1,000 |
15,454 |
||
| Property Building Permit History | |||||||||||
|---|---|---|---|---|---|---|---|---|---|---|---|
| Issued | Permit # | Provided by | Bldg # | Description | Est Construction Cost | Status | |||||
| No Building Permit records returned. | |||||||||||
| Click button on building number to access detailed information: | ||||||
|---|---|---|---|---|---|---|
| Bldg # | Vacant/Improved Land | Bldg Description | Year Built | SqFt | # Stories | |
|
1 |
Improved |
Ranch 1 Story |
1967 |
1,430 |
1 Stories |
|