|
|
|
| Larry Stein Oklahoma County Assessor (405) 713-1200 - Public Access System |
|
|
|
|
|
|
| Real Property Display - Screen Produced 3/18/2026 10:59:52 PM | ||||
|---|---|---|---|---|
| Account: R197881350 | Type: Residential | Location: |
13808 NE 10TH ST |
|
| Building Name/Occupant: |
|
CHOCTAW |
||
| Owner Name 1: | DANSBY LACEY DAWN |
Parcel PIN#: |
2333-19-788-1350 |
|
| Owner Name 2: | BRADLEY CHRISTOPHER L | 1/4 section #: |
2333 |
|
| Owner Name 3: | Parent Acct: |
|
||
| Billing Address: | 13808 NE 10TH ST | Tax District: |
|
|
| City, State, Zip | CHOCTAW, OK 73020-8117 | School System: |
Choctaw #4 |
|
|
Country: (If noted) |
Land Size: |
0.5739 Acres |
||
|
Land Value: 40,000 |
|
|||
|
Sect 34-T12N-R1W Qtr NE |
GILLESPIE ESTATES
Block
002
Lot
005
|
|||
| Full Legal Description: GILLESPIE ESTATES 002 005 |
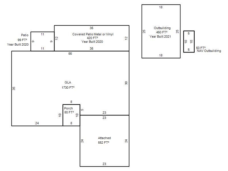
| Photo & Sketch (if available) | Comp Sales (ordered by relevancy) |
|
||||||||||||||||||
|
||||||||||||||||||||
| Value History (*The County Treasurer 405-713-1300 posts & collects actual tax amounts. Contact information HERE) | |||||||||||||
|---|---|---|---|---|---|---|---|---|---|---|---|---|---|
| Year | Market Value | Taxable Mkt Value | Gross Assessed | Exemption | Net Assessed | Millage | Est. Tax | Tax Savings | |||||
|
2025 |
249,500 |
186,835 |
20,551 |
1,000 |
19,551 |
117.21 |
$2,292 |
$925 |
|||||
|
2024 |
243,500 |
181,394 |
19,953 |
1,000 |
18,953 |
116.35 |
$2,205 |
$911 |
|||||
|
2023 |
221,000 |
176,111 |
19,372 |
1,000 |
18,372 |
118.06 |
$2,169 |
$701 |
|||||
|
2022 |
204,500 |
170,982 |
18,807 |
1,000 |
17,807 |
116.14 |
$2,068 |
$544 |
|||||
|
2021 |
164,500 |
151,925 |
16,711 |
1,000 |
15,711 |
116.17 |
$1,825 |
$277 |
|||||
| Property Account Status/Adjustments/Exemptions | ||
|---|---|---|
| Account # | Exemption Description | Amount |
|
R197881350 |
3% Cap Homestead |
0 |
|
R197881350 |
Homestead |
1,000 |
| Property Deed Transaction History (Recorded in the County Clerk's Office) | ||||||||||
|---|---|---|---|---|---|---|---|---|---|---|
| Date | Type | Book | Page | Price | Grantor | Grantee | ||||
|
9/21/2012 |
|
Deeds |
$140,000 |
WALKER JASON SCOTT |
DANSBY LACEY DAWN |
|||||
|
7/13/2007 |
|
Other |
$0 |
SECRETARY OF HOUSING & URBAN DEV |
WALKER JASON SCOTT |
|||||
|
3/6/2007 |
|
Deeds |
$0 |
FREEMAN FORREST N III & HEATHER |
SECRETARY OF HOUSING & URBAN DEV |
|||||
|
6/9/2006 |
|
Hmstd Off & |
$0 |
FREEMAN FORREST N III & HEATHER |
SECRETARY OF HOUSING & URBAN DEV |
|||||
|
6/5/2001 |
|
Deeds |
$116,000 |
BATCHELOR JEFFREY ALAN & CAROLYN MARIE |
FREEMAN FORREST N III & HEATHER |
|||||
| Last Mailed Notice of Value (N.O.V.) Information/History | ||||||||
|---|---|---|---|---|---|---|---|---|
| Year | Date | Market Value | Taxable Market Value | Gross Assessed | Exemption | Net Assessed | ||
|
2026 |
02/06/2026 |
245,000 |
192,440 |
21,167 |
1,000 |
20,167 |
||
|
2025 |
01/31/2025 |
249,500 |
186,835 |
20,551 |
1,000 |
19,551 |
||
|
2024 |
01/22/2024 |
243,500 |
181,394 |
19,953 |
1,000 |
18,953 |
||
|
2023 |
01/23/2023 |
221,000 |
176,111 |
19,372 |
1,000 |
18,372 |
||
|
2022 |
02/22/2022 |
204,500 |
170,982 |
18,807 |
1,000 |
17,807 |
||
| Property Building Permit History | |||||||||||
|---|---|---|---|---|---|---|---|---|---|---|---|
| Issued | Permit # | Provided by | Bldg # | Description | Est Construction Cost | Status | |||||
| No Building Permit records returned. | |||||||||||
| Click button on building number to access detailed information: | ||||||
|---|---|---|---|---|---|---|
| Bldg # | Vacant/Improved Land | Bldg Description | Year Built | SqFt | # Stories | |
|
1 |
Improved |
Ranch 1 Story |
1978 |
1,730 |
1 Stories |
|