|
|
|
| Larry Stein Oklahoma County Assessor (405) 713-1200 - Public Access System |
|
|
|
|
|
|
| Real Property Display - Screen Produced 3/18/2026 10:58:51 PM | ||||
|---|---|---|---|---|
| Account: R197881500 | Type: Residential | Location: |
13950 NE 9TH ST |
|
| Building Name/Occupant: |
|
CHOCTAW |
||
| Owner Name 1: | CUMMINGS RONALD & NANNETTE |
Parcel PIN#: |
2333-19-788-1500 |
|
| Owner Name 2: | 1/4 section #: |
2333 |
||
| Owner Name 3: | Parent Acct: |
|
||
| Billing Address: | 13950 NE 9TH ST | Tax District: |
|
|
| City, State, Zip | CHOCTAW, OK 73020 | School System: |
Choctaw #4 |
|
|
Country: (If noted) |
Land Size: |
0.4564 Acres |
||
|
Land Value: 31,806 |
|
|||
|
Sect 34-T12N-R1W Qtr NE |
GILLESPIE ESTATES
Block
003
Lot
006
|
|||
| Full Legal Description: GILLESPIE ESTATES 003 006 |
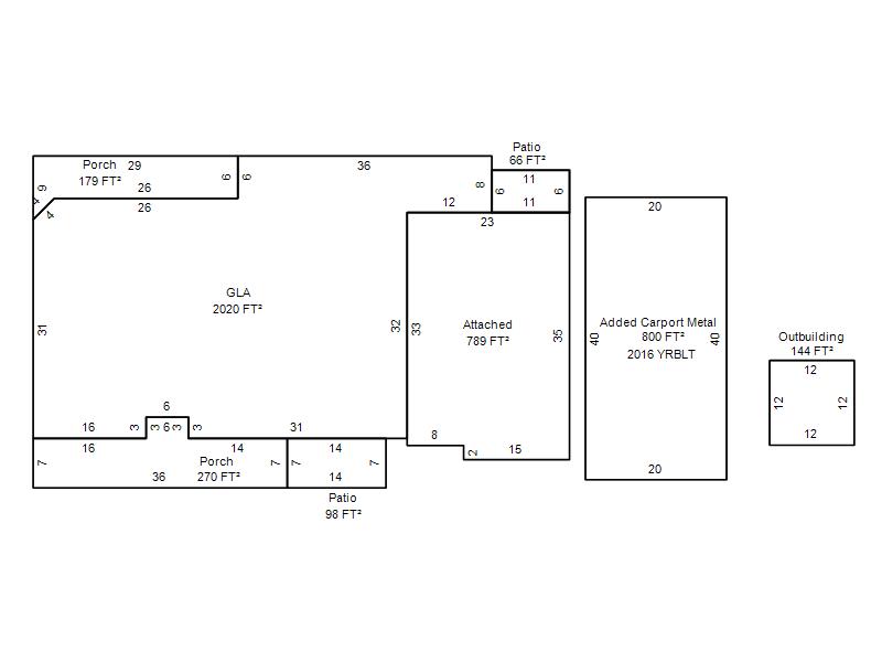
| Photo & Sketch (if available) | Comp Sales (ordered by relevancy) |
|
||||||||||||||||||
|
||||||||||||||||||||
| Value History (*The County Treasurer 405-713-1300 posts & collects actual tax amounts. Contact information HERE) | |||||||||||||
|---|---|---|---|---|---|---|---|---|---|---|---|---|---|
| Year | Market Value | Taxable Mkt Value | Gross Assessed | Exemption | Net Assessed | Millage | Est. Tax | Tax Savings | |||||
|
2025 |
355,500 |
324,450 |
35,689 |
1,000 |
34,689 |
117.21 |
$4,066 |
$518 |
|||||
|
2024 |
360,000 |
324,450 |
35,689 |
1,000 |
34,689 |
116.35 |
$4,036 |
$571 |
|||||
|
2023 |
315,000 |
315,000 |
34,650 |
1,000 |
33,650 |
118.06 |
$3,973 |
$118 |
|||||
|
2022 |
310,500 |
310,500 |
34,155 |
1,000 |
33,155 |
116.14 |
$3,851 |
$116 |
|||||
|
2021 |
248,500 |
225,055 |
24,756 |
1,000 |
23,756 |
116.17 |
$2,760 |
$416 |
|||||
| Property Account Status/Adjustments/Exemptions | ||
|---|---|---|
| Account # | Exemption Description | Amount |
|
R197881500 |
Freeze Senior Valuation |
0 |
|
R197881500 |
3% Cap Homestead |
0 |
|
R197881500 |
Homestead |
1,000 |
| Property Deed Transaction History (Recorded in the County Clerk's Office) | |||||||
|---|---|---|---|---|---|---|---|
| Date | Type | Book | Page | Price | Grantor | Grantee | |
|
11/30/2021 |
|
Deeds |
$315,000 |
CONCEICAO JOHN & ALICE |
CUMMINGS RONALD & NANNETTE |
||
|
7/30/2004 |
|
Deeds |
$5,000 |
JARO STEVE E & CAROLYN DARLENE |
CONCEICAO JOHN & ALICE |
||
|
6/1/1981 |
|
Historical |
$0 |
|
JARO STEVE E & CAROLYN DARLENE |
||
| Last Mailed Notice of Value (N.O.V.) Information/History | ||||||||
|---|---|---|---|---|---|---|---|---|
| Year | Date | Market Value | Taxable Market Value | Gross Assessed | Exemption | Net Assessed | ||
|
2024 |
01/22/2024 |
360,000 |
324,450 |
35,689 |
1,000 |
34,689 |
||
|
2023 |
01/23/2023 |
315,000 |
315,000 |
34,650 |
1,000 |
33,650 |
||
|
2022 |
02/22/2022 |
310,500 |
310,500 |
34,155 |
1,000 |
33,155 |
||
|
2021 |
02/24/2021 |
248,500 |
225,055 |
24,756 |
1,000 |
23,756 |
||
|
2019 |
02/26/2019 |
225,500 |
219,390 |
24,133 |
1,000 |
23,133 |
||
| Property Building Permit History | ||||||
|---|---|---|---|---|---|---|
| Issued | Permit # | Provided by | Bldg # | Description | Est Construction Cost | Status |
|
10/16/2015 |
10477565 |
CHOCTAW |
1 |
Storage Buil |
4,000 |
Inactive |
| Click button on building number to access detailed information: | ||||||
|---|---|---|---|---|---|---|
| Bldg # | Vacant/Improved Land | Bldg Description | Year Built | SqFt | # Stories | |
|
1 |
Improved |
Ranch 1 Story |
2004 |
2,020 |
1 Stories |
|