|
|
|
| Larry Stein Oklahoma County Assessor (405) 713-1200 - Public Access System |
|
|
|
|
|
|
| Real Property Display - Screen Produced 3/18/2026 10:59:52 PM | ||||
|---|---|---|---|---|
| Account: R197881550 | Type: Residential | Location: |
13809 NE 8TH ST |
|
| Building Name/Occupant: |
|
CHOCTAW |
||
| Owner Name 1: | VANNOY MARJORIE RUTH TRS |
Parcel PIN#: |
2333-19-788-1550 |
|
| Owner Name 2: | VANNOY MARJORIE RUTH REV TRUST | 1/4 section #: |
2333 |
|
| Owner Name 3: | Parent Acct: |
|
||
| Billing Address: | 13809 NE 8TH ST | Tax District: |
|
|
| City, State, Zip | CHOCTAW, OK 73020-7623 | School System: |
Choctaw #4 |
|
|
Country: (If noted) |
Land Size: |
0.5165 Acres |
||
|
Land Value: 36,000 |
|
|||
|
Sect 34-T12N-R1W Qtr NE |
GILLESPIE ESTATES
Block
003
Lot
011
|
|||
| Full Legal Description: GILLESPIE ESTATES 003 011 |
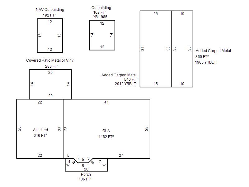
| Photo & Sketch (if available) | Comp Sales (ordered by relevancy) |
|
||||||||||||||||||
|
||||||||||||||||||||
| Value History (*The County Treasurer 405-713-1300 posts & collects actual tax amounts. Contact information HERE) | |||||||||||||
|---|---|---|---|---|---|---|---|---|---|---|---|---|---|
| Year | Market Value | Taxable Mkt Value | Gross Assessed | Exemption | Net Assessed | Millage | Est. Tax | Tax Savings | |||||
|
2025 |
196,000 |
43,836 |
4,821 |
4,821 |
0 |
117.21 |
$0 |
$2,527 |
|||||
|
2024 |
193,500 |
43,836 |
4,821 |
4,821 |
0 |
116.35 |
$0 |
$2,476 |
|||||
|
2023 |
173,000 |
43,836 |
4,821 |
4,821 |
0 |
118.06 |
$0 |
$2,247 |
|||||
|
2022 |
163,500 |
43,836 |
4,821 |
4,821 |
0 |
116.14 |
$0 |
$2,089 |
|||||
|
2021 |
137,000 |
43,836 |
4,821 |
4,821 |
0 |
116.17 |
$0 |
$1,751 |
|||||
| Property Account Status/Adjustments/Exemptions | ||
|---|---|---|
| Account # | Exemption Description | Amount |
|
R197881550 |
100% DAV Exemption |
100 |
|
R197881550 |
DAV Freeze Senior Valuation |
0 |
|
R197881550 |
DAV Senior Additional Homestead |
0 |
|
R197881550 |
DAV Homestead |
0 |
| Property Deed Transaction History (Recorded in the County Clerk's Office) | |||||||
|---|---|---|---|---|---|---|---|
| Date | Type | Book | Page | Price | Grantor | Grantee | |
|
1/24/2011 |
|
Deeds |
$0 |
VANNOY MARJORIE R |
VANNOY MARJORIE RUTH TRS |
||
|
12/29/2010 |
|
Deeds |
$0 |
VANNOY LEON C & MARJORIE R |
VANNOY MARJORIE R |
||
|
10/13/1994 |
|
Historical |
$0 |
VANNOY LEON C |
VANNOY LEON C & MARJORIE R |
||
|
2/1/1973 |
|
Historical |
$0 |
|
VANNOY LEON C |
||
| Last Mailed Notice of Value (N.O.V.) Information/History | ||||||||
|---|---|---|---|---|---|---|---|---|
| Year | Date | Market Value | Taxable Market Value | Gross Assessed | Exemption | Net Assessed | ||
|
2025 |
01/31/2025 |
196,000 |
43,836 |
4,821 |
4,821 |
0 |
||
|
2024 |
01/22/2024 |
193,500 |
43,836 |
4,821 |
4,821 |
0 |
||
|
2023 |
01/23/2023 |
173,000 |
43,836 |
4,821 |
4,821 |
0 |
||
|
2022 |
02/22/2022 |
163,500 |
43,836 |
4,821 |
4,821 |
0 |
||
|
2021 |
02/24/2021 |
137,000 |
43,836 |
4,821 |
4,821 |
0 |
||
| Property Building Permit History | ||||||
|---|---|---|---|---|---|---|
| Issued | Permit # | Provided by | Bldg # | Description | Est Construction Cost | Status |
|
10/29/2012 |
10446096 |
CHOCTAW |
1 |
Storage Buil |
3,200 |
Inactive |
| Click button on building number to access detailed information: | ||||||
|---|---|---|---|---|---|---|
| Bldg # | Vacant/Improved Land | Bldg Description | Year Built | SqFt | # Stories | |
|
1 |
Improved |
Ranch 1 Story |
1973 |
1,162 |
1 Stories |
|