|
|
|
| Larry Stein Oklahoma County Assessor (405) 713-1200 - Public Access System |
|
|
|
|
|
|
| Real Property Display - Screen Produced 3/18/2026 10:58:51 PM | ||||
|---|---|---|---|---|
| Account: R197881640 | Type: Residential | Location: |
13712 NE 9TH ST |
|
| Building Name/Occupant: |
|
CHOCTAW |
||
| Owner Name 1: | WATTS TERRELL |
Parcel PIN#: |
2333-19-788-1640 |
|
| Owner Name 2: | 1/4 section #: |
2333 |
||
| Owner Name 3: | Parent Acct: |
|
||
| Billing Address: | 13712 NE 9TH ST | Tax District: |
|
|
| City, State, Zip | CHOCTAW, OK 73020-7625 | School System: |
Choctaw #4 |
|
|
Country: (If noted) |
Land Size: |
0.5165 Acres |
||
|
Land Value: 36,000 |
|
|||
|
Sect 34-T12N-R1W Qtr NE |
GILLESPIE ESTATES
Block
004
Lot
006
|
|||
| Full Legal Description: GILLESPIE ESTATES 004 006 |
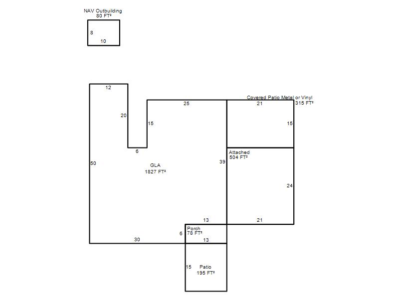
| Photo & Sketch (if available) | Comp Sales (ordered by relevancy) |
|
||||||||||||||||||
|
||||||||||||||||||||
| Value History (*The County Treasurer 405-713-1300 posts & collects actual tax amounts. Contact information HERE) | |||||||||||||
|---|---|---|---|---|---|---|---|---|---|---|---|---|---|
| Year | Market Value | Taxable Mkt Value | Gross Assessed | Exemption | Net Assessed | Millage | Est. Tax | Tax Savings | |||||
|
2025 |
244,500 |
196,546 |
21,619 |
0 |
21,619 |
117.21 |
$2,534 |
$618 |
|||||
|
2024 |
240,000 |
187,187 |
20,590 |
0 |
20,590 |
116.35 |
$2,396 |
$676 |
|||||
|
2023 |
217,500 |
178,274 |
19,609 |
0 |
19,609 |
118.06 |
$2,315 |
$509 |
|||||
|
2022 |
202,000 |
169,785 |
18,676 |
0 |
18,676 |
116.14 |
$2,169 |
$412 |
|||||
|
2021 |
172,500 |
161,700 |
17,787 |
0 |
17,787 |
116.17 |
$2,066 |
$138 |
|||||
| Property Account Status/Adjustments/Exemptions | ||
|---|---|---|
| Account # | Exemption Description | Amount |
|
R197881640 |
5% Capped Account |
0 |
| Property Deed Transaction History (Recorded in the County Clerk's Office) | ||||||||||
|---|---|---|---|---|---|---|---|---|---|---|
| Date | Type | Book | Page | Price | Grantor | Grantee | ||||
|
8/18/2017 |
|
Deeds |
$143,000 |
GIBBS GLENNA S |
WATTS TERRELL |
|||||
|
9/8/2014 |
|
Deeds |
$0 |
GIBBS NORMAN & GLENNA S |
GIBBS GLENNA S |
|||||
|
9/8/2008 |
|
Deeds |
$0 |
GIBBS NORMAN |
GIBBS NORMAN & GLENNA S |
|||||
|
12/18/2007 |
|
Deeds |
$139,000 |
SWAILS JOHN WAYNE & MONA LOUISE |
GIBBS NORMAN |
|||||
|
9/9/1986 |
|
Historical |
$64,000 |
ADMR OF VETERANS AFFAIRS |
SWAILS JOHN WANYE & |
|||||
| Last Mailed Notice of Value (N.O.V.) Information/History | ||||||||
|---|---|---|---|---|---|---|---|---|
| Year | Date | Market Value | Taxable Market Value | Gross Assessed | Exemption | Net Assessed | ||
|
2026 |
02/06/2026 |
242,000 |
206,373 |
22,701 |
0 |
22,701 |
||
|
2025 |
01/31/2025 |
244,500 |
196,546 |
21,619 |
0 |
21,619 |
||
|
2024 |
01/22/2024 |
240,000 |
187,187 |
20,590 |
0 |
20,590 |
||
|
2023 |
01/23/2023 |
217,500 |
178,274 |
19,609 |
0 |
19,609 |
||
|
2022 |
02/22/2022 |
202,000 |
169,785 |
18,676 |
0 |
18,676 |
||
| Property Building Permit History | ||||||
|---|---|---|---|---|---|---|
| Issued | Permit # | Provided by | Bldg # | Description | Est Construction Cost | Status |
|
4/9/2019 |
|
|
1 |
Storage Buil |
|
Inactive |
| Click button on building number to access detailed information: | ||||||
|---|---|---|---|---|---|---|
| Bldg # | Vacant/Improved Land | Bldg Description | Year Built | SqFt | # Stories | |
|
1 |
Improved |
Ranch 1 Story |
1970 |
1,827 |
1 Stories |
|