|
|
|
| Larry Stein Oklahoma County Assessor (405) 713-1200 - Public Access System |
|
|
|
|
|
|
| Real Property Display - Screen Produced 3/18/2026 10:59:52 PM | ||||
|---|---|---|---|---|
| Account: R197881660 | Type: Residential | Location: |
13718 NE 9TH ST |
|
| Building Name/Occupant: |
|
CHOCTAW |
||
| Owner Name 1: | RUSSELL FRIEND A |
Parcel PIN#: |
2333-19-788-1660 |
|
| Owner Name 2: | RUSSELL DONNA K | 1/4 section #: |
2333 |
|
| Owner Name 3: | Parent Acct: |
|
||
| Billing Address: | 13718 NE 9TH ST | Tax District: |
|
|
| City, State, Zip | CHOCTAW, OK 73020-7625 | School System: |
Choctaw #4 |
|
|
Country: (If noted) |
Land Size: |
0.5165 Acres |
||
|
Land Value: 36,000 |
|
|||
|
Sect 34-T12N-R1W Qtr NE |
GILLESPIE ESTATES
Block
004
Lot
008
|
|||
| Full Legal Description: GILLESPIE ESTATES 004 008 |
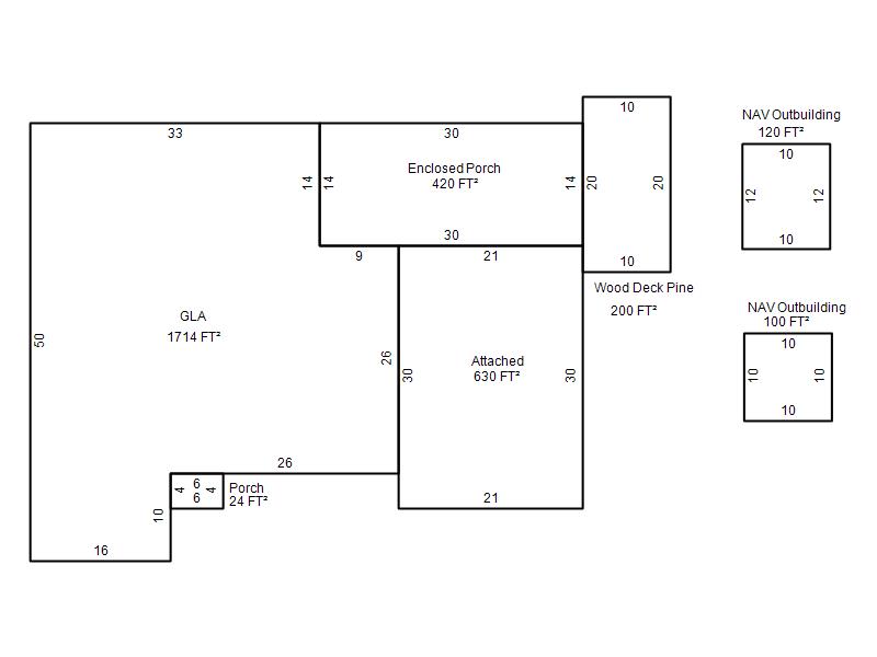
| Photo & Sketch (if available) | Comp Sales (ordered by relevancy) |
|
||||||||||||||||||
|
||||||||||||||||||||
| Value History (*The County Treasurer 405-713-1300 posts & collects actual tax amounts. Contact information HERE) | |||||||||||||
|---|---|---|---|---|---|---|---|---|---|---|---|---|---|
| Year | Market Value | Taxable Mkt Value | Gross Assessed | Exemption | Net Assessed | Millage | Est. Tax | Tax Savings | |||||
|
2025 |
218,000 |
176,125 |
19,373 |
0 |
19,373 |
117.21 |
$2,271 |
$540 |
|||||
|
2024 |
210,000 |
167,739 |
18,450 |
0 |
18,450 |
116.35 |
$2,147 |
$541 |
|||||
|
2023 |
191,500 |
159,752 |
17,571 |
0 |
17,571 |
118.06 |
$2,075 |
$412 |
|||||
|
2022 |
180,000 |
152,145 |
16,735 |
0 |
16,735 |
116.14 |
$1,944 |
$356 |
|||||
|
2021 |
153,000 |
144,900 |
15,939 |
0 |
15,939 |
116.17 |
$1,852 |
$104 |
|||||
| Property Account Status/Adjustments/Exemptions | ||
|---|---|---|
| Account # | Exemption Description | Amount |
|
R197881660 |
5% Capped Account |
0 |
| Property Deed Transaction History (Recorded in the County Clerk's Office) | |||||||
|---|---|---|---|---|---|---|---|
| Date | Type | Book | Page | Price | Grantor | Grantee | |
|
10/14/1992 |
|
Historical |
$70,000 |
WATKINS O G & MARY E |
RUSSELL FRIEND A |
||
|
11/11/1911 |
|
Historical |
$0 |
|
WATKINS O G & MARY E |
||
| Last Mailed Notice of Value (N.O.V.) Information/History | ||||||||
|---|---|---|---|---|---|---|---|---|
| Year | Date | Market Value | Taxable Market Value | Gross Assessed | Exemption | Net Assessed | ||
|
2026 |
02/06/2026 |
211,500 |
184,931 |
20,341 |
0 |
20,341 |
||
|
2025 |
01/31/2025 |
218,000 |
176,125 |
19,373 |
0 |
19,373 |
||
|
2024 |
01/22/2024 |
210,000 |
167,739 |
18,450 |
0 |
18,450 |
||
|
2023 |
01/23/2023 |
191,500 |
159,752 |
17,571 |
0 |
17,571 |
||
|
2022 |
02/22/2022 |
180,000 |
152,145 |
16,735 |
0 |
16,735 |
||
| Property Building Permit History | |||||||||||
|---|---|---|---|---|---|---|---|---|---|---|---|
| Issued | Permit # | Provided by | Bldg # | Description | Est Construction Cost | Status | |||||
| No Building Permit records returned. | |||||||||||
| Click button on building number to access detailed information: | ||||||
|---|---|---|---|---|---|---|
| Bldg # | Vacant/Improved Land | Bldg Description | Year Built | SqFt | # Stories | |
|
1 |
Improved |
Ranch 1 Story |
1967 |
1,714 |
1 Stories |
|