|
|
|
| Larry Stein Oklahoma County Assessor (405) 713-1200 - Public Access System |
|
|
|
|
|
|
| Real Property Display - Screen Produced 3/18/2026 10:57:29 PM | ||||
|---|---|---|---|---|
| Account: R197882000 | Type: Residential | Location: |
13708 NE 8TH ST |
|
| Building Name/Occupant: |
|
CHOCTAW |
||
| Owner Name 1: | HANCOCK KAYE L |
Parcel PIN#: |
2333-19-788-2000 |
|
| Owner Name 2: | 1/4 section #: |
2333 |
||
| Owner Name 3: | Parent Acct: |
|
||
| Billing Address: | 13708 NE 8TH ST | Tax District: |
|
|
| City, State, Zip | CHOCTAW, OK 73020-7600 | School System: |
Choctaw #4 |
|
|
Country: (If noted) |
Land Size: |
0.5142 Acres |
||
|
Land Value: 35,840 |
|
|||
|
Sect 34-T12N-R1W Qtr NE |
GILLESPIE ESTATES
Block
005
Lot
012
|
|||
| Full Legal Description: GILLESPIE ESTATES 005 012 |
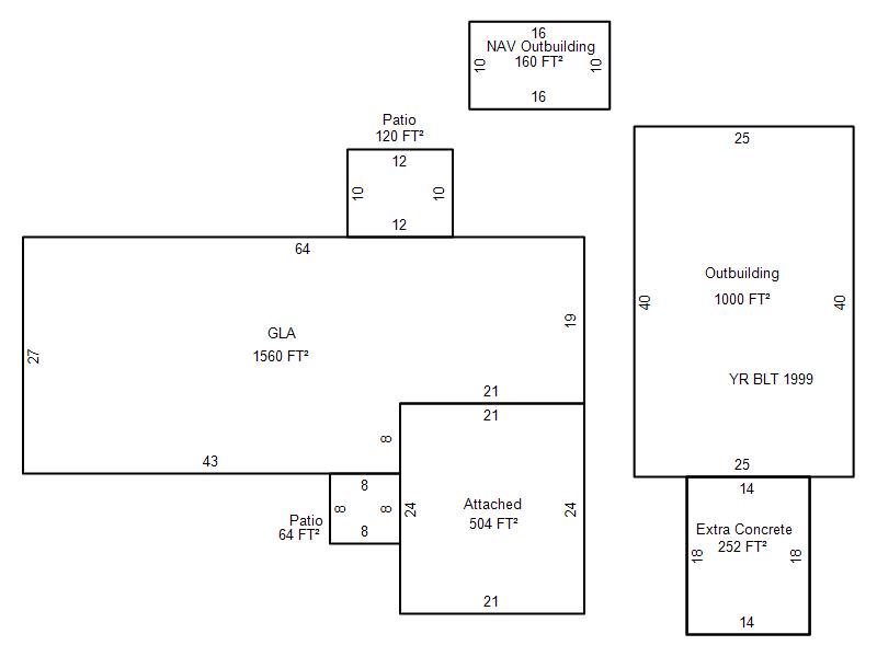
| Photo & Sketch (if available) | Comp Sales (ordered by relevancy) |
|
||||||||||||||||||
|
||||||||||||||||||||
| Value History (*The County Treasurer 405-713-1300 posts & collects actual tax amounts. Contact information HERE) | |||||||||||||
|---|---|---|---|---|---|---|---|---|---|---|---|---|---|
| Year | Market Value | Taxable Mkt Value | Gross Assessed | Exemption | Net Assessed | Millage | Est. Tax | Tax Savings | |||||
|
2025 |
210,000 |
64,710 |
7,118 |
1,000 |
6,118 |
117.21 |
$717 |
$1,990 |
|||||
|
2024 |
203,500 |
64,710 |
7,118 |
1,000 |
6,118 |
116.35 |
$712 |
$1,893 |
|||||
|
2023 |
183,000 |
64,710 |
7,118 |
1,000 |
6,118 |
118.06 |
$722 |
$1,654 |
|||||
|
2022 |
171,500 |
64,710 |
7,118 |
1,000 |
6,118 |
116.14 |
$711 |
$1,480 |
|||||
|
2021 |
145,500 |
64,710 |
7,118 |
1,000 |
6,118 |
116.17 |
$711 |
$1,149 |
|||||
| Property Account Status/Adjustments/Exemptions | ||
|---|---|---|
| Account # | Exemption Description | Amount |
|
R197882000 |
5% Capped Account |
0 |
| Property Deed Transaction History (Recorded in the County Clerk's Office) | |||||||
|---|---|---|---|---|---|---|---|
| Date | Type | Book | Page | Price | Grantor | Grantee | |
|
11/14/2025 |
|
Hmstd Off & |
$0 |
HANCOCK CARROLL D TRS |
HANCOCK KAYE L |
||
|
4/10/2024 |
|
Deeds |
$0 |
HANCOCK CARROLL D & PEGGY R |
HANCOCK CARROLL D |
||
|
4/10/2024 |
|
Deeds |
$0 |
HANCOCK CARROLL D |
HANCOCK CARROLL D TRS |
||
|
11/10/2008 |
|
Deeds |
$0 |
HANSEN JOHN H & JANET C |
HANCOCK CARROLL D & PEGGY R |
||
|
11/11/1911 |
|
Historical |
$0 |
|
HANCOCK CARROLL D & PEGGY R |
||
| Last Mailed Notice of Value (N.O.V.) Information/History | ||||||||
|---|---|---|---|---|---|---|---|---|
| Year | Date | Market Value | Taxable Market Value | Gross Assessed | Exemption | Net Assessed | ||
|
2026 |
02/06/2026 |
206,000 |
67,945 |
7,473 |
0 |
7,473 |
||
|
2025 |
01/31/2025 |
210,000 |
64,710 |
7,118 |
1,000 |
6,118 |
||
|
2024 |
01/22/2024 |
203,500 |
64,710 |
7,118 |
1,000 |
6,118 |
||
|
2023 |
01/23/2023 |
183,000 |
64,710 |
7,118 |
1,000 |
6,118 |
||
|
2022 |
02/22/2022 |
171,500 |
64,710 |
7,118 |
1,000 |
6,118 |
||
| Property Building Permit History | ||||||
|---|---|---|---|---|---|---|
| Issued | Permit # | Provided by | Bldg # | Description | Est Construction Cost | Status |
|
10/20/1998 |
10263659 |
CHOCTAW |
1 |
Carport |
0 |
Inactive |
| Click button on building number to access detailed information: | ||||||
|---|---|---|---|---|---|---|
| Bldg # | Vacant/Improved Land | Bldg Description | Year Built | SqFt | # Stories | |
|
1 |
Improved |
Ranch 1 Story |
1969 |
1,560 |
1 Stories |
|