|
|
|
| Larry Stein Oklahoma County Assessor (405) 713-1200 - Public Access System |
|
|
|
|
|
|
| Real Property Display - Screen Produced 3/18/2026 11:18:35 PM | ||||
|---|---|---|---|---|
| Account: R194827020 | Type: Residential | Location: |
14242 FOREST LN |
|
| Building Name/Occupant: |
|
CHOCTAW |
||
| Owner Name 1: | ERSKINE KATHERINE CORINE & JOHN H |
Parcel PIN#: |
2339-19-482-7020 |
|
| Owner Name 2: | 1/4 section #: |
2339 |
||
| Owner Name 3: | Parent Acct: |
|
||
| Billing Address: | 14242 FOREST LN | Tax District: |
|
|
| City, State, Zip | CHOCTAW, OK 73020-7536 | School System: |
Choctaw #4 |
|
|
Country: (If noted) |
Land Size: |
3.5000 Acres |
||
|
Land Value: 79,450 |
|
|||
|
Sect 35-T12N-R1W Qtr SW |
UNPLTD PT SEC 35 12N 1W
Block
000
Lot
000
|
|||
| Full Legal Description: UNPLTD PT SW4 SEC 35 12N 1W E/2 SE4 NW4 SW4 EX N397.02FT OF W164.58FT CONT 3.489ACRS MORE OR LESS |
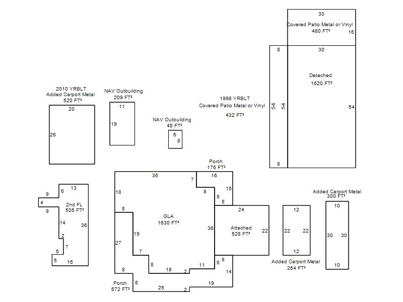
| Photo & Sketch (if available) | Comp Sales (ordered by relevancy) |
|
||||||||||||||||||
|
||||||||||||||||||||
| Value History (*The County Treasurer 405-713-1300 posts & collects actual tax amounts. Contact information HERE) | |||||||||||||
|---|---|---|---|---|---|---|---|---|---|---|---|---|---|
| Year | Market Value | Taxable Mkt Value | Gross Assessed | Exemption | Net Assessed | Millage | Est. Tax | Tax Savings | |||||
|
2025 |
471,000 |
471,000 |
51,810 |
51,810 |
0 |
117.21 |
$0 |
$6,073 |
|||||
|
2024 |
476,500 |
249,337 |
27,426 |
1,000 |
26,426 |
116.35 |
$3,075 |
$3,024 |
|||||
|
2023 |
422,000 |
242,075 |
26,627 |
1,000 |
25,627 |
118.06 |
$3,026 |
$2,455 |
|||||
|
2022 |
400,000 |
235,025 |
25,851 |
1,000 |
24,851 |
116.14 |
$2,886 |
$2,224 |
|||||
|
2021 |
328,000 |
228,180 |
25,099 |
1,000 |
24,099 |
116.17 |
$2,800 |
$1,392 |
|||||
| Property Account Status/Adjustments/Exemptions | ||
|---|---|---|
| Account # | Exemption Description | Amount |
|
R194827020 |
3% Cap Homestead |
0 |
|
R194827020 |
100% DAV Exemption |
100 |
|
R194827020 |
DAV Homestead |
0 |
| Property Deed Transaction History (Recorded in the County Clerk's Office) | |||||||
|---|---|---|---|---|---|---|---|
| Date | Type | Book | Page | Price | Grantor | Grantee | |
|
11/15/2024 |
|
Deeds |
$0 |
WILLIAMS JACKIE L & E DORINDA |
WILLIAMS E DORINDA |
||
|
11/15/2024 |
|
Deeds |
$462,500 |
WILLIAMS E DORINDA |
ERSKINE KATHERINE CORINE & JOHN H |
||
|
4/9/1997 |
|
Historical |
$25,000 |
|
WILLIAMS JACKIE L & E DORINDA |
||
| Last Mailed Notice of Value (N.O.V.) Information/History | ||||||||
|---|---|---|---|---|---|---|---|---|
| Year | Date | Market Value | Taxable Market Value | Gross Assessed | Exemption | Net Assessed | ||
|
2026 |
02/06/2026 |
477,000 |
477,000 |
52,470 |
52,470 |
0 |
||
|
2025 |
01/31/2025 |
471,000 |
471,000 |
51,810 |
51,810 |
0 |
||
|
2024 |
01/22/2024 |
476,500 |
249,337 |
27,426 |
1,000 |
26,426 |
||
|
2023 |
01/23/2023 |
422,000 |
242,075 |
26,627 |
1,000 |
25,627 |
||
|
2022 |
02/22/2022 |
400,000 |
235,025 |
25,851 |
1,000 |
24,851 |
||
| Property Building Permit History | ||||||
|---|---|---|---|---|---|---|
| Issued | Permit # | Provided by | Bldg # | Description | Est Construction Cost | Status |
|
7/1/2004 |
10294477 |
CHOCTAW |
1 |
Swimming Pool |
21,595 |
Inactive |
|
8/17/1998 |
10262877 |
CHOCTAW |
1 |
Add On |
0 |
Inactive |
|
6/23/1997 |
10262878 |
CHOCTAW |
1 |
Main Dwellin |
100,000 |
Inactive |
| Click button on building number to access detailed information: | ||||||
|---|---|---|---|---|---|---|
| Bldg # | Vacant/Improved Land | Bldg Description | Year Built | SqFt | # Stories | |
|
1 |
Improved |
1½ Story Fin |
1998 |
2,135 |
1.5 Stories |
|