|
|
|
| Larry Stein Oklahoma County Assessor (405) 713-1200 - Public Access System |
|
|
|
|
|
|
| Real Property Display - Screen Produced 3/18/2026 11:18:14 PM | ||||
|---|---|---|---|---|
| Account: R144098035 | Type: Residential | Location: |
4420 S WESTMINSTER RD |
|
| Building Name/Occupant: |
|
OKLAHOMA CITY |
||
| Owner Name 1: | EDWARDS SCOTT A & AMY C |
Parcel PIN#: |
1267-14-409-8035 |
|
| Owner Name 2: | 1/4 section #: |
1267 |
||
| Owner Name 3: | Parent Acct: |
|
||
| Billing Address: | 4420 S WESTMINSTER RD | Tax District: |
|
|
| City, State, Zip | OKLAHOMA CITY, OK 73150-2819 | School System: |
Mid-Del #52 |
|
|
Country: (If noted) |
Land Size: |
2.0900 Acres |
||
|
Land Value: 47,398 |
|
|||
|
Sect 17-T11N-R1W Qtr SW |
UNPLTD PT SEC 17 11N 1W
Block
000
Lot
000
|
|||
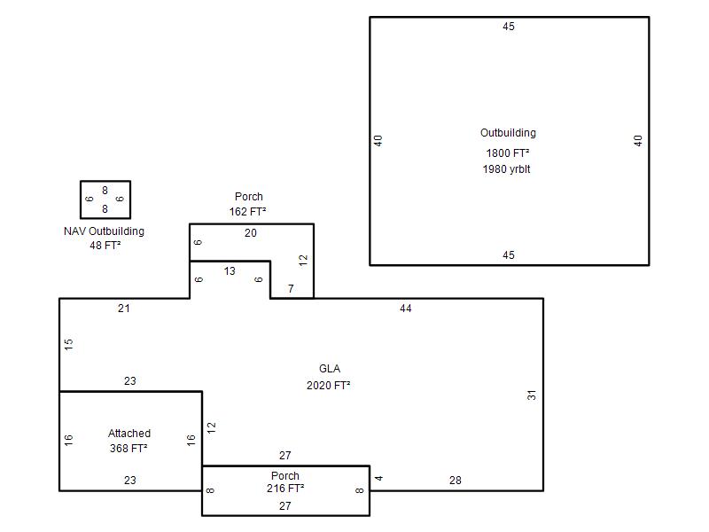
| Full Legal Description: UNPLTD PT SEC 17 11N 1W 000 000 PT OF SW4 SEC 17 11N 1W BEG 332.98FT E OF SW/C OF SW4 TH NWLY 271.61FT E333.23FT S270FT W353.98FT TO BEG CONT 2.0921ACRS MORE OR LESS |
| Photo & Sketch (if available) | Comp Sales (ordered by relevancy) |
|
||||||||||||||||||
|
||||||||||||||||||||
| Value History (*The County Treasurer 405-713-1300 posts & collects actual tax amounts. Contact information HERE) | |||||||||||||
|---|---|---|---|---|---|---|---|---|---|---|---|---|---|
| Year | Market Value | Taxable Mkt Value | Gross Assessed | Exemption | Net Assessed | Millage | Est. Tax | Tax Savings | |||||
|
2025 |
322,000 |
233,592 |
25,694 |
1,000 |
24,694 |
126.46 |
$3,123 |
$1,356 |
|||||
|
2024 |
302,000 |
226,789 |
24,946 |
1,000 |
23,946 |
128.51 |
$3,077 |
$1,192 |
|||||
|
2023 |
274,500 |
220,184 |
24,219 |
1,000 |
23,219 |
122.94 |
$2,855 |
$857 |
|||||
|
2022 |
238,000 |
213,771 |
23,513 |
1,000 |
22,513 |
122.11 |
$2,749 |
$448 |
|||||
|
2021 |
219,000 |
207,545 |
22,829 |
1,000 |
21,829 |
124.74 |
$2,723 |
$282 |
|||||
| Property Account Status/Adjustments/Exemptions | ||
|---|---|---|
| Account # | Exemption Description | Amount |
|
R144098035 |
3% Cap Homestead |
0 |
|
R144098035 |
Homestead |
1,000 |
| Property Deed Transaction History (Recorded in the County Clerk's Office) | |||||||
|---|---|---|---|---|---|---|---|
| Date | Type | Book | Page | Price | Grantor | Grantee | |
|
8/9/2016 |
|
Deeds |
$145,000 |
EDWARDS CONNIE L & JANICE K |
EDWARDS SCOTT A & AMY C |
||
|
2/1/1978 |
|
Historical |
$0 |
|
EDWARDS CONNIE L & JANICE K |
||
| Last Mailed Notice of Value (N.O.V.) Information/History | ||||||||
|---|---|---|---|---|---|---|---|---|
| Year | Date | Market Value | Taxable Market Value | Gross Assessed | Exemption | Net Assessed | ||
|
2026 |
02/06/2026 |
313,500 |
240,599 |
26,465 |
1,000 |
25,465 |
||
|
2025 |
01/31/2025 |
322,000 |
233,592 |
25,694 |
1,000 |
24,694 |
||
|
2024 |
01/22/2024 |
302,000 |
226,789 |
24,946 |
1,000 |
23,946 |
||
|
2023 |
01/23/2023 |
274,500 |
220,184 |
24,219 |
1,000 |
23,219 |
||
|
2022 |
02/22/2022 |
238,000 |
213,771 |
23,513 |
1,000 |
22,513 |
||
| Property Building Permit History | |||||||||||
|---|---|---|---|---|---|---|---|---|---|---|---|
| Issued | Permit # | Provided by | Bldg # | Description | Est Construction Cost | Status | |||||
| No Building Permit records returned. | |||||||||||
| Click button on building number to access detailed information: | ||||||
|---|---|---|---|---|---|---|
| Bldg # | Vacant/Improved Land | Bldg Description | Year Built | SqFt | # Stories | |
|
1 |
Improved |
Ranch 1 Story |
1979 |
2,020 |
1 Stories |
|