|
|
|
| Larry Stein Oklahoma County Assessor (405) 713-1200 - Public Access System |
|
|
|
|
|
|
| Real Property Display - Screen Produced 3/23/2026 5:35:34 AM | ||||
|---|---|---|---|---|
| Account: R144126090 | Type: Residential | Location: |
4100 S NOMA RD |
|
| Building Name/Occupant: |
|
OKLAHOMA CITY |
||
| Owner Name 1: | LUJAN ABRAHAM |
Parcel PIN#: |
1270-14-412-6090 |
|
| Owner Name 2: | 1/4 section #: |
1270 |
||
| Owner Name 3: | Parent Acct: |
|
||
| Billing Address: | 4100 S NOMA RD | Tax District: |
|
|
| City, State, Zip | OKLAHOMA CITY, OK 73150-2844 | School System: |
Mid-Del #52 |
|
|
Country: (If noted) |
Land Size: |
5.0000 Acres |
||
|
Land Value: 66,870 |
|
|||
|
Sect 18-T11N-R1W Qtr SE |
UNPLTD PT SEC 18 11N 1W
Block
000
Lot
000
|
|||
| Full Legal Description: UNPLTD PT SE4 SEC 18 11N 1W BEING S/2 OF SW4 NW4 SE4 KNOWN AS TR 10 |
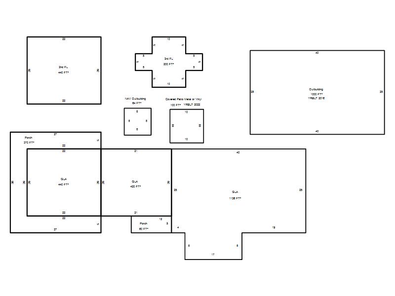
| Photo & Sketch (if available) | Comp Sales (ordered by relevancy) |
|
||||||||||||||||||
|
||||||||||||||||||||
| Value History (*The County Treasurer 405-713-1300 posts & collects actual tax amounts. Contact information HERE) | |||||||||||||
|---|---|---|---|---|---|---|---|---|---|---|---|---|---|
| Year | Market Value | Taxable Mkt Value | Gross Assessed | Exemption | Net Assessed | Millage | Est. Tax | Tax Savings | |||||
|
2025 |
586,000 |
586,000 |
64,460 |
0 |
64,460 |
126.46 |
$8,152 |
$0 |
|||||
|
2024 |
324,000 |
200,521 |
22,056 |
22,056 |
0 |
128.51 |
$0 |
$4,580 |
|||||
|
2023 |
286,500 |
194,681 |
21,414 |
21,414 |
0 |
122.94 |
$0 |
$3,874 |
|||||
|
2022 |
248,500 |
189,011 |
20,790 |
20,790 |
0 |
122.11 |
$0 |
$3,338 |
|||||
|
2021 |
219,500 |
183,506 |
20,184 |
20,184 |
0 |
124.74 |
$0 |
$3,012 |
|||||
| Property Account Status/Adjustments/Exemptions | ||||||
|---|---|---|---|---|---|---|
| Account # | Exemption Description | Amount | ||||
| No adjustment/exemption records returned. | ||||||
| Property Deed Transaction History (Recorded in the County Clerk's Office) | ||||||||||
|---|---|---|---|---|---|---|---|---|---|---|
| Date | Type | Book | Page | Price | Grantor | Grantee | ||||
|
10/23/2025 |
|
Deeds |
$440,000 |
OTERO COSME |
LUJAN ABRAHAM |
|||||
|
3/21/2025 |
|
Hmstd Off & |
$0 |
OTERO ANTONIO |
OTERO COSME |
|||||
|
1/17/2024 |
|
Deeds |
$329,000 |
REED JOSHUA B |
OTERO ANTONIO |
|||||
|
1/16/2024 |
|
Deeds |
$0 |
CANNON CONNIE M |
REED JOSHUA B |
|||||
|
6/22/2021 |
|
Deeds |
$0 |
CANNON CONNIE M |
REED JOSHUA B |
|||||
| Last Mailed Notice of Value (N.O.V.) Information/History | ||||||||
|---|---|---|---|---|---|---|---|---|
| Year | Date | Market Value | Taxable Market Value | Gross Assessed | Exemption | Net Assessed | ||
|
2025 |
03/28/2025 |
586,000 |
586,000 |
64,460 |
0 |
64,460 |
||
|
2024 |
01/22/2024 |
324,000 |
200,521 |
22,056 |
22,056 |
0 |
||
|
2024 |
03/01/2024 |
324,000 |
200,521 |
22,056 |
22,056 |
0 |
||
|
2023 |
01/23/2023 |
286,500 |
194,681 |
21,414 |
21,414 |
0 |
||
|
2022 |
02/22/2022 |
248,500 |
189,011 |
20,789 |
20,789 |
0 |
||
| Property Building Permit History | ||||||
|---|---|---|---|---|---|---|
| Issued | Permit # | Provided by | Bldg # | Description | Est Construction Cost | Status |
|
1/4/2021 |
|
|
1 |
Add On |
|
Inactive |
|
7/25/2011 |
10434670 |
OKLAHOMA CITY |
1 |
Main Dwellin |
65,000 |
Inactive |
|
2/2/2005 |
10302655 |
OKLAHOMA CITY |
1 |
Burn - Trip |
2,000 |
Inactive |
| Click button on building number to access detailed information: | ||||||
|---|---|---|---|---|---|---|
| Bldg # | Vacant/Improved Land | Bldg Description | Year Built | SqFt | # Stories | |
|
1 |
Improved |
2½ Story |
2012 |
2,636 |
2.5 Stories |
|