|
|
|
| Larry Stein Oklahoma County Assessor (405) 713-1200 - Public Access System |
|
|
|
|
|
|
| Real Property Display - Screen Produced 4/2/2026 11:27:03 AM | ||||
|---|---|---|---|---|
| Account: R122482200 | Type: Residential | Location: |
2713 JUSTIN PL |
|
| Building Name/Occupant: |
|
SPENCER |
||
| Owner Name 1: | MARTIN JACOB |
Parcel PIN#: |
2490-12-248-2200 |
|
| Owner Name 2: | 1/4 section #: |
2490 |
||
| Owner Name 3: | Parent Acct: |
|
||
| Billing Address: | 2713 JUSTIN PL | Tax District: |
|
|
| City, State, Zip | SPENCER, OK 73084-3513 | School System: |
Oklahoma City #89 |
|
|
Country: (If noted) |
Land Size: |
0.1543 Acres |
||
|
Land Value: 26,880 |
|
|||
|
Sect 23-T12N-R2W Qtr SE |
BENTREE COUNTRY PLACE
Block
007
Lot
016
|
|||
| Full Legal Description: BENTREE COUNTRY PLACE 007 016 |
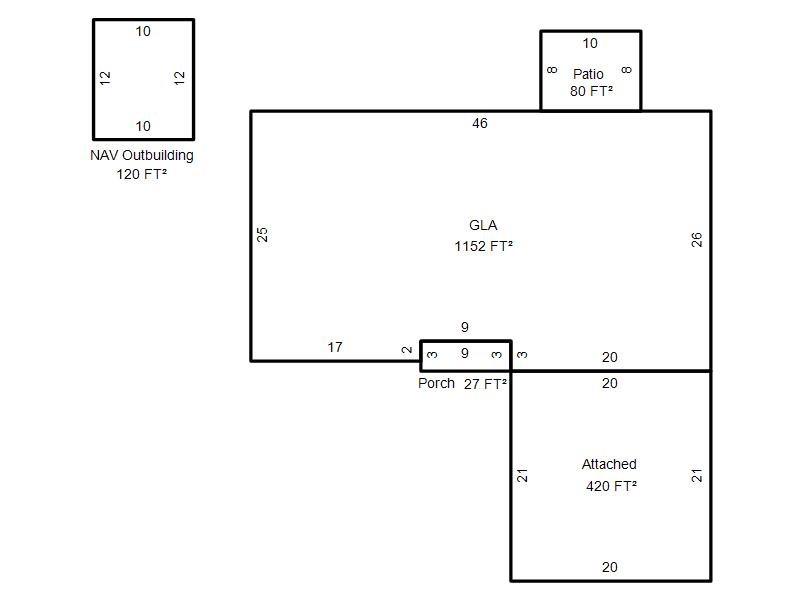
| Photo & Sketch (if available) | Comp Sales (ordered by relevancy) |
|
||||||||||||||||||
|
||||||||||||||||||||
| Value History (*The County Treasurer 405-713-1300 posts & collects actual tax amounts. Contact information HERE) | |||||||||||||
|---|---|---|---|---|---|---|---|---|---|---|---|---|---|
| Year | Market Value | Taxable Mkt Value | Gross Assessed | Exemption | Net Assessed | Millage | Est. Tax | Tax Savings | |||||
|
2026 |
155,000 |
155,000 |
17,050 |
0 |
17,050 |
107.74 |
$1,837 |
$0 |
|||||
|
2025 |
155,500 |
155,500 |
17,105 |
0 |
17,105 |
107.74 |
$1,843 |
$0 |
|||||
|
2024 |
152,500 |
152,500 |
16,775 |
0 |
16,775 |
108.96 |
$1,828 |
$0 |
|||||
|
2023 |
144,500 |
98,271 |
10,809 |
0 |
10,809 |
108.04 |
$1,168 |
$549 |
|||||
|
2022 |
125,500 |
93,592 |
10,294 |
0 |
10,294 |
102.17 |
$1,052 |
$359 |
|||||
| Property Account Status/Adjustments/Exemptions | ||
|---|---|---|
| Account # | Exemption Description | Amount |
|
R122482200 |
5% Capped Account |
0 |
| Property Deed Transaction History (Recorded in the County Clerk's Office) | ||||||||||
|---|---|---|---|---|---|---|---|---|---|---|
| Date | Type | Book | Page | Price | Grantor | Grantee | ||||
|
5/13/2024 |
|
Deeds |
$163,000 |
OPENDOOR PROPERTY TRUST I |
MARTIN JACOB |
|||||
|
10/3/2023 |
|
Deeds |
$138,000 |
GR SFR FUND II B LLC |
OPENDOOR PROPERTY TRUST I |
|||||
|
5/31/2023 |
|
Mult Parcel |
$1,568,000 |
405 PROPERTY VENTURES LLC |
GR SFR FUND II B LLC |
|||||
|
2/1/2019 |
|
Hmstd Off & |
$0 |
STUBBS BRIAN |
405 PROPERTY VENTURES LLC |
|||||
|
11/9/2017 |
|
Mult Parcel |
$1,400,000 |
LRG PROPERTIES LLC |
405 PROPERTY VENTURES LLC |
|||||
| Last Mailed Notice of Value (N.O.V.) Information/History | ||||||||
|---|---|---|---|---|---|---|---|---|
| Year | Date | Market Value | Taxable Market Value | Gross Assessed | Exemption | Net Assessed | ||
|
2025 |
02/14/2025 |
155,500 |
155,500 |
17,105 |
0 |
17,105 |
||
|
2024 |
02/13/2024 |
152,500 |
152,500 |
16,775 |
0 |
16,775 |
||
|
2023 |
02/14/2023 |
144,500 |
98,271 |
10,809 |
0 |
10,809 |
||
|
2022 |
03/15/2022 |
125,500 |
93,592 |
10,294 |
0 |
10,294 |
||
|
2021 |
03/19/2021 |
103,500 |
89,136 |
9,804 |
0 |
9,804 |
||
| Property Building Permit History | |||||||||||
|---|---|---|---|---|---|---|---|---|---|---|---|
| Issued | Permit # | Provided by | Bldg # | Description | Est Construction Cost | Status | |||||
| No Building Permit records returned. | |||||||||||
| Click button on building number to access detailed information: | ||||||
|---|---|---|---|---|---|---|
| Bldg # | Vacant/Improved Land | Bldg Description | Year Built | SqFt | # Stories | |
|
1 |
Improved |
Ranch 1 Story |
1985 |
1,152 |
1 Stories |
|