|
|
|
| Larry Stein Oklahoma County Assessor (405) 713-1200 - Public Access System |
|
|
|
|
|
|
| Real Property Display - Screen Produced 4/1/2026 6:09:45 AM | ||||
|---|---|---|---|---|
| Account: R154761785 | Type: Residential | Location: |
1221 N CHRISTINE DR |
|
| Building Name/Occupant: |
|
MIDWEST CITY |
||
| Owner Name 1: | YOUNG KRISTINA MINICK |
Parcel PIN#: |
2498-15-476-1785 |
|
| Owner Name 2: | 1/4 section #: |
2498 |
||
| Owner Name 3: | Parent Acct: |
|
||
| Billing Address: | 2304 N PENIEL AVE | Tax District: |
|
|
| City, State, Zip | BETHANY, OK 73008 | School System: |
Oklahoma City #89 |
|
|
Country: (If noted) |
UNITED STATES |
Land Size: |
0.1398 Acres |
|
|
Land Value: 15,834 |
|
|||
|
Sect 25-T12N-R2W Qtr SE |
MCGREGOR HEIGHTS
Block
003
Lot
023
|
|||
| Full Legal Description: MCGREGOR HEIGHTS 003 023 |
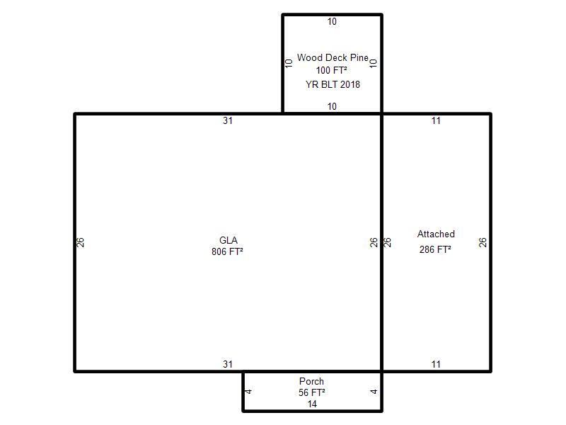
| Photo & Sketch (if available) | Comp Sales (ordered by relevancy) |
|
||||||||||||||||||
|
||||||||||||||||||||
| Value History (*The County Treasurer 405-713-1300 posts & collects actual tax amounts. Contact information HERE) | |||||||||||||
|---|---|---|---|---|---|---|---|---|---|---|---|---|---|
| Year | Market Value | Taxable Mkt Value | Gross Assessed | Exemption | Net Assessed | Millage | Est. Tax | Tax Savings | |||||
|
2026 |
123,500 |
87,424 |
9,615 |
0 |
9,615 |
114.34 |
$1,100 |
$454 |
|||||
|
2025 |
122,000 |
83,261 |
9,158 |
0 |
9,158 |
114.34 |
$1,047 |
$487 |
|||||
|
2024 |
120,500 |
79,297 |
8,722 |
0 |
8,722 |
116.11 |
$1,013 |
$526 |
|||||
|
2023 |
105,500 |
75,521 |
8,306 |
0 |
8,306 |
115.66 |
$961 |
$381 |
|||||
|
2022 |
80,000 |
71,925 |
7,911 |
0 |
7,911 |
110.02 |
$870 |
$98 |
|||||
| Property Account Status/Adjustments/Exemptions | ||
|---|---|---|
| Account # | Exemption Description | Amount |
|
R154761785 |
5% Capped Account |
0 |
| Property Deed Transaction History (Recorded in the County Clerk's Office) | ||||||||||
|---|---|---|---|---|---|---|---|---|---|---|
| Date | Type | Book | Page | Price | Grantor | Grantee | ||||
|
4/26/2019 |
|
Deeds |
$69,000 |
CURRAN MEGAN K |
YOUNG KRISTINA MINICK |
|||||
|
1/31/2018 |
|
Deeds |
$0 |
CURRAN MEGAN K & ROBERT K |
CURRAN MEGAN K |
|||||
|
9/7/2004 |
|
Deeds |
$61,500 |
HARRIS JOEL R & LISA S |
CURRAN MEGAN K & ROBERT K |
|||||
|
8/5/2002 |
|
Deeds |
$18,500 |
RAK INVESTMENTS INC |
HARRIS JOEL R & LISA S |
|||||
|
6/6/2002 |
|
Deeds |
$16,000 |
SUPERIOR FEDERAL BANK |
RAK INVESTMENTS INC |
|||||
| Last Mailed Notice of Value (N.O.V.) Information/History | ||||||||
|---|---|---|---|---|---|---|---|---|
| Year | Date | Market Value | Taxable Market Value | Gross Assessed | Exemption | Net Assessed | ||
|
2026 |
02/23/2026 |
123,500 |
87,424 |
9,615 |
0 |
9,615 |
||
|
2025 |
02/14/2025 |
122,000 |
83,261 |
9,158 |
0 |
9,158 |
||
|
2024 |
02/13/2024 |
120,500 |
79,297 |
8,722 |
0 |
8,722 |
||
|
2023 |
02/14/2023 |
105,500 |
75,521 |
8,306 |
0 |
8,306 |
||
|
2022 |
03/15/2022 |
80,000 |
71,925 |
7,911 |
0 |
7,911 |
||
| Property Building Permit History | |||||||||||
|---|---|---|---|---|---|---|---|---|---|---|---|
| Issued | Permit # | Provided by | Bldg # | Description | Est Construction Cost | Status | |||||
| No Building Permit records returned. | |||||||||||
| Click button on building number to access detailed information: | ||||||
|---|---|---|---|---|---|---|
| Bldg # | Vacant/Improved Land | Bldg Description | Year Built | SqFt | # Stories | |
|
1 |
Improved |
Ranch 1 Story |
1969 |
806 |
1 Stories |
|