|
|
|
| Larry Stein Oklahoma County Assessor (405) 713-1200 - Public Access System |
|
|
|
|
|
|
| Real Property Display - Screen Produced 4/4/2026 3:01:02 AM | ||||
|---|---|---|---|---|
| Account: R154751115 | Type: Residential | Location: |
1208 ALAN LN |
|
| Building Name/Occupant: |
|
MIDWEST CITY |
||
| Owner Name 1: | PALMS OLIVER & DANDRA CLARK |
Parcel PIN#: |
2499-15-475-1115 |
|
| Owner Name 2: | 1/4 section #: |
2499 |
||
| Owner Name 3: | Parent Acct: |
|
||
| Billing Address: | 12013 MOON BEAM DR | Tax District: |
|
|
| City, State, Zip | OKLAHOMA CITY, OK 73162 | School System: |
Oklahoma City #89 |
|
|
Country: (If noted) |
Land Size: |
0.2847 Acres |
||
|
Land Value: 16,120 |
|
|||
|
Sect 25-T12N-R2W Qtr SW |
ASHFORD HGTS ADD
Block
001
Lot
000
|
|||
| Full Legal Description: ASHFORD HGTS ADD 001 000 LOT 12 & N5FT LOT 13 |
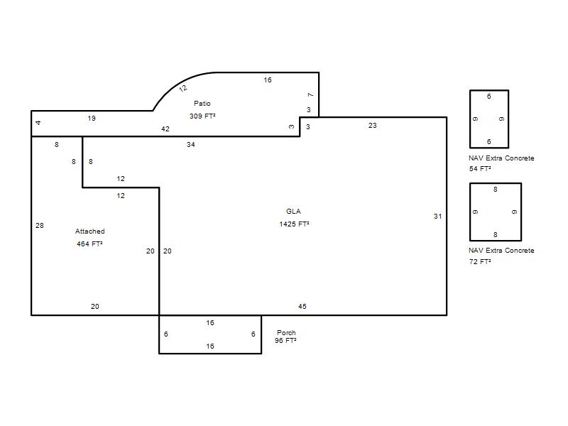
| Photo & Sketch (if available) | Comp Sales (ordered by relevancy) |
|
||||||||||||||||||
|
||||||||||||||||||||
| Value History (*The County Treasurer 405-713-1300 posts & collects actual tax amounts. Contact information HERE) | |||||||||||||
|---|---|---|---|---|---|---|---|---|---|---|---|---|---|
| Year | Market Value | Taxable Mkt Value | Gross Assessed | Exemption | Net Assessed | Millage | Est. Tax | Tax Savings | |||||
|
2026 |
134,500 |
60,847 |
6,692 |
1,000 |
5,692 |
114.34 |
$651 |
$1,041 |
|||||
|
2025 |
135,000 |
59,075 |
6,498 |
1,000 |
5,498 |
114.34 |
$629 |
$1,069 |
|||||
|
2024 |
106,000 |
57,355 |
6,308 |
1,000 |
5,308 |
116.11 |
$616 |
$737 |
|||||
|
2023 |
112,500 |
55,685 |
6,125 |
1,000 |
5,125 |
115.66 |
$593 |
$838 |
|||||
|
2022 |
91,000 |
54,064 |
5,946 |
1,000 |
4,946 |
110.02 |
$544 |
$557 |
|||||
| Property Account Status/Adjustments/Exemptions | ||
|---|---|---|
| Account # | Exemption Description | Amount |
|
R154751115 |
3% Cap Homestead |
0 |
|
R154751115 |
Homestead |
1,000 |
| Property Deed Transaction History (Recorded in the County Clerk's Office) | |||||||
|---|---|---|---|---|---|---|---|
| Date | Type | Book | Page | Price | Grantor | Grantee | |
|
3/27/2006 |
|
Deeds |
$0 |
PALMS OLIVER W |
PALMS OLIVER & DANDRA CLARK |
||
|
1/27/2005 |
|
Deeds |
$66,000 |
COMMUNITY ACTION AGENCY |
PALMS OLIVER W |
||
|
3/16/2004 |
|
Other |
$0 |
ULLRICH WILLIA MAE |
COMMUNITY ACTION AGENCY |
||
|
4/22/1988 |
|
Historical |
$0 |
ULLRICH WILLIA MAE |
ULLRICH WILLIA MAE |
||
|
11/1/1979 |
|
Historical |
$0 |
|
ULLRICH WILLIA MAE |
||
| Last Mailed Notice of Value (N.O.V.) Information/History | ||||||||
|---|---|---|---|---|---|---|---|---|
| Year | Date | Market Value | Taxable Market Value | Gross Assessed | Exemption | Net Assessed | ||
|
2026 |
02/23/2026 |
134,500 |
60,847 |
6,692 |
1,000 |
5,692 |
||
|
2025 |
02/14/2025 |
135,000 |
59,075 |
6,498 |
1,000 |
5,498 |
||
|
2024 |
02/13/2024 |
106,000 |
57,355 |
6,308 |
1,000 |
5,308 |
||
|
2023 |
02/14/2023 |
112,500 |
55,685 |
6,125 |
1,000 |
5,125 |
||
|
2022 |
03/15/2022 |
91,000 |
54,064 |
5,946 |
1,000 |
4,946 |
||
| Property Building Permit History | |||||||||||
|---|---|---|---|---|---|---|---|---|---|---|---|
| Issued | Permit # | Provided by | Bldg # | Description | Est Construction Cost | Status | |||||
| No Building Permit records returned. | |||||||||||
| Click button on building number to access detailed information: | ||||||
|---|---|---|---|---|---|---|
| Bldg # | Vacant/Improved Land | Bldg Description | Year Built | SqFt | # Stories | |
|
1 |
Improved |
Ranch 1 Story |
1957 |
1,425 |
1 Stories |
|