|
|
|
| Larry Stein Oklahoma County Assessor (405) 713-1200 - Public Access System |
|
|
|
|
|
|
| Real Property Display - Screen Produced 4/4/2026 3:02:27 AM | ||||
|---|---|---|---|---|
| Account: R154751525 | Type: Residential | Location: |
9409 NE 12TH ST |
|
| Building Name/Occupant: |
|
MIDWEST CITY |
||
| Owner Name 1: | STAPLES ROY |
Parcel PIN#: |
2499-15-475-1525 |
|
| Owner Name 2: | 1/4 section #: |
2499 |
||
| Owner Name 3: | Parent Acct: |
|
||
| Billing Address: | 9409 NE 12TH ST | Tax District: |
|
|
| City, State, Zip | MIDWEST CITY, OK 73130-1200 | School System: |
Oklahoma City #89 |
|
|
Country: (If noted) |
Land Size: |
0.2531 Acres |
||
|
Land Value: 14,333 |
|
|||
|
Sect 25-T12N-R2W Qtr SW |
ASHFORD HGTS ADD
Block
003
Lot
023
|
|||
| Full Legal Description: ASHFORD HGTS ADD 003 023 |
| Photo & Sketch (if available) | Comp Sales (ordered by relevancy) |
|
||||||||||||||||||
|
||||||||||||||||||||
| Value History (*The County Treasurer 405-713-1300 posts & collects actual tax amounts. Contact information HERE) | |||||||||||||
|---|---|---|---|---|---|---|---|---|---|---|---|---|---|
| Year | Market Value | Taxable Mkt Value | Gross Assessed | Exemption | Net Assessed | Millage | Est. Tax | Tax Savings | |||||
|
2026 |
136,000 |
42,183 |
4,640 |
2,000 |
2,640 |
114.34 |
$302 |
$1,409 |
|||||
|
2025 |
133,500 |
42,183 |
4,640 |
2,000 |
2,640 |
114.34 |
$302 |
$1,377 |
|||||
|
2024 |
105,500 |
42,183 |
4,640 |
2,000 |
2,640 |
116.11 |
$307 |
$1,041 |
|||||
|
2023 |
111,500 |
42,183 |
4,640 |
2,000 |
2,640 |
115.66 |
$305 |
$1,113 |
|||||
|
2022 |
91,000 |
42,183 |
4,640 |
2,000 |
2,640 |
110.02 |
$290 |
$811 |
|||||
| Property Account Status/Adjustments/Exemptions | ||
|---|---|---|
| Account # | Exemption Description | Amount |
|
R154751525 |
Freeze Senior Valuation |
0 |
|
R154751525 |
Senior Additional Homestead |
1,000 |
|
R154751525 |
3% Cap Homestead |
0 |
|
R154751525 |
Homestead |
1,000 |
| Property Deed Transaction History (Recorded in the County Clerk's Office) | |||||||
|---|---|---|---|---|---|---|---|
| Date | Type | Book | Page | Price | Grantor | Grantee | |
|
7/21/2005 |
|
Deeds |
$58,000 |
NOLEN GARLAND M |
STAPLES ROY |
||
|
8/16/2002 |
|
Deeds |
$47,000 |
HART CHARLES COLEMAN DENSMORE BETTY |
NOLEN GARLAND M |
||
|
6/10/1998 |
|
Historical |
$0 |
HART MILDRED E |
HART CHARLES COLEMAN |
||
|
1/14/1998 |
|
Historical |
$0 |
HART HENRY C & MILDRED E |
HART MILDRED E |
||
|
11/11/1911 |
|
Historical |
$0 |
|
HART HENRY C & MILDRED E |
||
| Last Mailed Notice of Value (N.O.V.) Information/History | ||||||||
|---|---|---|---|---|---|---|---|---|
| Year | Date | Market Value | Taxable Market Value | Gross Assessed | Exemption | Net Assessed | ||
|
2026 |
02/23/2026 |
136,000 |
42,183 |
4,640 |
2,000 |
2,640 |
||
|
2025 |
02/14/2025 |
133,500 |
42,183 |
4,640 |
2,000 |
2,640 |
||
|
2023 |
02/14/2023 |
111,500 |
42,183 |
4,640 |
2,000 |
2,640 |
||
|
2022 |
03/15/2022 |
91,000 |
42,183 |
4,640 |
2,000 |
2,640 |
||
|
2021 |
03/19/2021 |
70,500 |
42,183 |
4,640 |
2,000 |
2,640 |
||
| Property Building Permit History | |||||||||||
|---|---|---|---|---|---|---|---|---|---|---|---|
| Issued | Permit # | Provided by | Bldg # | Description | Est Construction Cost | Status | |||||
| No Building Permit records returned. | |||||||||||
| Click button on building number to access detailed information: | ||||||
|---|---|---|---|---|---|---|
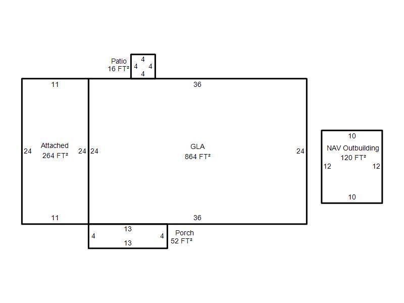
| Bldg # | Vacant/Improved Land | Bldg Description | Year Built | SqFt | # Stories | |
|
1 |
Improved |
Ranch 1 Story |
1956 |
864 |
1 Stories |
|