|
|
|
| Larry Stein Oklahoma County Assessor (405) 713-1200 - Public Access System |
|
|
|
|
|
|
| Real Property Display - Screen Produced 4/4/2026 3:02:27 AM | ||||
|---|---|---|---|---|
| Account: R154751615 | Type: Residential | Location: |
9400 NE 12TH ST |
|
| Building Name/Occupant: |
|
MIDWEST CITY |
||
| Owner Name 1: | WITTEN TERRY |
Parcel PIN#: |
2499-15-475-1615 |
|
| Owner Name 2: | WITTEN SHONNDA | 1/4 section #: |
2499 |
|
| Owner Name 3: | MCCARROLL DERYK | Parent Acct: |
|
|
| Billing Address: | 1204 LOFTIN DR | Tax District: |
|
|
| City, State, Zip | OKLAHOMA CITY, OK 73130-1222 | School System: |
Oklahoma City #89 |
|
|
Country: (If noted) |
Land Size: |
0.2531 Acres |
||
|
Land Value: 14,333 |
|
|||
|
Sect 25-T12N-R2W Qtr SW |
ASHFORD HGTS ADD
Block
004
Lot
008
|
|||
| Full Legal Description: ASHFORD HGTS ADD 004 008 |
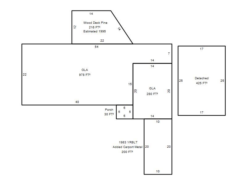
| Photo & Sketch (if available) | Comp Sales (ordered by relevancy) |
|
||||||||||||||||||
|
||||||||||||||||||||
| Value History (*The County Treasurer 405-713-1300 posts & collects actual tax amounts. Contact information HERE) | |||||||||||||
|---|---|---|---|---|---|---|---|---|---|---|---|---|---|
| Year | Market Value | Taxable Mkt Value | Gross Assessed | Exemption | Net Assessed | Millage | Est. Tax | Tax Savings | |||||
|
2026 |
118,000 |
51,519 |
5,666 |
0 |
5,666 |
114.34 |
$648 |
$836 |
|||||
|
2025 |
120,500 |
49,066 |
5,397 |
0 |
5,397 |
114.34 |
$617 |
$898 |
|||||
|
2024 |
95,000 |
46,730 |
5,139 |
1,000 |
4,139 |
116.11 |
$481 |
$733 |
|||||
|
2023 |
97,500 |
45,369 |
4,990 |
1,000 |
3,990 |
115.66 |
$462 |
$779 |
|||||
|
2022 |
73,000 |
44,048 |
4,845 |
1,000 |
3,845 |
110.02 |
$423 |
$460 |
|||||
| Property Account Status/Adjustments/Exemptions | ||
|---|---|---|
| Account # | Exemption Description | Amount |
|
R154751615 |
5% Capped Account |
0 |
| Property Deed Transaction History (Recorded in the County Clerk's Office) | |||||||
|---|---|---|---|---|---|---|---|
| Date | Type | Book | Page | Price | Grantor | Grantee | |
|
7/30/2024 |
|
Hmstd Off & |
$0 |
WITTEN TERRY T & JANET S |
WITTEN TERRY |
||
|
7/30/2024 |
|
Hmstd Off & |
$0 |
WITTEN TERRY |
WITTEN TERRY |
||
|
11/7/1996 |
|
Historical |
$15,000 |
DAVES EDNA MAE & CARL FRANKLIN |
WITTEN TERRY T & JANET S |
||
|
2/1/1987 |
|
Historical |
$0 |
LUEB EDNA MAE |
DAVES EDNA MAE & CARL FRANKLIN |
||
|
8/1/1985 |
|
Historical |
$0 |
|
LUEB EDNA MAE |
||
| Last Mailed Notice of Value (N.O.V.) Information/History | ||||||||
|---|---|---|---|---|---|---|---|---|
| Year | Date | Market Value | Taxable Market Value | Gross Assessed | Exemption | Net Assessed | ||
|
2026 |
02/23/2026 |
118,000 |
51,519 |
5,666 |
0 |
5,666 |
||
|
2025 |
02/14/2025 |
120,500 |
49,066 |
5,397 |
0 |
5,397 |
||
|
2024 |
02/13/2024 |
95,000 |
46,730 |
5,139 |
1,000 |
4,139 |
||
|
2023 |
02/14/2023 |
97,500 |
45,369 |
4,990 |
1,000 |
3,990 |
||
|
2022 |
03/15/2022 |
73,000 |
44,048 |
4,845 |
1,000 |
3,845 |
||
| Property Building Permit History | |||||||||||
|---|---|---|---|---|---|---|---|---|---|---|---|
| Issued | Permit # | Provided by | Bldg # | Description | Est Construction Cost | Status | |||||
| No Building Permit records returned. | |||||||||||
| Click button on building number to access detailed information: | ||||||
|---|---|---|---|---|---|---|
| Bldg # | Vacant/Improved Land | Bldg Description | Year Built | SqFt | # Stories | |
|
1 |
Improved |
Ranch 1 Story |
1956 |
1,258 |
1 Stories |
|