|
|
|
| Larry Stein Oklahoma County Assessor (405) 713-1200 - Public Access System |
|
|
|
|
|
|
| Real Property Display - Screen Produced 4/4/2026 3:01:02 AM | ||||
|---|---|---|---|---|
| Account: R154751855 | Type: Residential | Location: |
1116 MARYDALE AVE |
|
| Building Name/Occupant: |
|
MIDWEST CITY |
||
| Owner Name 1: | DRIGGERS JADE |
Parcel PIN#: |
2499-15-475-1855 |
|
| Owner Name 2: | 1/4 section #: |
2499 |
||
| Owner Name 3: | Parent Acct: |
|
||
| Billing Address: | 15905 KAYLY CT | Tax District: |
|
|
| City, State, Zip | EDMOND, OK 73013 | School System: |
Oklahoma City #89 |
|
|
Country: (If noted) |
Land Size: |
0.2617 Acres |
||
|
Land Value: 14,820 |
|
|||
|
Sect 25-T12N-R2W Qtr SW |
ASHFORD HGTS ADD
Block
005
Lot
008
|
|||
| Full Legal Description: ASHFORD HGTS ADD 005 008 |
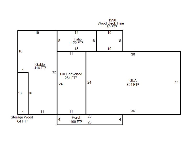
| Photo & Sketch (if available) | Comp Sales (ordered by relevancy) |
|
||||||||||||||||||
|
||||||||||||||||||||
| Value History (*The County Treasurer 405-713-1300 posts & collects actual tax amounts. Contact information HERE) | |||||||||||||
|---|---|---|---|---|---|---|---|---|---|---|---|---|---|
| Year | Market Value | Taxable Mkt Value | Gross Assessed | Exemption | Net Assessed | Millage | Est. Tax | Tax Savings | |||||
|
2026 |
116,500 |
62,825 |
6,910 |
0 |
6,910 |
114.34 |
$790 |
$675 |
|||||
|
2025 |
118,000 |
59,834 |
6,581 |
0 |
6,581 |
114.34 |
$753 |
$732 |
|||||
|
2024 |
92,500 |
56,985 |
6,267 |
0 |
6,267 |
116.11 |
$728 |
$454 |
|||||
|
2023 |
94,500 |
54,272 |
5,969 |
0 |
5,969 |
115.66 |
$690 |
$512 |
|||||
|
2022 |
78,000 |
51,688 |
5,684 |
0 |
5,684 |
110.02 |
$626 |
$318 |
|||||
| Property Account Status/Adjustments/Exemptions | ||||||
|---|---|---|---|---|---|---|
| Account # | Exemption Description | Amount | ||||
| No adjustment/exemption records returned. | ||||||
| Property Deed Transaction History (Recorded in the County Clerk's Office) | ||||||||||
|---|---|---|---|---|---|---|---|---|---|---|
| Date | Type | Book | Page | Price | Grantor | Grantee | ||||
|
9/13/2021 |
|
Deeds |
$0 |
ESTATE OF DRIGGERS CHARLES M & SUMRIT |
DRIGGERS JERRY J |
|||||
|
9/13/2021 |
|
Hmstd Off & |
$0 |
DRIGGERS CHARLES M & SUMRIT |
DRIGGERS JERRY J |
|||||
|
9/13/2021 |
|
Hmstd Off & |
$0 |
DRIGGERS JERRY J |
DRIGGERS JADE |
|||||
|
4/5/2006 |
|
Deeds |
$0 |
DRIGGERS CHARLES M |
DRIGGERS CHARLES M & SUMRIT |
|||||
|
1/13/2005 |
|
Deeds |
$57,000 |
EMRICH JAMES M & SANDRA K |
DRIGGERS CHARLES M |
|||||
| Last Mailed Notice of Value (N.O.V.) Information/History | ||||||||
|---|---|---|---|---|---|---|---|---|
| Year | Date | Market Value | Taxable Market Value | Gross Assessed | Exemption | Net Assessed | ||
|
2026 |
02/23/2026 |
116,500 |
62,825 |
6,910 |
0 |
6,910 |
||
|
2025 |
02/14/2025 |
118,000 |
59,834 |
6,581 |
0 |
6,581 |
||
|
2024 |
02/13/2024 |
92,500 |
56,985 |
6,267 |
0 |
6,267 |
||
|
2023 |
02/14/2023 |
94,500 |
54,272 |
5,969 |
0 |
5,969 |
||
|
2022 |
03/15/2022 |
78,000 |
51,688 |
5,684 |
0 |
5,684 |
||
| Property Building Permit History | |||||||||||
|---|---|---|---|---|---|---|---|---|---|---|---|
| Issued | Permit # | Provided by | Bldg # | Description | Est Construction Cost | Status | |||||
| No Building Permit records returned. | |||||||||||
| Click button on building number to access detailed information: | ||||||
|---|---|---|---|---|---|---|
| Bldg # | Vacant/Improved Land | Bldg Description | Year Built | SqFt | # Stories | |
|
1 |
Improved |
Ranch 1 Story |
1955 |
864 |
1 Stories |
|