|
|
|
| Larry Stein Oklahoma County Assessor (405) 713-1200 - Public Access System |
|
|
|
|
|
|
| Real Property Display - Screen Produced 4/8/2026 4:48:23 AM | ||||
|---|---|---|---|---|
| Account: R154401300 | Type: Residential | Location: |
9337 NE 16TH ST |
|
| Building Name/Occupant: |
|
MIDWEST CITY |
||
| Owner Name 1: | SCARLETT DAVID |
Parcel PIN#: |
2500-15-440-1300 |
|
| Owner Name 2: | 1/4 section #: |
2500 |
||
| Owner Name 3: | Parent Acct: |
|
||
| Billing Address: | 9337 NE 16TH ST | Tax District: |
|
|
| City, State, Zip | OKLAHOMA CITY, OK 73130-1111 | School System: |
Oklahoma City #89 |
|
|
Country: (If noted) |
Land Size: |
0.5100 Acres |
||
|
Land Value: 10,200 |
|
|||
|
Sect 25-T12N-R2W Qtr NW |
KANALYS 2ND NE 23RD ST
Block
005
Lot
029
|
|||
| Full Legal Description: KANALYS 2ND NE 23RD ST 005 029 |
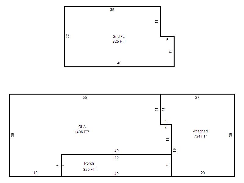
| Photo & Sketch (if available) | Comp Sales (ordered by relevancy) |
|
||||||||||||||||||
|
||||||||||||||||||||
| Value History (*The County Treasurer 405-713-1300 posts & collects actual tax amounts. Contact information HERE) | |||||||||||||
|---|---|---|---|---|---|---|---|---|---|---|---|---|---|
| Year | Market Value | Taxable Mkt Value | Gross Assessed | Exemption | Net Assessed | Millage | Est. Tax | Tax Savings | |||||
|
2026 |
169,000 |
168,525 |
18,537 |
0 |
18,537 |
114.34 |
$2,120 |
$6 |
|||||
|
2025 |
160,500 |
160,500 |
17,655 |
0 |
17,655 |
114.34 |
$2,019 |
$0 |
|||||
|
2024 |
134,500 |
90,894 |
9,998 |
0 |
9,998 |
116.11 |
$1,161 |
$557 |
|||||
|
2023 |
150,000 |
86,566 |
9,521 |
1,000 |
8,521 |
115.66 |
$986 |
$923 |
|||||
|
2022 |
101,500 |
84,045 |
9,244 |
1,000 |
8,244 |
110.02 |
$907 |
$321 |
|||||
| Property Account Status/Adjustments/Exemptions | ||
|---|---|---|
| Account # | Exemption Description | Amount |
|
R154401300 |
5% Capped Account |
0 |
| Property Deed Transaction History (Recorded in the County Clerk's Office) | |||||||
|---|---|---|---|---|---|---|---|
| Date | Type | Book | Page | Price | Grantor | Grantee | |
|
5/6/2024 |
|
Deeds |
$159,000 |
GREEN CHARLETTE MARIE & CRAIG EDWARD SR |
SCARLETT DAVID |
||
|
1/16/2024 |
|
Deeds |
$0 |
MOODY CHARLETTE MARIE |
GREEN CHARLETTE MARIE & CRAIG EDWARD SR |
||
|
10/7/2010 |
|
Deeds |
$92,500 |
FARMER CAROBETH REV TRUST |
MOODY CHARLETTE MARIE |
||
|
7/31/2008 |
|
Deeds |
$0 |
ELLIS CAROBETH |
FARMER CAROBETH REV TRUST |
||
|
11/11/1911 |
|
Historical |
$0 |
|
ELLIS CAROBETH |
||
| Last Mailed Notice of Value (N.O.V.) Information/History | ||||||||
|---|---|---|---|---|---|---|---|---|
| Year | Date | Market Value | Taxable Market Value | Gross Assessed | Exemption | Net Assessed | ||
|
2026 |
02/23/2026 |
169,000 |
168,525 |
18,537 |
0 |
18,537 |
||
|
2025 |
02/14/2025 |
160,500 |
160,500 |
17,655 |
0 |
17,655 |
||
|
2024 |
02/13/2024 |
134,500 |
90,894 |
9,998 |
0 |
9,998 |
||
|
2023 |
02/14/2023 |
150,000 |
86,566 |
9,521 |
1,000 |
8,521 |
||
|
2022 |
03/15/2022 |
101,500 |
84,045 |
9,244 |
1,000 |
8,244 |
||
| Property Building Permit History | |||||||||||
|---|---|---|---|---|---|---|---|---|---|---|---|
| Issued | Permit # | Provided by | Bldg # | Description | Est Construction Cost | Status | |||||
| No Building Permit records returned. | |||||||||||
| Click button on building number to access detailed information: | ||||||
|---|---|---|---|---|---|---|
| Bldg # | Vacant/Improved Land | Bldg Description | Year Built | SqFt | # Stories | |
|
1 |
Improved |
1½ Story Fin |
1965 |
2,231 |
1.5 Stories |
|