|
|
|
| Larry Stein Oklahoma County Assessor (405) 713-1200 - Public Access System |
|
|
|
|
|
|
| Real Property Display - Screen Produced 3/21/2026 11:18:45 AM | ||||
|---|---|---|---|---|
| Account: R144154535 | Type: Residential | Location: |
5621 S HIWASSEE RD |
|
| Building Name/Occupant: |
|
OKLAHOMA CITY |
||
| Owner Name 1: | LIKES RONALD |
Parcel PIN#: |
1282-14-415-4535 |
|
| Owner Name 2: | KALKBRENNER RUBY | 1/4 section #: |
1282 |
|
| Owner Name 3: | Parent Acct: |
|
||
| Billing Address: | 5621 S HIWASSEE RD | Tax District: |
|
|
| City, State, Zip | CHOCTAW, OK 73020-5618 | School System: |
Mid-Del #52 |
|
|
Country: (If noted) |
Land Size: |
4.6000 Acres |
||
|
Land Value: 117,358 |
|
|||
|
Sect 21-T11N-R1W Qtr SE |
UNPLTD PT SEC 21 11N 1W
Block
000
Lot
000
|
|||
| Full Legal Description: UNPLTD PT SEC 21 11N 1W 000 000 PT OF SEC 21 11N 1W N 1/2 OF NE4 OF SE4 OF SE4 EX A TR IN SW/C 121.95FT ON W 260.76FT ON NELY & 230.49FT ON S & EX A TRIN SE/C 60FT E&W BY 55.98FT N&S |
| Photo & Sketch (if available) | Comp Sales (ordered by relevancy) |
|
||||||||||||||||||
|
||||||||||||||||||||
| Value History (*The County Treasurer 405-713-1300 posts & collects actual tax amounts. Contact information HERE) | |||||||||||||
|---|---|---|---|---|---|---|---|---|---|---|---|---|---|
| Year | Market Value | Taxable Mkt Value | Gross Assessed | Exemption | Net Assessed | Millage | Est. Tax | Tax Savings | |||||
|
2025 |
181,500 |
49,120 |
5,403 |
5,403 |
0 |
126.46 |
$0 |
$2,525 |
|||||
|
2024 |
171,500 |
49,120 |
5,403 |
5,403 |
0 |
128.51 |
$0 |
$2,424 |
|||||
|
2023 |
163,000 |
49,120 |
5,403 |
5,403 |
0 |
122.94 |
$0 |
$2,204 |
|||||
|
2022 |
144,500 |
49,120 |
5,403 |
5,403 |
0 |
122.11 |
$0 |
$1,941 |
|||||
|
2021 |
121,000 |
49,120 |
5,403 |
5,403 |
0 |
124.74 |
$0 |
$1,660 |
|||||
| Property Account Status/Adjustments/Exemptions | ||
|---|---|---|
| Account # | Exemption Description | Amount |
|
R144154535 |
100% DAV Exemption |
100 |
|
R144154535 |
DAV Freeze Senior Valuation |
0 |
|
R144154535 |
DAV Homestead |
0 |
| Property Deed Transaction History (Recorded in the County Clerk's Office) | |||||||
|---|---|---|---|---|---|---|---|
| Date | Type | Book | Page | Price | Grantor | Grantee | |
|
7/1/1997 |
|
Historical |
$0 |
KALKBRENNER RUBY L |
LIKES RONALD |
||
|
7/1/1988 |
|
Historical |
$40,000 |
LEMASTER JOHN L & ANN B |
KALKBRENNER RUBY L |
||
|
11/11/1911 |
|
Historical |
$0 |
|
LEMASTER JOHN L & ANN B |
||
| Last Mailed Notice of Value (N.O.V.) Information/History | ||||||||
|---|---|---|---|---|---|---|---|---|
| Year | Date | Market Value | Taxable Market Value | Gross Assessed | Exemption | Net Assessed | ||
|
2026 |
02/06/2026 |
183,000 |
49,120 |
5,403 |
5,403 |
0 |
||
|
2025 |
01/31/2025 |
181,500 |
49,120 |
5,403 |
5,403 |
0 |
||
|
2024 |
01/22/2024 |
171,500 |
49,120 |
5,403 |
5,403 |
0 |
||
|
2023 |
01/23/2023 |
163,000 |
49,120 |
5,403 |
5,403 |
0 |
||
|
2022 |
02/22/2022 |
144,500 |
49,120 |
5,403 |
5,403 |
0 |
||
| Property Building Permit History | ||||||
|---|---|---|---|---|---|---|
| Issued | Permit # | Provided by | Bldg # | Description | Est Construction Cost | Status |
|
3/2/2000 |
10239176 |
OKLAHOMA CITY |
1 |
Other |
1,965 |
Inactive |
| Click button on building number to access detailed information: | ||||||
|---|---|---|---|---|---|---|
| Bldg # | Vacant/Improved Land | Bldg Description | Year Built | SqFt | # Stories | |
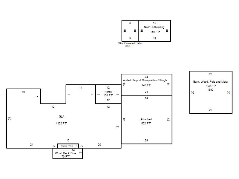
|
1 |
Improved |
Ranch 1 Story |
1967 |
1,352 |
1 Stories |
|