|
|
|
| Larry Stein Oklahoma County Assessor (405) 713-1200 - Public Access System |
|
|
|
|
|
|
| Real Property Display - Screen Produced 3/24/2026 8:08:32 AM | ||||
|---|---|---|---|---|
| Account: R020102185 | Type: Residential | Location: |
3212 NE 16TH ST |
|
| Building Name/Occupant: |
|
OKLAHOMA CITY |
||
| Owner Name 1: | ABAB INC |
Parcel PIN#: |
2519-02-010-2185 |
|
| Owner Name 2: | 1/4 section #: |
2519 |
||
| Owner Name 3: | Parent Acct: |
|
||
| Billing Address: | 7008 NW 16TH ST APT 1105 | Tax District: |
|
|
| City, State, Zip | OKLAHOMA CITY, OK 73127-3322 | School System: |
Oklahoma City #89 |
|
|
Country: (If noted) |
Land Size: |
0.1515 Acres |
||
|
Land Value: 10,890 |
|
|||
|
Sect 30-T12N-R2W Qtr SW |
GARDEN OAKS
Block
008
Lot
006
|
|||
| Full Legal Description: GARDEN OAKS 008 006 |
| Photo & Sketch (if available) | Comp Sales (ordered by relevancy) |
|
||||||||||||||||||
|
||||||||||||||||||||
| Value History (*The County Treasurer 405-713-1300 posts & collects actual tax amounts. Contact information HERE) | |||||||||||||
|---|---|---|---|---|---|---|---|---|---|---|---|---|---|
| Year | Market Value | Taxable Mkt Value | Gross Assessed | Exemption | Net Assessed | Millage | Est. Tax | Tax Savings | |||||
|
2025 |
60,500 |
28,809 |
3,168 |
0 |
3,168 |
122.90 |
$389 |
$428 |
|||||
|
2024 |
52,000 |
27,438 |
3,017 |
0 |
3,017 |
123.89 |
$374 |
$335 |
|||||
|
2023 |
48,500 |
26,132 |
2,873 |
0 |
2,873 |
122.82 |
$353 |
$302 |
|||||
|
2022 |
40,000 |
24,888 |
2,737 |
0 |
2,737 |
117.63 |
$322 |
$196 |
|||||
|
2021 |
32,500 |
23,703 |
2,607 |
0 |
2,607 |
117.70 |
$307 |
$114 |
|||||
| Property Account Status/Adjustments/Exemptions | ||
|---|---|---|
| Account # | Exemption Description | Amount |
|
R020102185 |
5% Capped Account |
0 |
| Property Deed Transaction History (Recorded in the County Clerk's Office) | |||||||
|---|---|---|---|---|---|---|---|
| Date | Type | Book | Page | Price | Grantor | Grantee | |
|
11/3/2010 |
|
Hmstd Off & |
$0 |
ASAA INC |
ABAB INC |
||
|
3/24/2010 |
|
Other |
$0 |
WILLIAMSON CONNIE COOPER CALLIE |
ASAA INC |
||
|
11/1/1994 |
|
Historical |
$0 |
BRAGER CALLIE |
WILLIAMSON CONNIE |
||
|
10/17/1994 |
|
Historical |
$0 |
BRAGER JAMES & CALLIE |
BRAGER CALLIE |
||
|
11/11/1911 |
|
Historical |
$0 |
|
BRAGER JAMES & CALLIE |
||
| Last Mailed Notice of Value (N.O.V.) Information/History | ||||||||
|---|---|---|---|---|---|---|---|---|
| Year | Date | Market Value | Taxable Market Value | Gross Assessed | Exemption | Net Assessed | ||
|
2026 |
02/23/2026 |
61,500 |
30,249 |
3,326 |
0 |
3,326 |
||
|
2025 |
02/14/2025 |
60,500 |
28,809 |
3,168 |
0 |
3,168 |
||
|
2024 |
02/13/2024 |
52,000 |
27,438 |
3,017 |
0 |
3,017 |
||
|
2023 |
02/14/2023 |
48,500 |
26,132 |
2,873 |
0 |
2,873 |
||
|
2022 |
03/15/2022 |
40,000 |
24,888 |
2,737 |
0 |
2,737 |
||
| Property Building Permit History | |||||||||||
|---|---|---|---|---|---|---|---|---|---|---|---|
| Issued | Permit # | Provided by | Bldg # | Description | Est Construction Cost | Status | |||||
| No Building Permit records returned. | |||||||||||
| Click button on building number to access detailed information: | ||||||
|---|---|---|---|---|---|---|
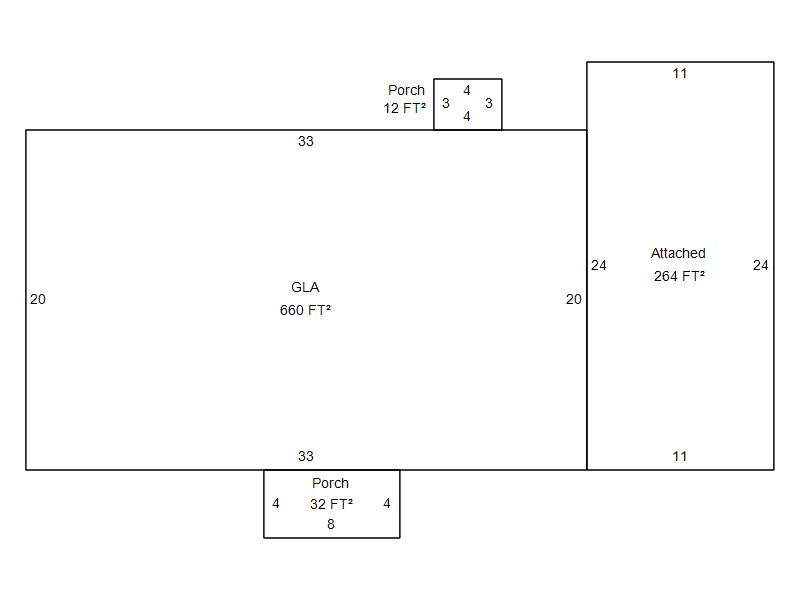
| Bldg # | Vacant/Improved Land | Bldg Description | Year Built | SqFt | # Stories | |
|
1 |
Improved |
Ranch 1 Story |
1953 |
660 |
1 Stories |
|