|
|
|
| Larry Stein Oklahoma County Assessor (405) 713-1200 - Public Access System |
|
|
|
|
|
|
| Real Property Display - Screen Produced 3/20/2026 4:57:30 AM | ||||
|---|---|---|---|---|
| Account: R020102485 | Type: Residential | Location: |
3332 NE 16TH ST |
|
| Building Name/Occupant: |
|
OKLAHOMA CITY |
||
| Owner Name 1: | JAMES G L & KATE LEE |
Parcel PIN#: |
2519-02-010-2485 |
|
| Owner Name 2: | JAMES KERWIN L | 1/4 section #: |
2519 |
|
| Owner Name 3: | JAMES GOREE L II | Parent Acct: |
|
|
| Billing Address: | 3332 NE 16TH ST | Tax District: |
|
|
| City, State, Zip | OKLAHOMA CITY, OK 73117-6236 | School System: |
Oklahoma City #89 |
|
|
Country: (If noted) |
Land Size: |
0.1653 Acres |
||
|
Land Value: 11,880 |
|
|||
|
Sect 30-T12N-R2W Qtr SW |
GARDEN OAKS
Block
009
Lot
003
|
|||
| Full Legal Description: GARDEN OAKS 009 003 |
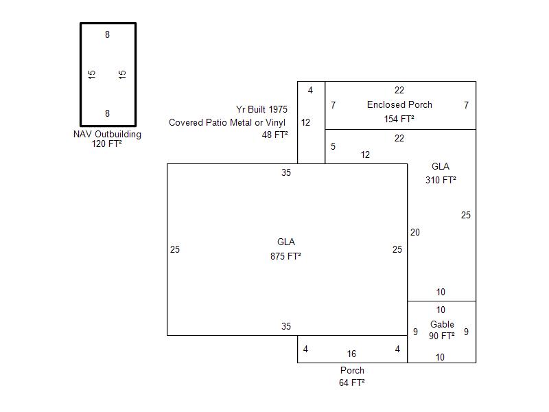
| Photo & Sketch (if available) | Comp Sales (ordered by relevancy) |
|
||||||||||||||||||
|
||||||||||||||||||||
| Value History (*The County Treasurer 405-713-1300 posts & collects actual tax amounts. Contact information HERE) | |||||||||||||
|---|---|---|---|---|---|---|---|---|---|---|---|---|---|
| Year | Market Value | Taxable Mkt Value | Gross Assessed | Exemption | Net Assessed | Millage | Est. Tax | Tax Savings | |||||
|
2025 |
102,000 |
27,660 |
3,042 |
1,000 |
2,042 |
122.90 |
$251 |
$1,128 |
|||||
|
2024 |
88,500 |
26,855 |
2,954 |
1,000 |
1,954 |
123.89 |
$242 |
$964 |
|||||
|
2023 |
82,000 |
26,073 |
2,867 |
1,000 |
1,867 |
122.82 |
$229 |
$878 |
|||||
|
2022 |
69,000 |
25,314 |
2,783 |
1,000 |
1,783 |
117.63 |
$210 |
$683 |
|||||
|
2021 |
56,000 |
24,577 |
2,702 |
1,000 |
1,702 |
117.70 |
$200 |
$525 |
|||||
| Property Account Status/Adjustments/Exemptions | ||
|---|---|---|
| Account # | Exemption Description | Amount |
|
R020102485 |
3% Cap Homestead |
0 |
|
R020102485 |
Homestead |
1,000 |
| Property Deed Transaction History (Recorded in the County Clerk's Office) | |||||||
|---|---|---|---|---|---|---|---|
| Date | Type | Book | Page | Price | Grantor | Grantee | |
|
3/15/2001 |
|
Deeds |
$0 |
JAMES G L & KATE LEE |
JAMES G L & KATE LEE |
||
|
11/11/1911 |
|
Historical |
$0 |
|
JAMES G L & KATE LEE |
||
| Last Mailed Notice of Value (N.O.V.) Information/History | ||||||||
|---|---|---|---|---|---|---|---|---|
| Year | Date | Market Value | Taxable Market Value | Gross Assessed | Exemption | Net Assessed | ||
|
2026 |
02/23/2026 |
100,500 |
28,489 |
3,133 |
1,000 |
2,133 |
||
|
2025 |
02/14/2025 |
102,000 |
27,660 |
3,042 |
1,000 |
2,042 |
||
|
2024 |
02/13/2024 |
88,500 |
26,855 |
2,954 |
1,000 |
1,954 |
||
|
2023 |
02/14/2023 |
82,000 |
26,073 |
2,867 |
1,000 |
1,867 |
||
|
2022 |
03/15/2022 |
69,000 |
25,314 |
2,783 |
1,000 |
1,783 |
||
| Property Building Permit History | |||||||||||
|---|---|---|---|---|---|---|---|---|---|---|---|
| Issued | Permit # | Provided by | Bldg # | Description | Est Construction Cost | Status | |||||
| No Building Permit records returned. | |||||||||||
| Click button on building number to access detailed information: | ||||||
|---|---|---|---|---|---|---|
| Bldg # | Vacant/Improved Land | Bldg Description | Year Built | SqFt | # Stories | |
|
1 |
Improved |
Ranch 1 Story |
1955 |
1,185 |
1 Stories |
|