|
|
|
| Larry Stein Oklahoma County Assessor (405) 713-1200 - Public Access System |
|
|
|
|
|
|
| Real Property Display - Screen Produced 3/20/2026 8:07:52 AM | ||||
|---|---|---|---|---|
| Account: R020102555 | Type: Residential | Location: |
3304 NE 16TH ST |
|
| Building Name/Occupant: |
|
OKLAHOMA CITY |
||
| Owner Name 1: | STINGRAY PROPERTIES LLC |
Parcel PIN#: |
2519-02-010-2555 |
|
| Owner Name 2: | 1/4 section #: |
2519 |
||
| Owner Name 3: | Parent Acct: |
|
||
| Billing Address: | PO BOX 30434 | Tax District: |
|
|
| City, State, Zip | MIDWEST CITY, OK 73140-3434 | School System: |
Oklahoma City #89 |
|
|
Country: (If noted) |
Land Size: |
0.1515 Acres |
||
|
Land Value: 10,890 |
|
|||
|
Sect 30-T12N-R2W Qtr SW |
GARDEN OAKS
Block
009
Lot
010
|
|||
| Full Legal Description: GARDEN OAKS 009 010 |
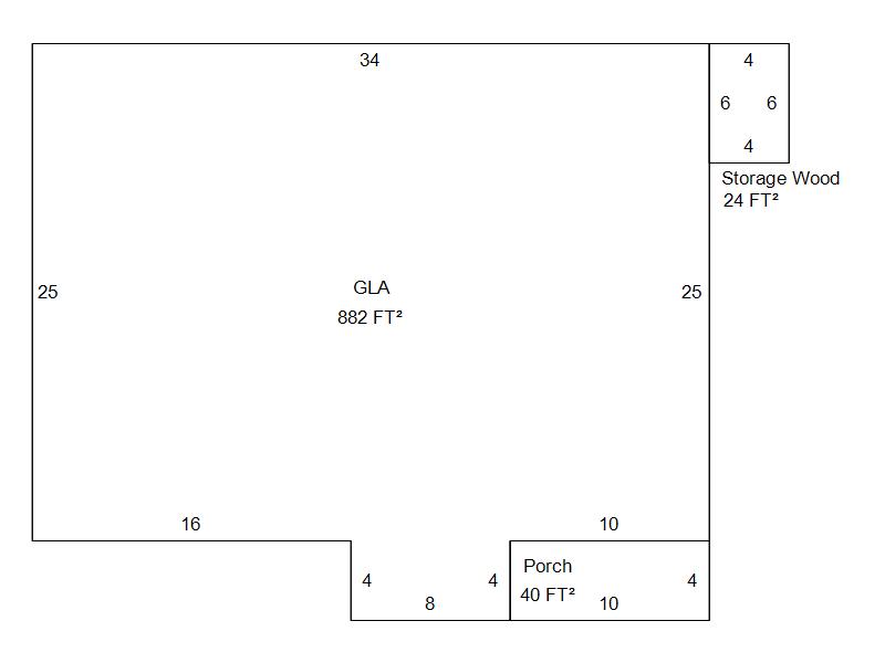
| Photo & Sketch (if available) | Comp Sales (ordered by relevancy) |
|
||||||||||||||||||
|
||||||||||||||||||||
| Value History (*The County Treasurer 405-713-1300 posts & collects actual tax amounts. Contact information HERE) | |||||||||||||
|---|---|---|---|---|---|---|---|---|---|---|---|---|---|
| Year | Market Value | Taxable Mkt Value | Gross Assessed | Exemption | Net Assessed | Millage | Est. Tax | Tax Savings | |||||
|
2025 |
72,000 |
35,176 |
3,869 |
0 |
3,869 |
122.90 |
$476 |
$498 |
|||||
|
2024 |
62,000 |
33,501 |
3,684 |
0 |
3,684 |
123.89 |
$457 |
$388 |
|||||
|
2023 |
57,500 |
31,906 |
3,509 |
0 |
3,509 |
122.82 |
$431 |
$346 |
|||||
|
2022 |
48,000 |
30,387 |
3,341 |
0 |
3,341 |
117.63 |
$393 |
$228 |
|||||
|
2021 |
39,000 |
28,940 |
3,182 |
0 |
3,182 |
117.70 |
$375 |
$130 |
|||||
| Property Account Status/Adjustments/Exemptions | ||
|---|---|---|
| Account # | Exemption Description | Amount |
|
R020102555 |
5% Capped Account |
0 |
| Property Deed Transaction History (Recorded in the County Clerk's Office) | |||||||
|---|---|---|---|---|---|---|---|
| Date | Type | Book | Page | Price | Grantor | Grantee | |
|
6/9/2016 |
|
Deeds |
$23,000 |
DOUGLAS ROSETTA J DOUGLAS VERNON L |
STINGRAY PROPERTIES LLC |
||
|
1/8/1971 |
|
Hmstd Off & |
$0 |
DOUGLAS WARDRESS V C/O ROSETTA CULPEPPER |
DOUGLAS ROSETTA J DOUGLAS VERNON L |
||
|
11/11/1911 |
|
Historical |
$0 |
|
DOUGLAS WARDRESS V |
||
| Last Mailed Notice of Value (N.O.V.) Information/History | ||||||||
|---|---|---|---|---|---|---|---|---|
| Year | Date | Market Value | Taxable Market Value | Gross Assessed | Exemption | Net Assessed | ||
|
2026 |
02/23/2026 |
72,500 |
36,934 |
4,062 |
0 |
4,062 |
||
|
2025 |
02/14/2025 |
72,000 |
35,176 |
3,869 |
0 |
3,869 |
||
|
2024 |
02/13/2024 |
62,000 |
33,501 |
3,684 |
0 |
3,684 |
||
|
2023 |
02/14/2023 |
57,500 |
31,906 |
3,509 |
0 |
3,509 |
||
|
2022 |
03/15/2022 |
48,000 |
30,387 |
3,341 |
0 |
3,341 |
||
| Property Building Permit History | |||||||||||
|---|---|---|---|---|---|---|---|---|---|---|---|
| Issued | Permit # | Provided by | Bldg # | Description | Est Construction Cost | Status | |||||
| No Building Permit records returned. | |||||||||||
| Click button on building number to access detailed information: | ||||||
|---|---|---|---|---|---|---|
| Bldg # | Vacant/Improved Land | Bldg Description | Year Built | SqFt | # Stories | |
|
1 |
Improved |
Ranch 1 Story |
1955 |
882 |
1 Stories |
|