|
|
|
| Larry Stein Oklahoma County Assessor (405) 713-1200 - Public Access System |
|
|
|
|
|
|
| Real Property Display - Screen Produced 3/18/2026 3:24:10 PM | ||||
|---|---|---|---|---|
| Account: R020121475 | Type: Residential | Location: |
3336 NE 12TH ST |
|
| Building Name/Occupant: |
|
OKLAHOMA CITY |
||
| Owner Name 1: | JOSEPH PATRICIA |
Parcel PIN#: |
2519-02-012-1475 |
|
| Owner Name 2: | JAMES DEBORA | 1/4 section #: |
2519 |
|
| Owner Name 3: | Parent Acct: |
|
||
| Billing Address: | 708 NW 113TH ST | Tax District: |
|
|
| City, State, Zip | OKLAHOMA CITY, OK 73114-6811 | School System: |
Oklahoma City #89 |
|
|
Country: (If noted) |
Land Size: |
0.1492 Acres |
||
|
Land Value: 10,725 |
|
|||
|
Sect 30-T12N-R2W Qtr SW |
GARDEN OAKS 2ND
Block
004
Lot
005
|
|||
| Full Legal Description: GARDEN OAKS 2ND 004 005 |
| Photo & Sketch (if available) | Comp Sales (ordered by relevancy) |
|
||||||||||||||||||
|
||||||||||||||||||||
| Value History (*The County Treasurer 405-713-1300 posts & collects actual tax amounts. Contact information HERE) | |||||||||||||
|---|---|---|---|---|---|---|---|---|---|---|---|---|---|
| Year | Market Value | Taxable Mkt Value | Gross Assessed | Exemption | Net Assessed | Millage | Est. Tax | Tax Savings | |||||
|
2025 |
62,500 |
10,284 |
1,131 |
1,131 |
0 |
122.90 |
$0 |
$845 |
|||||
|
2024 |
59,500 |
10,284 |
1,131 |
1,131 |
0 |
123.89 |
$0 |
$811 |
|||||
|
2023 |
51,000 |
10,284 |
1,131 |
1,131 |
0 |
122.82 |
$0 |
$689 |
|||||
|
2022 |
42,000 |
10,284 |
1,131 |
1,131 |
0 |
117.63 |
$0 |
$543 |
|||||
|
2021 |
33,000 |
10,284 |
1,131 |
1,131 |
0 |
117.70 |
$0 |
$427 |
|||||
| Property Account Status/Adjustments/Exemptions | ||
|---|---|---|
| Account # | Exemption Description | Amount |
|
R020121475 |
5% Capped Account |
0 |
| Property Deed Transaction History (Recorded in the County Clerk's Office) | |||||||
|---|---|---|---|---|---|---|---|
| Date | Type | Book | Page | Price | Grantor | Grantee | |
|
4/1/2025 |
|
Hmstd Off & |
$0 |
HATHORN BETTY J |
JOSEPH PATRICIA |
||
|
10/31/1995 |
|
Historical |
$0 |
JAMES RICHARD M & BETTY J |
HATHORN BETTY J |
||
|
11/11/1911 |
|
Historical |
$0 |
|
JAMES RICHARD M & BETTY J |
||
| Last Mailed Notice of Value (N.O.V.) Information/History | ||||||||
|---|---|---|---|---|---|---|---|---|
| Year | Date | Market Value | Taxable Market Value | Gross Assessed | Exemption | Net Assessed | ||
|
2026 |
02/23/2026 |
62,000 |
10,798 |
1,187 |
0 |
1,187 |
||
|
2025 |
02/14/2025 |
62,500 |
10,284 |
1,131 |
1,131 |
0 |
||
|
2024 |
02/13/2024 |
59,500 |
10,284 |
1,131 |
1,131 |
0 |
||
|
2023 |
02/14/2023 |
51,000 |
10,284 |
1,131 |
1,131 |
0 |
||
|
2022 |
03/15/2022 |
42,000 |
10,284 |
1,131 |
1,131 |
0 |
||
| Property Building Permit History | |||||||||||
|---|---|---|---|---|---|---|---|---|---|---|---|
| Issued | Permit # | Provided by | Bldg # | Description | Est Construction Cost | Status | |||||
| No Building Permit records returned. | |||||||||||
| Click button on building number to access detailed information: | ||||||
|---|---|---|---|---|---|---|
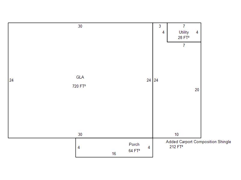
| Bldg # | Vacant/Improved Land | Bldg Description | Year Built | SqFt | # Stories | |
|
1 |
Improved |
Ranch 1 Story |
1956 |
720 |
1 Stories |
|