|
|
|
| Larry Stein Oklahoma County Assessor (405) 713-1200 - Public Access System |
|
|
|
|
|
|
| Real Property Display - Screen Produced 3/18/2026 3:25:25 PM | ||||
|---|---|---|---|---|
| Account: R020121635 | Type: Residential | Location: |
3200 NE 12TH ST |
|
| Building Name/Occupant: |
|
OKLAHOMA CITY |
||
| Owner Name 1: | RHONE DEBORAH A |
Parcel PIN#: |
2519-02-012-1635 |
|
| Owner Name 2: | LARKINS JAMEL DEWAYNE | 1/4 section #: |
2519 |
|
| Owner Name 3: | Parent Acct: |
|
||
| Billing Address: | 3200 NE 12TH ST | Tax District: |
|
|
| City, State, Zip | OKLAHOMA CITY, OK 73117-6263 | School System: |
Oklahoma City #89 |
|
|
Country: (If noted) |
Land Size: |
0.1463 Acres |
||
|
Land Value: 10,519 |
|
|||
|
Sect 30-T12N-R2W Qtr SW |
GARDEN OAKS 2ND
Block
004
Lot
021
|
|||
| Full Legal Description: GARDEN OAKS 2ND 004 021 |
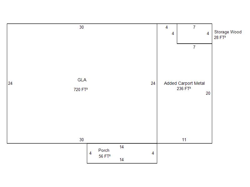
| Photo & Sketch (if available) | Comp Sales (ordered by relevancy) |
|
||||||||||||||||||
|
||||||||||||||||||||
| Value History (*The County Treasurer 405-713-1300 posts & collects actual tax amounts. Contact information HERE) | |||||||||||||
|---|---|---|---|---|---|---|---|---|---|---|---|---|---|
| Year | Market Value | Taxable Mkt Value | Gross Assessed | Exemption | Net Assessed | Millage | Est. Tax | Tax Savings | |||||
|
2025 |
61,500 |
7,531 |
828 |
0 |
828 |
122.90 |
$102 |
$730 |
|||||
|
2024 |
58,500 |
7,173 |
788 |
0 |
788 |
123.89 |
$98 |
$699 |
|||||
|
2023 |
50,000 |
6,832 |
750 |
0 |
750 |
122.82 |
$92 |
$583 |
|||||
|
2022 |
41,500 |
6,507 |
715 |
0 |
715 |
117.63 |
$84 |
$453 |
|||||
|
2021 |
32,000 |
6,198 |
681 |
0 |
681 |
117.70 |
$80 |
$334 |
|||||
| Property Account Status/Adjustments/Exemptions | ||
|---|---|---|
| Account # | Exemption Description | Amount |
|
R020121635 |
5% Capped Account |
0 |
| Property Deed Transaction History (Recorded in the County Clerk's Office) | |||||||
|---|---|---|---|---|---|---|---|
| Date | Type | Book | Page | Price | Grantor | Grantee | |
|
10/18/2018 |
|
Deeds |
$0 |
LARKINS AMANDA L |
RHONE DEBORAH A |
||
|
10/25/2011 |
|
Deeds |
$0 |
LARKINS AMANDA L |
LARKINS AMANDA L |
||
|
2/1/1980 |
|
Historical |
$0 |
|
LARKINS AMANDA L |
||
| Last Mailed Notice of Value (N.O.V.) Information/History | ||||||||
|---|---|---|---|---|---|---|---|---|
| Year | Date | Market Value | Taxable Market Value | Gross Assessed | Exemption | Net Assessed | ||
|
2026 |
02/23/2026 |
62,000 |
7,907 |
869 |
0 |
869 |
||
|
2025 |
02/14/2025 |
61,500 |
7,531 |
828 |
0 |
828 |
||
|
2024 |
02/13/2024 |
58,500 |
7,173 |
788 |
0 |
788 |
||
|
2023 |
02/14/2023 |
50,000 |
6,832 |
750 |
0 |
750 |
||
|
2022 |
03/15/2022 |
41,500 |
6,507 |
715 |
0 |
715 |
||
| Property Building Permit History | |||||||||||
|---|---|---|---|---|---|---|---|---|---|---|---|
| Issued | Permit # | Provided by | Bldg # | Description | Est Construction Cost | Status | |||||
| No Building Permit records returned. | |||||||||||
| Click button on building number to access detailed information: | ||||||
|---|---|---|---|---|---|---|
| Bldg # | Vacant/Improved Land | Bldg Description | Year Built | SqFt | # Stories | |
|
1 |
Improved |
Ranch 1 Story |
1955 |
720 |
1 Stories |
|