|
|
|
| Larry Stein Oklahoma County Assessor (405) 713-1200 - Public Access System |
|
|
|
|
|
|
| Real Property Display - Screen Produced 3/18/2026 10:15:58 AM | ||||
|---|---|---|---|---|
| Account: R131636750 | Type: Residential | Location: |
3038 NE 19TH ST |
|
| Building Name/Occupant: |
|
OKLAHOMA CITY |
||
| Owner Name 1: | MCCARRELL ANTHONY |
Parcel PIN#: |
2520-13-163-6750 |
|
| Owner Name 2: | 1/4 section #: |
2520 |
||
| Owner Name 3: | Parent Acct: |
|
||
| Billing Address: | 3038 NE 19TH ST | Tax District: |
|
|
| City, State, Zip | OKLAHOMA CITY, OK 73121-2810 | School System: |
Oklahoma City #89 |
|
|
Country: (If noted) |
Land Size: |
0.4649 Acres |
||
|
Land Value: 30,375 |
|
|||
|
Sect 30-T12N-R2W Qtr NW |
DYKINS HEIGHTS ADDITION
Block
011
Lot
000
|
|||
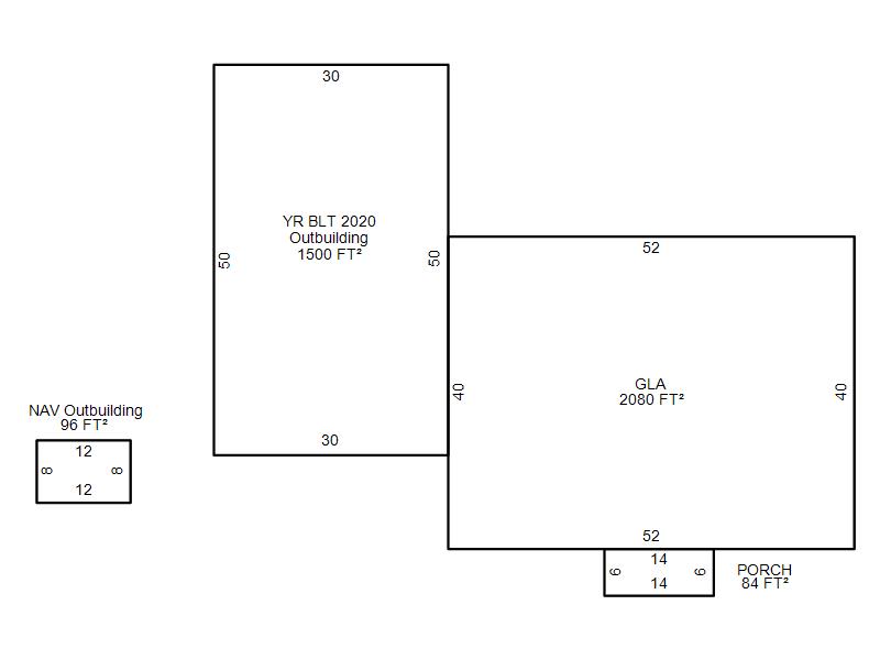
| Full Legal Description: DYKINS HEIGHTS ADDITION BLK 011 LOTS 20 THRU 25 |
| Photo & Sketch (if available) | Comp Sales (ordered by relevancy) |
|
||||||||||||||||||
|
||||||||||||||||||||
| Value History (*The County Treasurer 405-713-1300 posts & collects actual tax amounts. Contact information HERE) | |||||||||||||
|---|---|---|---|---|---|---|---|---|---|---|---|---|---|
| Year | Market Value | Taxable Mkt Value | Gross Assessed | Exemption | Net Assessed | Millage | Est. Tax | Tax Savings | |||||
|
2025 |
249,000 |
220,880 |
24,295 |
0 |
24,295 |
122.90 |
$2,986 |
$380 |
|||||
|
2024 |
240,500 |
210,362 |
23,138 |
0 |
23,138 |
123.89 |
$2,867 |
$411 |
|||||
|
2023 |
210,000 |
200,345 |
22,037 |
0 |
22,037 |
122.82 |
$2,707 |
$130 |
|||||
|
2022 |
29,641 |
29,641 |
3,260 |
0 |
3,260 |
117.63 |
$384 |
$0 |
|||||
|
2021 |
30,293 |
30,293 |
3,332 |
0 |
3,332 |
117.70 |
$392 |
$0 |
|||||
| Property Account Status/Adjustments/Exemptions | ||
|---|---|---|
| Account # | Exemption Description | Amount |
|
R131636750 |
5% Capped Account |
0 |
| Property Deed Transaction History (Recorded in the County Clerk's Office) | |||||||
|---|---|---|---|---|---|---|---|
| Date | Type | Book | Page | Price | Grantor | Grantee | |
|
5/1/2014 |
|
Deeds |
$22,000 |
HOME EQUITIES LTD PARTNERSHIP III |
MCCARRELL ANTHONY |
||
|
6/15/1994 |
|
Historical |
$0 |
ROGERS CYNTHIA LYNN |
HOME EQUITIES LTD |
||
|
10/6/1989 |
|
Historical |
$0 |
EVANS HENRY J |
ROGERS CYNTHIA LYNN |
||
|
1/9/1989 |
|
Historical |
$0 |
EVANS HENRY J |
EVANS HENRY J |
||
|
12/1/1974 |
|
Historical |
$0 |
|
EVANS HENRY J |
||
| Last Mailed Notice of Value (N.O.V.) Information/History | ||||||||
|---|---|---|---|---|---|---|---|---|
| Year | Date | Market Value | Taxable Market Value | Gross Assessed | Exemption | Net Assessed | ||
|
2026 |
02/23/2026 |
256,000 |
231,924 |
25,510 |
0 |
25,510 |
||
|
2025 |
02/14/2025 |
249,000 |
220,880 |
24,295 |
0 |
24,295 |
||
|
2024 |
02/13/2024 |
240,500 |
210,362 |
23,138 |
0 |
23,138 |
||
|
2023 |
03/02/2023 |
210,000 |
200,345 |
22,037 |
0 |
22,037 |
||
|
2021 |
03/19/2021 |
30,293 |
30,293 |
3,332 |
0 |
3,332 |
||
| Property Building Permit History | ||||||
|---|---|---|---|---|---|---|
| Issued | Permit # | Provided by | Bldg # | Description | Est Construction Cost | Status |
|
1/27/2021 |
|
|
|
Fire Remodel |
|
Inactive |
|
12/8/2020 |
20076421000 |
|
|
Burn - Trip |
44,000 |
Inactive |
|
2/28/2003 |
10229275 |
OKLAHOMA CITY |
|
Burn - Trip |
2,500 |
Inactive |
|
3/12/1993 |
10229274 |
OKLAHOMA CITY |
|
Demolish |
0 |
Inactive |
| Click button on building number to access detailed information: | ||||||
|---|---|---|---|---|---|---|
| Bldg # | Vacant/Improved Land | Bldg Description | Year Built | SqFt | # Stories | |
|
1 |
Improved |
Ranch 1 Story |
2020 |
2,080 |
1 Stories |
|