|
|
|
| Larry Stein Oklahoma County Assessor (405) 713-1200 - Public Access System |
|
|
|
|
|
|
| Real Property Display - Screen Produced 4/3/2026 10:23:58 PM | ||||
|---|---|---|---|---|
| Account: R151771320 | Type: Residential | Location: |
3312 N MEADOWOOD DR |
|
| Building Name/Occupant: |
|
MIDWEST CITY |
||
| Owner Name 1: | WEAVER VINCENT |
Parcel PIN#: |
2531-15-177-1320 |
|
| Owner Name 2: | 1/4 section #: |
2531 |
||
| Owner Name 3: | Parent Acct: |
|
||
| Billing Address: | 3312 MEADOWOOD DR | Tax District: |
|
|
| City, State, Zip | MIDWEST CITY, OK 73110 | School System: |
Mid-Del #52 |
|
|
Country: (If noted) |
Land Size: |
0.1901 Acres |
||
|
Land Value: 38,916 |
|
|||
|
Sect 33-T12N-R2W Qtr SW |
MEADOWOOD FIFTH
Block
004
Lot
004
|
|||
| Full Legal Description: MEADOWOOD FIFTH 004 004 |
| Photo & Sketch (if available) | Comp Sales (ordered by relevancy) |
|
||||||||||||||||||
|
||||||||||||||||||||
| Value History (*The County Treasurer 405-713-1300 posts & collects actual tax amounts. Contact information HERE) | |||||||||||||
|---|---|---|---|---|---|---|---|---|---|---|---|---|---|
| Year | Market Value | Taxable Mkt Value | Gross Assessed | Exemption | Net Assessed | Millage | Est. Tax | Tax Savings | |||||
|
2026 |
222,000 |
169,520 |
18,646 |
0 |
18,646 |
119.58 |
$2,230 |
$690 |
|||||
|
2025 |
229,500 |
161,448 |
17,758 |
0 |
17,758 |
119.58 |
$2,124 |
$895 |
|||||
|
2024 |
229,000 |
153,760 |
16,913 |
0 |
16,913 |
122.51 |
$2,072 |
$1,014 |
|||||
|
2023 |
217,500 |
146,439 |
16,108 |
0 |
16,108 |
117.71 |
$1,896 |
$920 |
|||||
|
2022 |
182,000 |
139,466 |
15,340 |
0 |
15,340 |
116.64 |
$1,789 |
$546 |
|||||
| Property Account Status/Adjustments/Exemptions | ||
|---|---|---|
| Account # | Exemption Description | Amount |
|
R151771320 |
5% Capped Account |
0 |
| Property Deed Transaction History (Recorded in the County Clerk's Office) | ||||||||||
|---|---|---|---|---|---|---|---|---|---|---|
| Date | Type | Book | Page | Price | Grantor | Grantee | ||||
|
1/12/2018 |
|
Deeds |
$118,000 |
HENCERLING PAMA JAN SUC TRS |
WEAVER VINCENT |
|||||
|
8/21/2016 |
|
Hmstd Off & |
$0 |
FLOYD NOLA TRS FLOYD NOLA REV TRUST |
HENCERLING PAMA JAN SUC TRS |
|||||
|
6/2/2015 |
|
Deeds |
$0 |
FLOYD NOLA TRS & REV TRUST TOTH FRANKIE M TRS |
FLOYD NOLA TRS TOTH FRANKIE M REV TRUST |
|||||
|
6/2/2015 |
|
Deeds |
$0 |
FLOYD NOLA TRS TOTH FRANKIE M REV TRUST |
FLOYD NOLA TRS FLOYD NOLA REV TRUST |
|||||
|
1/16/1996 |
|
Historical |
$0 |
FLOYD NOLA |
FLOYD NOLA TRS & REV TRUST |
|||||
| Last Mailed Notice of Value (N.O.V.) Information/History | ||||||||
|---|---|---|---|---|---|---|---|---|
| Year | Date | Market Value | Taxable Market Value | Gross Assessed | Exemption | Net Assessed | ||
|
2026 |
02/23/2026 |
222,000 |
169,520 |
18,646 |
0 |
18,646 |
||
|
2025 |
02/14/2025 |
229,500 |
161,448 |
17,758 |
0 |
17,758 |
||
|
2024 |
02/13/2024 |
229,000 |
153,760 |
16,913 |
0 |
16,913 |
||
|
2023 |
02/14/2023 |
217,500 |
146,439 |
16,108 |
0 |
16,108 |
||
|
2022 |
03/15/2022 |
182,000 |
139,466 |
15,340 |
0 |
15,340 |
||
| Property Building Permit History | |||||||||||
|---|---|---|---|---|---|---|---|---|---|---|---|
| Issued | Permit # | Provided by | Bldg # | Description | Est Construction Cost | Status | |||||
| No Building Permit records returned. | |||||||||||
| Click button on building number to access detailed information: | ||||||
|---|---|---|---|---|---|---|
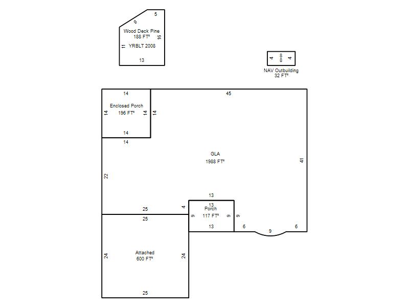
| Bldg # | Vacant/Improved Land | Bldg Description | Year Built | SqFt | # Stories | |
|
1 |
Improved |
Ranch 1 Story |
1979 |
1,988 |
1 Stories |
|