|
|
|
| Larry Stein Oklahoma County Assessor (405) 713-1200 - Public Access System |
|
|
|
|
|
|
| Real Property Display - Screen Produced 4/6/2026 5:50:32 AM | ||||
|---|---|---|---|---|
| Account: R156724060 | Type: Residential | Location: |
1313 SAINT JAMES CIR |
|
| Building Name/Occupant: |
|
MIDWEST CITY |
||
| Owner Name 1: | BURTON ALAN B & PATRICIA A |
Parcel PIN#: |
2531-15-672-4060 |
|
| Owner Name 2: | 1/4 section #: |
2531 |
||
| Owner Name 3: | Parent Acct: |
|
||
| Billing Address: | 1313 SAINT JAMES CIR | Tax District: |
|
|
| City, State, Zip | MIDWEST CITY, OK 73110-1411 | School System: |
Mid-Del #52 |
|
|
Country: (If noted) |
Land Size: |
0.1983 Acres |
||
|
Land Value: 38,100 |
|
|||
|
Sect 33-T12N-R2W Qtr SW |
MEADOWOOD FOURTH
Block
004
Lot
007
|
|||
| Full Legal Description: MEADOWOOD FOURTH 004 007 |
| Photo & Sketch (if available) | Comp Sales (ordered by relevancy) |
|
||||||||||||||||||
|
||||||||||||||||||||
| Value History (*The County Treasurer 405-713-1300 posts & collects actual tax amounts. Contact information HERE) | |||||||||||||
|---|---|---|---|---|---|---|---|---|---|---|---|---|---|
| Year | Market Value | Taxable Mkt Value | Gross Assessed | Exemption | Net Assessed | Millage | Est. Tax | Tax Savings | |||||
|
2026 |
234,000 |
179,576 |
19,753 |
1,000 |
18,753 |
119.58 |
$2,243 |
$835 |
|||||
|
2025 |
238,000 |
174,346 |
19,177 |
1,000 |
18,177 |
119.58 |
$2,174 |
$957 |
|||||
|
2024 |
236,000 |
169,268 |
18,619 |
1,000 |
17,619 |
122.51 |
$2,159 |
$1,022 |
|||||
|
2023 |
225,000 |
164,338 |
18,076 |
1,000 |
17,076 |
117.71 |
$2,010 |
$903 |
|||||
|
2022 |
198,500 |
159,552 |
17,550 |
1,000 |
16,550 |
116.64 |
$1,930 |
$616 |
|||||
| Property Account Status/Adjustments/Exemptions | ||
|---|---|---|
| Account # | Exemption Description | Amount |
|
R156724060 |
3% Cap Homestead |
0 |
|
R156724060 |
Homestead |
1,000 |
| Property Deed Transaction History (Recorded in the County Clerk's Office) | |||||||
|---|---|---|---|---|---|---|---|
| Date | Type | Book | Page | Price | Grantor | Grantee | |
|
9/29/2004 |
|
Deeds |
$120,000 |
JOHNSON DAVID A & JACQUETTA A CO TRS JOHNSON FAMILY TRUST |
BURTON ALAN B & PATRICIA A |
||
|
12/16/2002 |
|
Deeds |
$0 |
JOHNSON DAVID A & JACQUETTA A |
JOHNSON DAVID A & JACQUETTA A CO TRS JOHNSON FAMILY TRUST |
||
|
9/8/1988 |
|
Historical |
$78,500 |
STELL SIDNEY L JR & PAMELA K |
JOHNSON DAVID A & JACQUETTA A |
||
|
5/1/1977 |
|
Historical |
$0 |
|
STELL SIDNEY L JR & PAMELA K |
||
| Last Mailed Notice of Value (N.O.V.) Information/History | ||||||||
|---|---|---|---|---|---|---|---|---|
| Year | Date | Market Value | Taxable Market Value | Gross Assessed | Exemption | Net Assessed | ||
|
2026 |
02/23/2026 |
234,000 |
179,576 |
19,753 |
1,000 |
18,753 |
||
|
2025 |
02/14/2025 |
238,000 |
174,346 |
19,177 |
1,000 |
18,177 |
||
|
2024 |
02/13/2024 |
236,000 |
169,268 |
18,619 |
1,000 |
17,619 |
||
|
2023 |
02/14/2023 |
225,000 |
164,338 |
18,076 |
1,000 |
17,076 |
||
|
2022 |
03/15/2022 |
198,500 |
159,552 |
17,550 |
1,000 |
16,550 |
||
| Property Building Permit History | |||||||||||
|---|---|---|---|---|---|---|---|---|---|---|---|
| Issued | Permit # | Provided by | Bldg # | Description | Est Construction Cost | Status | |||||
| No Building Permit records returned. | |||||||||||
| Click button on building number to access detailed information: | ||||||
|---|---|---|---|---|---|---|
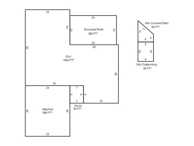
| Bldg # | Vacant/Improved Land | Bldg Description | Year Built | SqFt | # Stories | |
|
1 |
Improved |
Ranch 1 Story |
1977 |
1,584 |
1 Stories |
|