|
|
|
| Larry Stein Oklahoma County Assessor (405) 713-1200 - Public Access System |
|
|
|
|
|
|
| Real Property Display - Screen Produced 3/16/2026 4:11:29 AM | ||||
|---|---|---|---|---|
| Account: R144197200 | Type: Residential | Location: |
5921 HOLZMAN AVE |
|
| Building Name/Occupant: |
|
OKLAHOMA CITY |
||
| Owner Name 1: | RUTLEDGE ALAN |
Parcel PIN#: |
1294-14-419-7200 |
|
| Owner Name 2: | 1/4 section #: |
1294 |
||
| Owner Name 3: | Parent Acct: |
|
||
| Billing Address: | 5921 HOLZMAN AVE | Tax District: |
|
|
| City, State, Zip | CHOCTAW, OK 73020-5539 | School System: |
Choctaw #4 |
|
|
Country: (If noted) |
Land Size: |
5.0700 Acres |
||
|
Land Value: 75,079 |
|
|||
|
Sect 24-T11N-R1W Qtr SE |
UNPLTD PT SEC 24 11N 1W
Block
000
Lot
000
|
|||
| Full Legal Description: UNPLTD PT SEC 24 11N 1W 000 000 PT SE4 SEC 24 11N 1W BEG 1009.85FT E OF SW/C SE4 TH E261.10FT N652.75FT W396.34FT S305FT SE192.35FT S210FT TO BEG CONT 5.07ACRS MORE OR LESS |
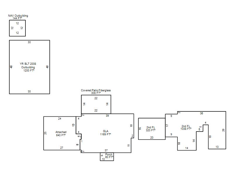
| Photo & Sketch (if available) | Comp Sales (ordered by relevancy) |
|
||||||||||||||||||
|
||||||||||||||||||||
| Value History (*The County Treasurer 405-713-1300 posts & collects actual tax amounts. Contact information HERE) | |||||||||||||
|---|---|---|---|---|---|---|---|---|---|---|---|---|---|
| Year | Market Value | Taxable Mkt Value | Gross Assessed | Exemption | Net Assessed | Millage | Est. Tax | Tax Savings | |||||
|
2025 |
484,500 |
346,940 |
38,162 |
1,000 |
37,162 |
132.37 |
$4,919 |
$2,135 |
|||||
|
2024 |
494,500 |
336,835 |
37,051 |
1,000 |
36,051 |
131.28 |
$4,733 |
$2,408 |
|||||
|
2023 |
440,500 |
327,025 |
35,972 |
1,000 |
34,972 |
131.88 |
$4,612 |
$1,778 |
|||||
|
2022 |
317,500 |
317,500 |
34,925 |
1,000 |
33,925 |
130.63 |
$4,432 |
$131 |
|||||
|
2021 |
317,500 |
317,500 |
34,925 |
1,000 |
33,925 |
129.79 |
$4,403 |
$130 |
|||||
| Property Account Status/Adjustments/Exemptions | ||
|---|---|---|
| Account # | Exemption Description | Amount |
|
R144197200 |
3% Cap Homestead |
0 |
|
R144197200 |
Homestead |
1,000 |
| Property Deed Transaction History (Recorded in the County Clerk's Office) | |||||||
|---|---|---|---|---|---|---|---|
| Date | Type | Book | Page | Price | Grantor | Grantee | |
|
2/17/2017 |
|
Deeds |
$330,000 |
SMITH JAMES TRENT & KARI L |
RUTLEDGE ALAN |
||
|
11/17/2016 |
|
Deeds |
$0 |
SMITH JAMES TRENT & KARI L |
SMITH JAMES TRENT & KARI L |
||
|
5/5/1997 |
|
Historical |
$25,000 |
NEWEY FAMILY PARTNERS |
SMITH JAMES TRENT & KARI L |
||
|
5/1/1997 |
|
Historical |
$0 |
PATTON ROBERT E & MINA L |
NEWEY FAMILY PARTNERS |
||
|
4/29/1997 |
|
Historical |
$25,000 |
|
PATTON ROBERT E & MINA L |
||
| Last Mailed Notice of Value (N.O.V.) Information/History | ||||||||
|---|---|---|---|---|---|---|---|---|
| Year | Date | Market Value | Taxable Market Value | Gross Assessed | Exemption | Net Assessed | ||
|
2026 |
02/06/2026 |
485,000 |
357,348 |
39,307 |
1,000 |
38,307 |
||
|
2025 |
01/31/2025 |
484,500 |
346,940 |
38,162 |
1,000 |
37,162 |
||
|
2024 |
01/22/2024 |
494,500 |
336,835 |
37,051 |
1,000 |
36,051 |
||
|
2023 |
01/23/2023 |
440,500 |
327,025 |
35,972 |
1,000 |
34,972 |
||
|
2018 |
04/09/2018 |
317,500 |
317,500 |
34,925 |
0 |
34,925 |
||
| Property Building Permit History | ||||||
|---|---|---|---|---|---|---|
| Issued | Permit # | Provided by | Bldg # | Description | Est Construction Cost | Status |
|
5/14/2004 |
10295149 |
OKLAHOMA CITY |
1 |
Swimming Pool |
144,197,200 |
Inactive |
|
6/15/1998 |
10239253 |
OKLAHOMA CITY |
1 |
Main Dwellin |
143,000 |
Inactive |
| Click button on building number to access detailed information: | ||||||
|---|---|---|---|---|---|---|
| Bldg # | Vacant/Improved Land | Bldg Description | Year Built | SqFt | # Stories | |
|
1 |
Improved |
2 Story |
1998 |
2,527 |
2 Stories |
|