|
|
|
| Larry Stein Oklahoma County Assessor (405) 713-1200 - Public Access System |
|
|
|
|
|
|
| Real Property Display - Screen Produced 3/16/2026 3:45:24 AM | ||||
|---|---|---|---|---|
| Account: R144197240 | Type: Residential | Location: |
5525 HOLZMAN AVE |
|
| Building Name/Occupant: |
|
OKLAHOMA CITY |
||
| Owner Name 1: | REISCH JAMES R & JANELL A TRUST |
Parcel PIN#: |
1294-14-419-7240 |
|
| Owner Name 2: | 1/4 section #: |
1294 |
||
| Owner Name 3: | Parent Acct: |
|
||
| Billing Address: | 5525 HOLZMAN AVE | Tax District: |
|
|
| City, State, Zip | CHOCTAW, OK 73020-5535 | School System: |
Choctaw #4 |
|
|
Country: (If noted) |
Land Size: |
9.6000 Acres |
||
|
Land Value: 128,063 |
|
|||
|
Sect 24-T11N-R1W Qtr SE |
UNPLTD PT SEC 24 11N 1W
Block
000
Lot
000
|
|||
| Full Legal Description: UNPLTD PT SEC 24 11N 1W 000 000 PT SE4 SEC 24 11N 1W BEG 1303.58FT N OF SW/C SE4 TH N330FT E1268.345FT S330FT W1268.89FT TO BEG SUBJ TO ESMTS OF RECORD AKA LOT 3 BLK 2 SILVER TREE ESTATES UNREC |
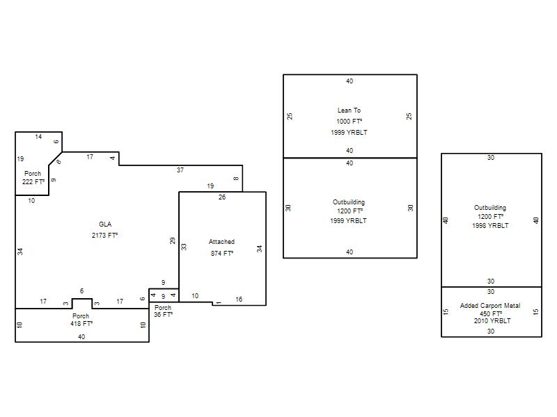
| Photo & Sketch (if available) | Comp Sales (ordered by relevancy) |
|
||||||||||||||||||
|
||||||||||||||||||||
| Value History (*The County Treasurer 405-713-1300 posts & collects actual tax amounts. Contact information HERE) | |||||||||||||
|---|---|---|---|---|---|---|---|---|---|---|---|---|---|
| Year | Market Value | Taxable Mkt Value | Gross Assessed | Exemption | Net Assessed | Millage | Est. Tax | Tax Savings | |||||
|
2025 |
541,000 |
395,487 |
43,503 |
1,000 |
42,503 |
132.37 |
$5,626 |
$2,251 |
|||||
|
2024 |
558,500 |
383,968 |
42,236 |
1,000 |
41,236 |
131.28 |
$5,414 |
$2,652 |
|||||
|
2023 |
549,000 |
372,785 |
41,006 |
1,000 |
40,006 |
131.88 |
$5,276 |
$2,688 |
|||||
|
2022 |
460,000 |
361,928 |
39,811 |
1,000 |
38,811 |
130.63 |
$5,070 |
$1,540 |
|||||
|
2021 |
403,000 |
351,387 |
38,651 |
1,000 |
37,651 |
129.79 |
$4,887 |
$867 |
|||||
| Property Account Status/Adjustments/Exemptions | ||
|---|---|---|
| Account # | Exemption Description | Amount |
|
R144197240 |
3% Cap Homestead |
0 |
|
R144197240 |
Homestead |
1,000 |
| Property Deed Transaction History (Recorded in the County Clerk's Office) | |||||||
|---|---|---|---|---|---|---|---|
| Date | Type | Book | Page | Price | Grantor | Grantee | |
|
7/19/2013 |
|
Deeds |
$0 |
REISCH JAMES R & JANELL A |
REISCH JAMES R & JANELL A TRUST |
||
|
6/4/2004 |
|
Deeds |
$260,500 |
SCHULTZ LLOYD C & CYNTHIA |
REISCH JAMES R & JANELL A |
||
|
2/10/1998 |
|
Historical |
$30,000 |
|
SCHULTZ LLOYD C & CYNTHIA |
||
| Last Mailed Notice of Value (N.O.V.) Information/History | ||||||||
|---|---|---|---|---|---|---|---|---|
| Year | Date | Market Value | Taxable Market Value | Gross Assessed | Exemption | Net Assessed | ||
|
2026 |
02/06/2026 |
546,500 |
407,351 |
44,808 |
1,000 |
43,808 |
||
|
2025 |
01/31/2025 |
541,000 |
395,487 |
43,503 |
1,000 |
42,503 |
||
|
2024 |
01/22/2024 |
558,500 |
383,968 |
42,236 |
1,000 |
41,236 |
||
|
2023 |
01/23/2023 |
549,000 |
372,785 |
41,006 |
1,000 |
40,006 |
||
|
2022 |
02/22/2022 |
460,000 |
361,928 |
39,810 |
1,000 |
38,810 |
||
| Property Building Permit History | ||||||
|---|---|---|---|---|---|---|
| Issued | Permit # | Provided by | Bldg # | Description | Est Construction Cost | Status |
|
6/29/2005 |
10309212 |
OKLAHOMA CITY |
1 |
Main Dwellin |
163,940 |
Inactive |
|
3/22/1999 |
10239264 |
OKLAHOMA CITY |
1 |
Other |
6,000 |
Inactive |
|
2/26/1998 |
10239263 |
OKLAHOMA CITY |
1 |
Other |
6,000 |
Inactive |
|
2/17/1998 |
10239262 |
OKLAHOMA CITY |
1 |
Main Dwellin |
75,000 |
Inactive |
| Click button on building number to access detailed information: | ||||||
|---|---|---|---|---|---|---|
| Bldg # | Vacant/Improved Land | Bldg Description | Year Built | SqFt | # Stories | |
|
1 |
Improved |
Ranch 1 Story |
1998 |
2,173 |
1 Stories |
|