|
|
|
| Larry Stein Oklahoma County Assessor (405) 713-1200 - Public Access System |
|
|
|
|
|
|
| Real Property Display - Screen Produced 4/1/2026 8:54:42 PM | ||||
|---|---|---|---|---|
| Account: R152071690 | Type: Residential | Location: |
3505 OAK GROVE DR |
|
| Building Name/Occupant: |
|
MIDWEST CITY |
||
| Owner Name 1: | GRANT FRANK JR & SHARON L |
Parcel PIN#: |
2536-15-207-1690 |
|
| Owner Name 2: | 1/4 section #: |
2536 |
||
| Owner Name 3: | Parent Acct: |
|
||
| Billing Address: | 3505 OAK GROVE DR | Tax District: |
|
|
| City, State, Zip | MIDWEST CITY, OK 73110-3725 | School System: |
Mid-Del #52 |
|
|
Country: (If noted) |
Land Size: |
0.1791 Acres |
||
|
Land Value: 33,150 |
|
|||
|
Sect 34-T12N-R2W Qtr NW |
RIDGECREST HTS 3RD ADD
Block
003
Lot
031
|
|||
| Full Legal Description: RIDGECREST HTS 3RD ADD 003 031 |
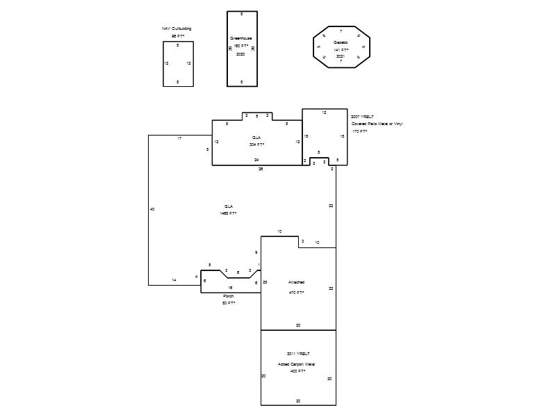
| Photo & Sketch (if available) | Comp Sales (ordered by relevancy) |
|
||||||||||||||||||
|
||||||||||||||||||||
| Value History (*The County Treasurer 405-713-1300 posts & collects actual tax amounts. Contact information HERE) | |||||||||||||
|---|---|---|---|---|---|---|---|---|---|---|---|---|---|
| Year | Market Value | Taxable Mkt Value | Gross Assessed | Exemption | Net Assessed | Millage | Est. Tax | Tax Savings | |||||
|
2026 |
251,500 |
174,153 |
19,156 |
1,000 |
18,156 |
119.58 |
$2,171 |
$1,137 |
|||||
|
2025 |
253,000 |
174,153 |
19,156 |
1,000 |
18,156 |
119.58 |
$2,171 |
$1,157 |
|||||
|
2024 |
253,000 |
174,153 |
19,156 |
1,000 |
18,156 |
122.51 |
$2,224 |
$1,185 |
|||||
|
2023 |
241,000 |
174,153 |
19,156 |
1,000 |
18,156 |
117.71 |
$2,137 |
$983 |
|||||
|
2022 |
219,000 |
172,151 |
18,936 |
1,000 |
17,936 |
116.64 |
$2,092 |
$718 |
|||||
| Property Account Status/Adjustments/Exemptions | ||
|---|---|---|
| Account # | Exemption Description | Amount |
|
R152071690 |
Freeze Senior Valuation |
0 |
|
R152071690 |
3% Cap Homestead |
0 |
|
R152071690 |
Homestead |
1,000 |
| Property Deed Transaction History (Recorded in the County Clerk's Office) | |||||||
|---|---|---|---|---|---|---|---|
| Date | Type | Book | Page | Price | Grantor | Grantee | |
|
5/6/1993 |
|
Historical |
$65,000 |
KINNAMON JOE D & LINDA L |
GRANT FRANK JR & SHARON L |
||
|
11/11/1911 |
|
Historical |
$0 |
|
KINNAMON JOE D & LINDA L |
||
| Last Mailed Notice of Value (N.O.V.) Information/History | ||||||||
|---|---|---|---|---|---|---|---|---|
| Year | Date | Market Value | Taxable Market Value | Gross Assessed | Exemption | Net Assessed | ||
|
2024 |
02/13/2024 |
253,000 |
174,153 |
19,156 |
1,000 |
18,156 |
||
|
2023 |
03/02/2023 |
241,000 |
174,153 |
19,156 |
1,000 |
18,156 |
||
|
2022 |
03/15/2022 |
219,000 |
172,151 |
18,936 |
1,000 |
17,936 |
||
|
2021 |
03/19/2021 |
189,000 |
172,151 |
18,936 |
1,000 |
17,936 |
||
|
2020 |
03/10/2020 |
175,500 |
167,137 |
18,385 |
1,000 |
17,385 |
||
| Property Building Permit History | ||||||
|---|---|---|---|---|---|---|
| Issued | Permit # | Provided by | Bldg # | Description | Est Construction Cost | Status |
|
10/23/2006 |
10329609 |
MIDWEST CITY |
1 |
Remodeled |
87,500 |
Inactive |
| Click button on building number to access detailed information: | ||||||
|---|---|---|---|---|---|---|
| Bldg # | Vacant/Improved Land | Bldg Description | Year Built | SqFt | # Stories | |
|
1 |
Improved |
Ranch 1 Story |
1966 |
1,772 |
1 Stories |
|