|
|
|
| Larry Stein Oklahoma County Assessor (405) 713-1200 - Public Access System |
|
|
|
|
|
|
| Real Property Display - Screen Produced 4/6/2026 5:38:25 AM | ||||
|---|---|---|---|---|
| Account: R151431140 | Type: Residential | Location: |
3012 ROBIN RD |
|
| Building Name/Occupant: |
|
MIDWEST CITY |
||
| Owner Name 1: | DE CHAVEZ CARLA ALVIDREZ |
Parcel PIN#: |
2535-15-143-1140 |
|
| Owner Name 2: | CHAVEZ MARIO | 1/4 section #: |
2535 |
|
| Owner Name 3: | Parent Acct: |
|
||
| Billing Address: | 3012 ROBIN RD | Tax District: |
|
|
| City, State, Zip | MIDWEST CITY, OK 73110-4141 | School System: |
Mid-Del #52 |
|
|
Country: (If noted) |
Land Size: |
0.1964 Acres |
||
|
Land Value: 29,943 |
|
|||
|
Sect 34-T12N-R2W Qtr SW |
COUNTRY CLUB TERRACE
Block
001
Lot
015
|
|||
| Full Legal Description: COUNTRY CLUB TERRACE 001 015 |
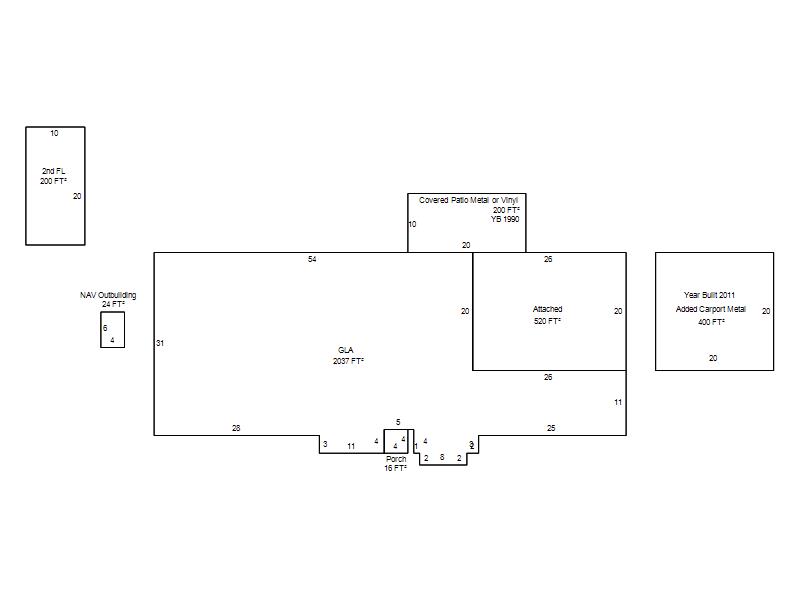
| Photo & Sketch (if available) | Comp Sales (ordered by relevancy) |
|
||||||||||||||||||
|
||||||||||||||||||||
| Value History (*The County Treasurer 405-713-1300 posts & collects actual tax amounts. Contact information HERE) | |||||||||||||
|---|---|---|---|---|---|---|---|---|---|---|---|---|---|
| Year | Market Value | Taxable Mkt Value | Gross Assessed | Exemption | Net Assessed | Millage | Est. Tax | Tax Savings | |||||
|
2026 |
267,500 |
267,500 |
29,425 |
0 |
29,425 |
119.58 |
$3,519 |
$0 |
|||||
|
2025 |
276,000 |
276,000 |
30,360 |
0 |
30,360 |
119.58 |
$3,630 |
$0 |
|||||
|
2024 |
275,500 |
275,500 |
30,305 |
0 |
30,305 |
122.51 |
$3,713 |
$0 |
|||||
|
2023 |
265,000 |
265,000 |
29,150 |
0 |
29,150 |
117.71 |
$3,431 |
$0 |
|||||
|
2022 |
239,500 |
211,128 |
23,223 |
0 |
23,223 |
116.64 |
$2,709 |
$364 |
|||||
| Property Account Status/Adjustments/Exemptions | ||
|---|---|---|
| Account # | Exemption Description | Amount |
|
R151431140 |
5% Capped Account |
0 |
| Property Deed Transaction History (Recorded in the County Clerk's Office) | ||||||||||
|---|---|---|---|---|---|---|---|---|---|---|
| Date | Type | Book | Page | Price | Grantor | Grantee | ||||
|
5/6/2024 |
|
Deeds |
$270,000 |
MOSLEY LYNDA D TRS |
DE CHAVEZ CARLA ALVIDREZ |
|||||
|
12/9/2022 |
|
Deeds |
$265,000 |
ENTERPRISE 517 LLC |
MOSLEY LYNDA D TRS |
|||||
|
6/17/2022 |
|
Deeds |
$138,500 |
REEVES ANDREW & KELLY |
ENTERPRISE 517 LLC |
|||||
|
7/10/2014 |
|
Deeds |
$149,000 |
BARNES JAMES C & JEANENE C |
REEVES ANDREW & KELLY |
|||||
|
7/18/2000 |
|
Deeds |
$0 |
BARNES JAMES C |
BARNES JAMES C & JEANENE C |
|||||
| Last Mailed Notice of Value (N.O.V.) Information/History | ||||||||
|---|---|---|---|---|---|---|---|---|
| Year | Date | Market Value | Taxable Market Value | Gross Assessed | Exemption | Net Assessed | ||
|
2025 |
02/14/2025 |
276,000 |
276,000 |
30,360 |
0 |
30,360 |
||
|
2024 |
02/13/2024 |
275,500 |
275,500 |
30,305 |
0 |
30,305 |
||
|
2023 |
02/14/2023 |
265,000 |
265,000 |
29,150 |
0 |
29,150 |
||
|
2022 |
03/15/2022 |
239,500 |
211,128 |
23,223 |
0 |
23,223 |
||
|
2021 |
03/19/2021 |
202,500 |
201,075 |
22,118 |
0 |
22,118 |
||
| Property Building Permit History | ||||||
|---|---|---|---|---|---|---|
| Issued | Permit # | Provided by | Bldg # | Description | Est Construction Cost | Status |
|
10/28/2010 |
10411834 |
MIDWEST CITY |
1 |
Carport |
1,000 |
Inactive |
| Click button on building number to access detailed information: | ||||||
|---|---|---|---|---|---|---|
| Bldg # | Vacant/Improved Land | Bldg Description | Year Built | SqFt | # Stories | |
|
1 |
Improved |
1½ Story Fin |
1975 |
2,237 |
1.5 Stories |
|